物件掲載企業数:299|賃貸物件:2,912件|売買物件:3,228件|今週の登録物件:348
閲覧中のブラウザ(インターネットエクスプローラー)は非推奨ブラウザです。
物件が正しく表示されなかったり、正しく検索されない場合があります。最新のブラウザ(Google Chrome・Edgeなど)にてご利用お願いいたします。
  

新潟県長岡市村松町2467-27 中古一戸建て 4LDK 6,100,000円の物件情報

物件名/所在地 詳細 価格
村松町中古住宅
新潟県長岡市村松町2467-27
  • 土地面積
    :126.19㎡ /38.17坪
  • 建物面積
    :108㎡ /32.67坪
  • 間取り
    :4LDK
  • 築年月
    :2004年2月
6,100,000
  • 村松町中古住宅
    佐藤リアルティ 株式会社
  • この物件を問い合わせる/無料
  • TEL: 0258-34-3718

物件画像

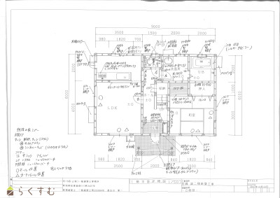
外観 間取り
物件画像
※画像クリックで拡大表示
外観
物件画像
※画像クリックで拡大表示
間取り
詳細画像


物件概要

物件コード 00056-200201
物件名 村松町中古住宅
交通 駅:信越線 宮内駅から徒歩50分、バス:石坂団地から徒歩2分
物件所在地 新潟県長岡市村松町2467-27
物件種別 中古一戸建て
構造 木造 階建 地上2階建
建ぺい率/容積率 70%/200%
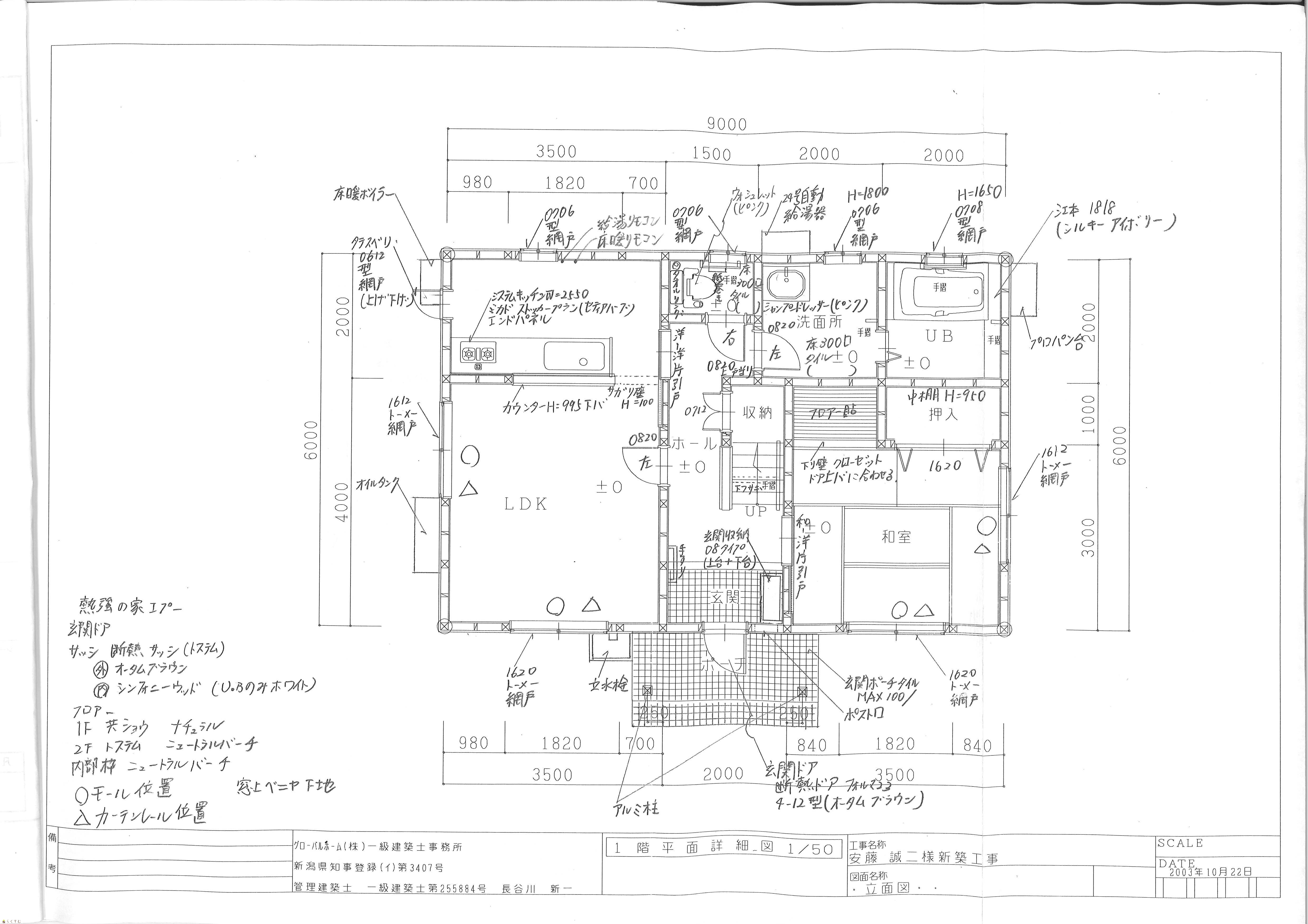
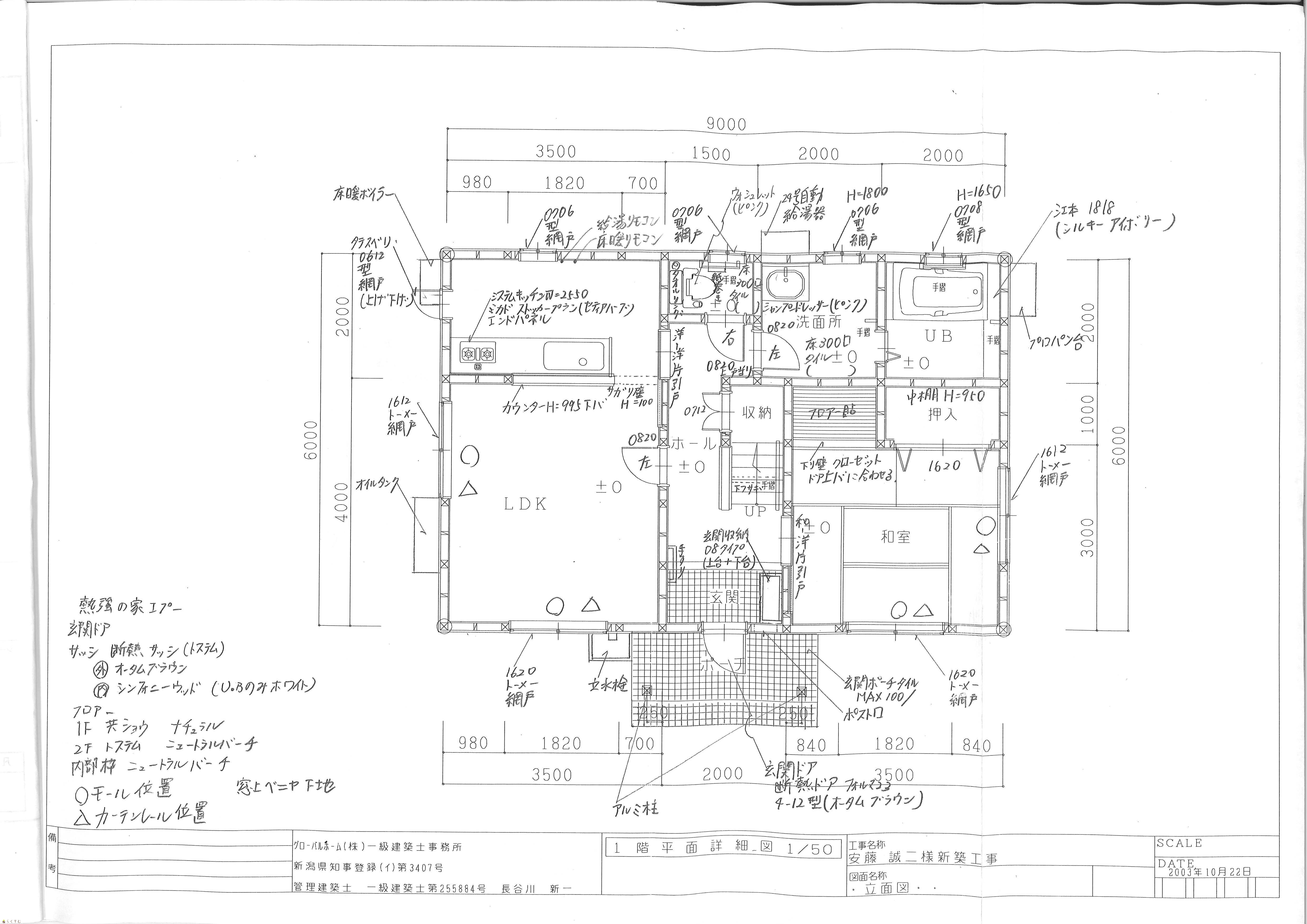
建物面積 1階 54㎡/ 2階 54㎡/ 計 108㎡ /32.67坪
土地面積 126.19㎡ /38.17坪
築年月 2004年2月(築22年)
入居(引き渡し)時期 相談
用途地域 無指定 地目 宅地  (現状:宅地)
都市計画 市街化調整区域 学校区 石坂小学校(227m)・宮内中学校(3,631m)
形状 - 道路 公道
私道 - その他の制限 -
  • 村松町中古住宅
    佐藤リアルティ 株式会社
  • この物件を問い合わせる/無料
  • TEL: 0258-34-3718

物件詳細情報

所在階/階数 - 号室 -
販売価格 6,100,000円 方位
間取り 4LDK (和室:6畳) (洋室:6、4.5、4.5)
LDK12.7
任意売却 境界不明示・現況売買・売主契約不適合責任免責
専有面積 - バルコニー面積 -
その他面積 - 駐車場 -
管理費 - 修繕積立金 -
現況 居住中
仲介手数料 363,000円
利用制限 -
設備 日当り良好、閑静な住宅街、カウンターキッチン、追いだき機能付き、バス1坪以上、LPG、上水道、下水道
取引態様 専任
備考 任意売却 境界不明示・現況売買・売主契約不適合責任免責
取り扱い会社

佐藤リアルティ 株式会社

新潟県長岡市笹崎1-4-5武蔵ビル 2F

情報登録日 2026/02/04 次回更新予定日 2026/04/05
取引条件有効期限 2026/06/22
  • 村松町中古住宅
    佐藤リアルティ 株式会社
  • この物件を問い合わせる/無料
  • TEL: 0258-34-3718

この物件の地図・周辺情報・行政情報

この物件の周辺情報・行政情報を詳しく見る
【周辺情報】
物件の近くにあるコンビニや銀行・学校など、アイコン付のマップで詳しく表示できます!
【行政情報】
水道料や下水道料・ガス料金など、暮らしに関係のある情報を表示しています。

担当取扱い店舗情報

取扱い店舗画像
佐藤リアルティ 株式会社
TEL: 0258-34-3718
所在地: 新潟県長岡市笹崎1-4-5武蔵ビル 2F
交通: 宮内駅
営業時間: 9:00~18:00/定休日:日、祝日
免許番号: 新潟県知事(3)第5117号 この会社の情報を詳しく見る
所属団体名: 全日本不動産協会 新潟県本部
取引態様: 専任
ホームページ: http://sato-realty.co.jp/