物件掲載企業数:301|賃貸物件:3,175件|売買物件:3,245件|今週の登録物件:72
閲覧中のブラウザ(インターネットエクスプローラー)は非推奨ブラウザです。
物件が正しく表示されなかったり、正しく検索されない場合があります。最新のブラウザ(Google Chrome・Edgeなど)にてご利用お願いいたします。
  

新潟県長岡市高見町759番地7 中古一戸建て 3LDK 29,800,000円の物件情報

事業向け物置(倉庫・事務所)建物(2階建・延面積83㎡)付

物件名/所在地 詳細 価格
高見町中古戸建&物置(事務所・倉庫)
新潟県長岡市高見町759番地7
  • 土地面積
    :507.36㎡ /153.47坪
  • 建物面積
    :128.05㎡ /38.73坪
  • 間取り
    :3LDK
  • 築年月
    :2008年7月
29,800,000
  • 高見町中古戸建&物置(事務所・倉庫)
    ドアーズ 株式会社
  • この物件を問い合わせる/無料
  • TEL: 0258-21-3751

物件画像

外観 間取り
物件画像
※画像クリックで拡大表示
外観
物件画像
※画像クリックで拡大表示
間取り
詳細画像


物件概要

敷地内消雪設備・複数台駐車スペースあり
物件コード 00043-200205
物件名 高見町中古戸建&物置(事務所・倉庫)
交通 駅:信越線 押切駅から徒歩33分、バス:高見から徒歩1分
物件所在地 新潟県長岡市高見町759番地7
物件種別 中古一戸建て
構造 木造 階建 地上2階建
建ぺい率/容積率 60%/200%
建物面積 1階 69.26㎡/ 2階 58.79㎡/ 計 128.05㎡ /38.73坪
土地面積 507.36㎡ /153.47坪
築年月 2008年7月(築17年)
入居(引き渡し)時期 2026年7月以降
用途地域 準工業地域 地目 宅地  (現状:宅地)
都市計画 市街化区域 学校区 黒条小学校(1,045m)・堤岡中学校(1,192m)
形状 間口 19.55m × 奥行 20.76m 道路 西側14.7m、南側17m
私道 - その他の制限 -
  • 高見町中古戸建&物置(事務所・倉庫)
    ドアーズ 株式会社
  • この物件を問い合わせる/無料
  • TEL: 0258-21-3751

物件詳細情報

所在階/階数 - 号室 -
販売価格 29,800,000円 方位 南西
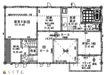
間取り 3LDK (和室:6畳) (洋室:8、4.5)
LDK約20畳
他、収納4.5畳、(仕切り無)洋室(相当スペース)4.5畳
専有面積 - バルコニー面積 -
その他面積 - 駐車場 -
管理費 - 修繕積立金 -
現況 居住中
仲介手数料 1,049,400円
利用制限 -
設備 角地、新築時図面あり、建物確認・完了検査済証あり、LDK15帖以上、駐車2台可能、駐車場融雪設備あり、南向き、TVインターホン、システムキッチン、カウンターキッチン、IHクッキングヒーター、バス1坪以上、温水洗浄便座、トイレ2か所以上、エアコンあり、LPG、上水道、下水道、ウォークインクローゼット、事業向け
取引態様 一般
備考 個人事業主・法人経営者向け!!自宅+倉庫・物置用建物付
取り扱い会社

ドアーズ 株式会社

新潟県長岡市古正寺町108-1

情報登録日 2026/04/11 次回更新予定日 2026/05/21
取引条件有効期限 2026/12/31
  • 高見町中古戸建&物置(事務所・倉庫)
    ドアーズ 株式会社
  • この物件を問い合わせる/無料
  • TEL: 0258-21-3751

この物件の地図・周辺情報・行政情報

この物件の周辺情報・行政情報を詳しく見る
【周辺情報】
物件の近くにあるコンビニや銀行・学校など、アイコン付のマップで詳しく表示できます!
【行政情報】
水道料や下水道料・ガス料金など、暮らしに関係のある情報を表示しています。

担当取扱い店舗情報

取扱い店舗画像
ドアーズ 株式会社
TEL: 0258-21-3751
所在地: 新潟県長岡市古正寺町108-1
交通: 越後交通「西病院前」バス停徒歩約5分
営業時間: 9:00~18:00/定休日:年末・年始・GW・夏期(お盆)
免許番号: 新潟県知事(10)第2891号 この会社の情報を詳しく見る
所属団体名: 新潟県宅地建物取引業協会 長岡支部
取引態様: 一般
ホームページ: https://www.doors-net.jp