物件掲載企業数:299|賃貸物件:2,911件|売買物件:3,224件|今週の登録物件:320
閲覧中のブラウザ(インターネットエクスプローラー)は非推奨ブラウザです。
物件が正しく表示されなかったり、正しく検索されない場合があります。最新のブラウザ(Google Chrome・Edgeなど)にてご利用お願いいたします。
  

新潟県長岡市中沢3-564-4 中古一戸建て 5LDK 24,500,000円の物件情報

陽当たり良好!状態の良い住宅です。カーポート3台駐車できます!収納も充実しています!

物件名/所在地 詳細 価格
中沢3丁目売住宅
新潟県長岡市中沢3-564-4
  • 土地面積
    :408.75㎡ /123.64坪
  • 建物面積
    :199.73㎡ /60.41坪
  • 間取り
    :5LDK
  • 築年月
    :1998年10月
24,500,000
  • 中沢3丁目売住宅
    髙頭不動産 株式会社
  • この物件を問い合わせる/無料
  • TEL: 0120-1818-27

物件画像

外観 間取り
物件画像
※画像クリックで拡大表示
外観
物件画像
※画像クリックで拡大表示
間取り
詳細画像


物件概要

アクロスプラザ長岡まで徒歩約11分と利便性の良い立地です♪広いお庭でゆったりとした生活をお楽しめます♪
物件コード 00040-201174
物件名 中沢3丁目売住宅
交通 駅:信越線 長岡駅から徒歩31分、バス:中沢三叉路から徒歩6分
物件所在地 新潟県長岡市中沢3-564-4
物件種別 中古一戸建て
構造 木造 階建 地上2階建
建ぺい率/容積率 60%/200%
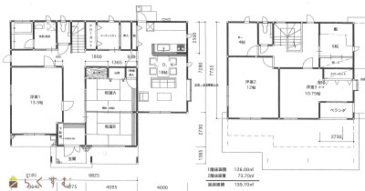
建物面積 1階 126㎡/ 2階 73.73㎡/ 計 199.73㎡ /60.41坪
土地面積 408.75㎡ /123.64坪
築年月 1998年10月(築27年)
入居(引き渡し)時期 随時入居(引き渡し)可
用途地域 第1種低層住居専用地域 地目 宅地  (現状:宅地)
都市計画 市街化区域 学校区 栖吉小学校(852m)・栖吉中学校(1,009m)
形状 間口 2553m × 奥行 15.99m 道路 公道
私道 - その他の制限 -
  • 中沢3丁目売住宅
    髙頭不動産 株式会社
  • この物件を問い合わせる/無料
  • TEL: 0120-1818-27

物件詳細情報

所在階/階数 - 号室 -
販売価格 24,500,000円 方位 南東
間取り 5LDK (和室:6畳、6畳) (洋室:13.5、12、10.75)
LDK18
専有面積 - バルコニー面積 -
その他面積 - 駐車場 -
管理費 - 修繕積立金 -
現況 空家
仲介手数料 874,500円
利用制限 -
設備 日当り良好、閑静な住宅街、LDK15帖以上、駐車3台以上可能、南向き、複層ガラス、システムキッチン、カウンターキッチン、追いだき機能付き、バス1坪以上、温水洗浄便座、トイレ2か所以上、エアコンあり、都市ガス、上水道、下水道、バリアフリー、全居室収納あり、即引き渡し可能
取引態様 一般
備考 -
取り扱い会社

髙頭不動産 株式会社

新潟県長岡市千歳1-3-25

情報登録日 2025/11/06 次回更新予定日 2026/04/06
取引条件有効期限 2026/02/04
  • 中沢3丁目売住宅
    髙頭不動産 株式会社
  • この物件を問い合わせる/無料
  • TEL: 0120-1818-27

この物件の地図・周辺情報・行政情報

この物件の周辺情報・行政情報を詳しく見る
【周辺情報】
物件の近くにあるコンビニや銀行・学校など、アイコン付のマップで詳しく表示できます!
【行政情報】
水道料や下水道料・ガス料金など、暮らしに関係のある情報を表示しています。

担当取扱い店舗情報

取扱い店舗画像
髙頭不動産 株式会社
TEL: 0120-1818-27
所在地: 新潟県長岡市千歳1-3-25
交通: 長岡駅
営業時間: 8時30分~17時30分(大手支店は9時~18時)/定休日:本社:土日祝日(事前予約での対応可能)、支店:日曜祝日第5土曜(毎年2月下旬から3月は休みなし)
免許番号: 新潟県知事(17)第191号 この会社の情報を詳しく見る
所属団体名: 新潟県宅地建物取引協会 長岡支部
取引態様: 一般
ホームページ: http://www.takato-f.com