物件掲載企業数:299|賃貸物件:2,912件|売買物件:3,228件|今週の登録物件:348
閲覧中のブラウザ(インターネットエクスプローラー)は非推奨ブラウザです。
物件が正しく表示されなかったり、正しく検索されない場合があります。最新のブラウザ(Google Chrome・Edgeなど)にてご利用お願いいたします。
  

新潟県見附市芝野町1206 投資物件・その他 35,000,000円の物件情報

令和2年リフォーム済み!美しい内装はそのままに。憧れの店舗をすぐにオープンできる居抜き物件!あなたの思い描くお店を実現してください。

物件名/所在地 詳細 価格
表面利回り
見附市芝野町 売店舗 令和2年リフォーム済み!美しい内装
新潟県見附市芝野町1206
  • 土地面積
    :684㎡ /206.91坪
  • 建ぺい率
    :60%
  • 容積率
    :200%
35,000,000
-
  • 見附市芝野町 売店舗 令和2年リフォーム済み!美しい内装
    ふどうさんの相談所 (ライフデザイン合同会社 イオン長岡店)
  • この物件を問い合わせる/無料
  • TEL: 0258-94-4370

物件画像

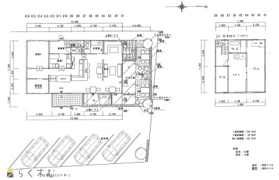
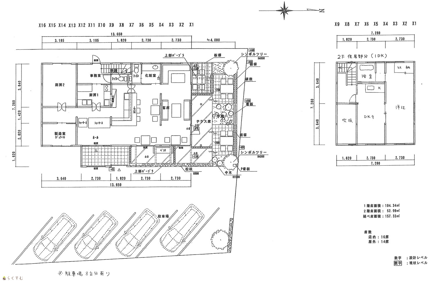
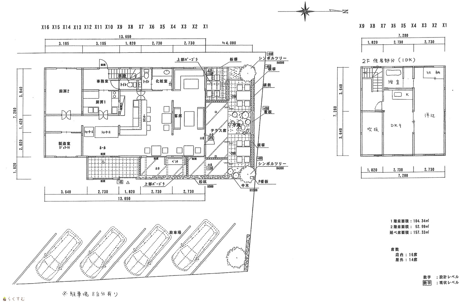
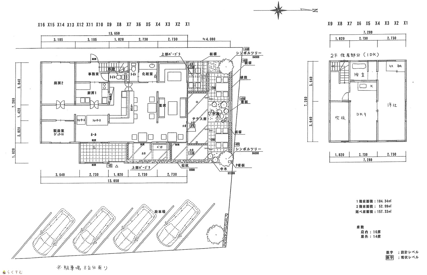
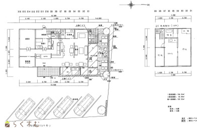
外観 間取り
物件画像
※画像クリックで拡大表示
外観
物件画像
※画像クリックで拡大表示
間取り
詳細画像


物件概要

令和2年リフォーム済み!美しい内装はそのままに。憧れの店舗をすぐにオープンできる居抜き物件!あなたの思い描くお店を実現してください。
物件コード 00039-200292
物件名 見附市芝野町 売店舗 令和2年リフォーム済み!美しい内装
交通 駅:信越線 見附駅から徒歩17分、バス:芝野から徒歩1分
物件所在地 新潟県見附市芝野町1206
物件種別 投資物件・その他
物件区分 その他
構造 木造 階建 地上2階建
建ぺい率/容積率 60%/200%
建物面積 1階 240.98㎡/ 2階 52.99㎡/ 計 293.97㎡ /88.92坪
土地面積 684㎡ /206.91坪
築年月 2006年7月(築19年)
入居(引き渡し)時期 相談
用途地域 準工業地域 地目 宅地
都市計画 市街化区域 学校区 今町小学校(1,308m)・今町中学校(551m)
形状 間口 18.5m 道路 見附市道
私道 - その他の制限 -
  • 見附市芝野町 売店舗 令和2年リフォーム済み!美しい内装
    ふどうさんの相談所 (ライフデザイン合同会社 イオン長岡店)
  • この物件を問い合わせる/無料
  • TEL: 0258-94-4370

物件詳細情報

所在階/階数 - 号室 -
販売価格 35,000,000円 方位 -
表面利回り(満室想定時) - 満室想定年収 - (想定月収: - )
現行利回り - 現行年間年収 -
住戸数 -
間取り -
専有面積 - バルコニー面積 -
その他面積 - 駐車場 8台以上可
管理費 - 修繕積立金 -
現況 空家
仲介手数料 1,221,000円
利用制限 -
設備 公営水道、下水道、事業向け
取引態様 一般
備考 賃貸をご希望の方は相談可能です。
取り扱い会社

ふどうさんの相談所 (ライフデザイン合同会社 イオン長岡店)

新潟県長岡市古正寺1-249-1イオン長岡店3F

情報登録日 2026/03/15 次回更新予定日 2026/04/05
取引条件有効期限 2026/04/30
  • 見附市芝野町 売店舗 令和2年リフォーム済み!美しい内装
    ふどうさんの相談所 (ライフデザイン合同会社 イオン長岡店)
  • この物件を問い合わせる/無料
  • TEL: 0258-94-4370

この物件の地図・周辺情報・行政情報

この物件の周辺情報・行政情報を詳しく見る
【周辺情報】
物件の近くにあるコンビニや銀行・学校など、アイコン付のマップで詳しく表示できます!
【行政情報】
水道料や下水道料・ガス料金など、暮らしに関係のある情報を表示しています。

担当取扱い店舗情報

取扱い店舗画像
ふどうさんの相談所 (ライフデザイン合同会社 イオン長岡店)
TEL: 0258-94-4370
所在地: 新潟県長岡市古正寺1-249-1イオン長岡店3F
交通: 長岡駅
営業時間: 10:00~20:00/定休日:年末年始・特別日はお休みいたします
免許番号: 新潟県知事(3)第5090号 この会社の情報を詳しく見る
所属団体名: 全日本不動産協会 新潟県本部
取引態様: 一般
ホームページ: http://life-dn.com