物件掲載企業数:299|賃貸物件:2,911件|売買物件:3,228件|今週の登録物件:348
閲覧中のブラウザ(インターネットエクスプローラー)は非推奨ブラウザです。
物件が正しく表示されなかったり、正しく検索されない場合があります。最新のブラウザ(Google Chrome・Edgeなど)にてご利用お願いいたします。
  

新潟県柏崎市茨目2丁目956-1 投資物件・その他 23,500,000円の物件情報

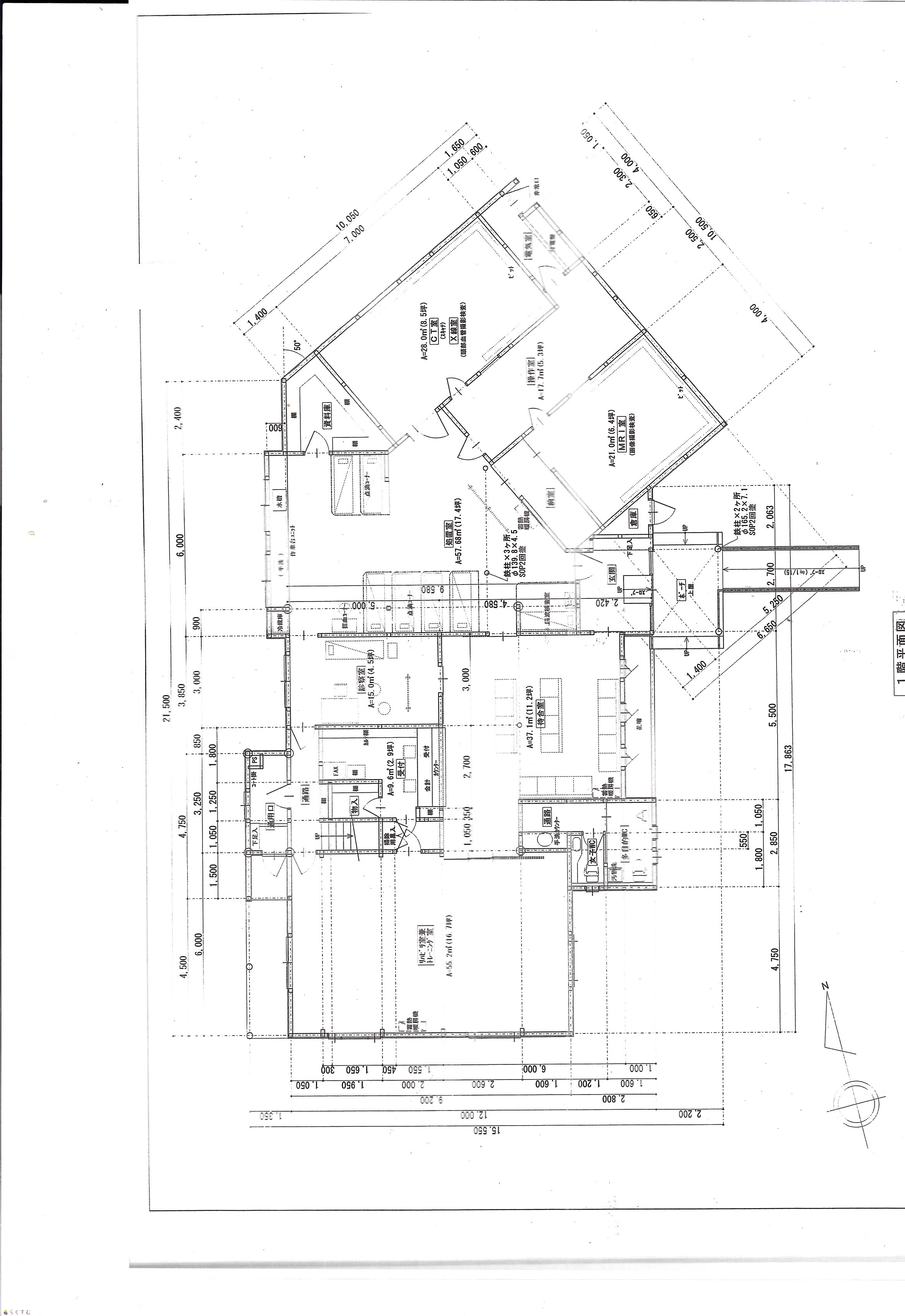
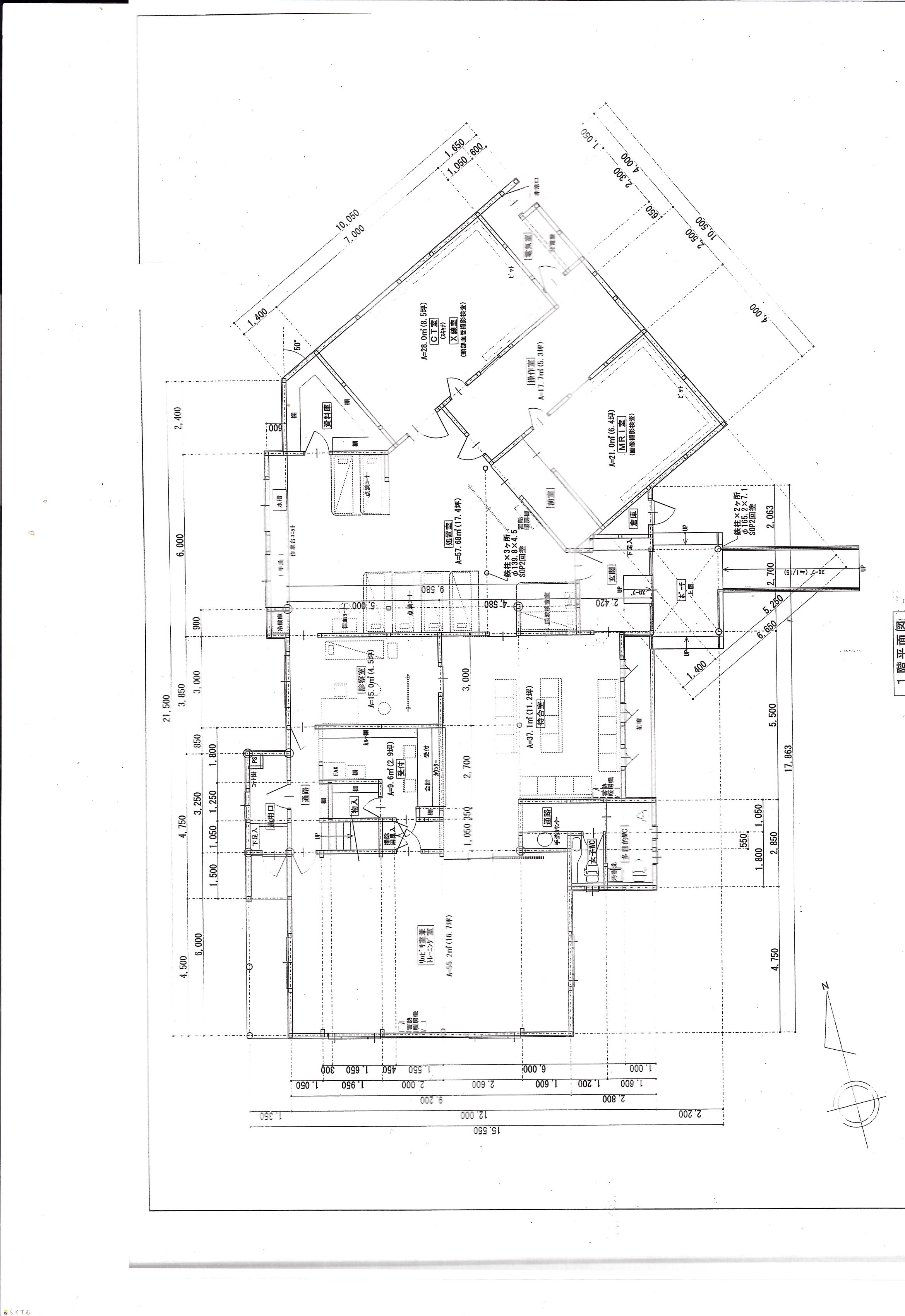
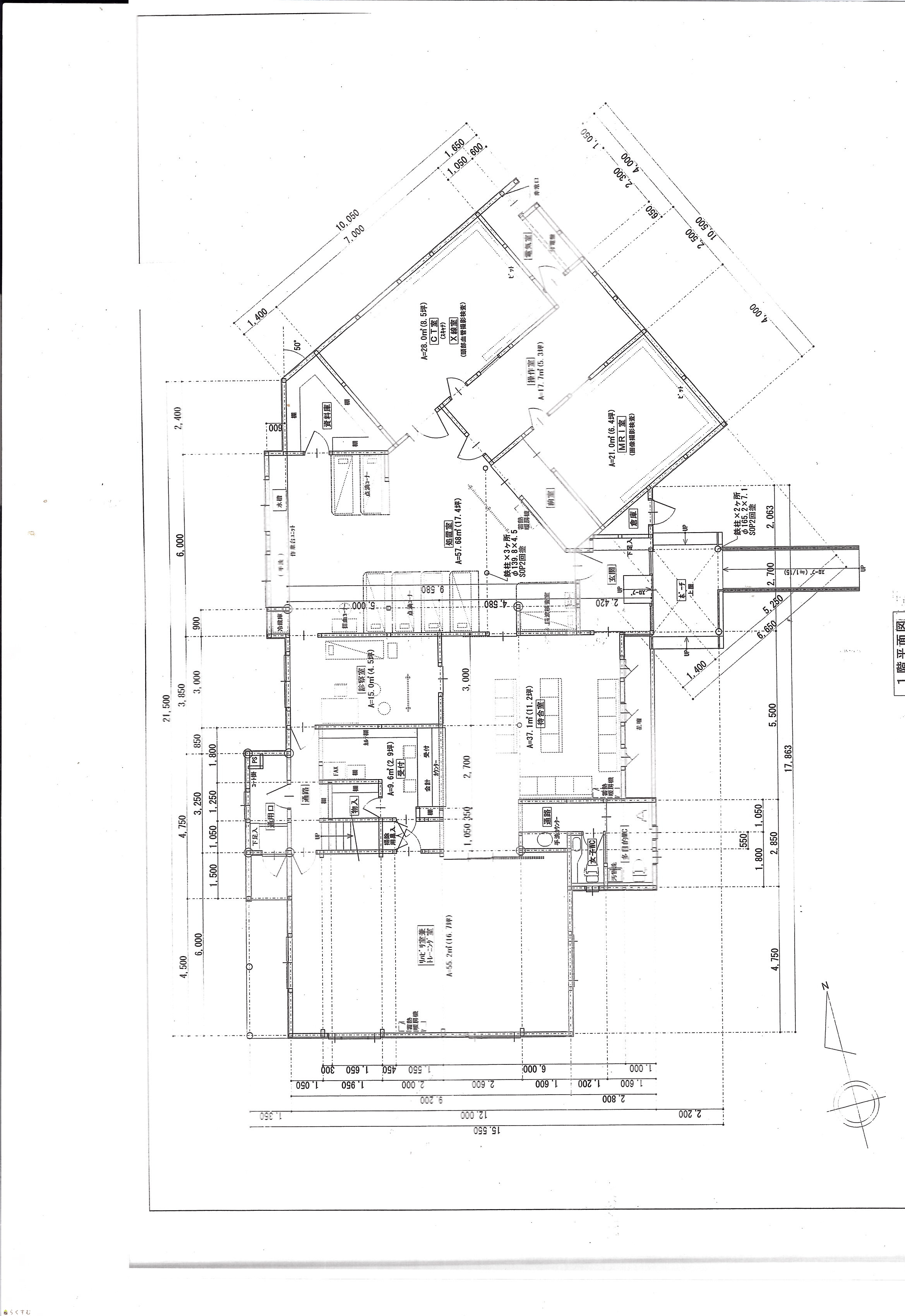
旧内科医院です。

物件名/所在地 詳細 価格
表面利回り
茨目180-108
新潟県柏崎市茨目2丁目956-1
  • 土地面積
    :597.38㎡ /180.7坪
  • 建ぺい率
    :70%
  • 容積率
    :200%
23,500,000
-
  • 茨目180-108
    株式会社 ウェルネスホーム
  • この物件を問い合わせる/無料
  • TEL: 0258-29-0003

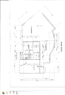
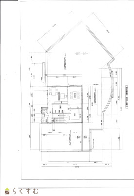
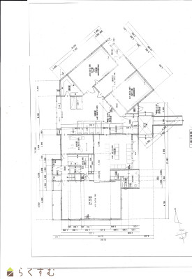
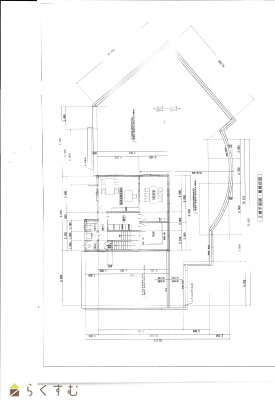
物件画像

外観 間取り
物件画像
※画像クリックで拡大表示
外観
物件画像
※画像クリックで拡大表示
間取り
詳細画像


物件概要

物件コード 00031-200169
物件名 茨目180-108
交通 駅:信越線 茨目駅から徒歩7分、バス:柏崎インター口から徒歩2分
物件所在地 新潟県柏崎市茨目2丁目956-1
物件種別 投資物件・その他
物件区分 その他
構造 木造 階建 -
建ぺい率/容積率 70%/200%
建物面積 1階 294.39㎡/ 2階 65.18㎡/ 計 359.57㎡ /108.76坪
土地面積 597.38㎡ /180.7坪
築年月 2005年11月(築20年)
入居(引き渡し)時期 相談
用途地域 用途の指定のない地域 地目 宅地
都市計画 非線引き都市計画区域 学校区 田尻小学校(1,944m)・東中学校(1,845m)
形状 間口 32.53m 道路 公道
私道 - その他の制限 -
  • 茨目180-108
    株式会社 ウェルネスホーム
  • この物件を問い合わせる/無料
  • TEL: 0258-29-0003

物件詳細情報

所在階/階数 - 号室 -
販売価格 23,500,000円 方位 -
表面利回り(満室想定時) - 満室想定年収 - (想定月収: - )
現行利回り - 現行年間年収 -
住戸数 -
間取り -
専有面積 - バルコニー面積 -
その他面積 - 駐車場 8台
管理費 - 修繕積立金 -
現況 空家
仲介手数料 841,500円
利用制限 -
設備 南側道路面す、駐車場(近隣含む)、公営水道、下水道、事業向け
取引態様 一般
備考 キュービクル設備は撤去してあります。エアコンは使用できません。
取り扱い会社

株式会社 ウェルネスホーム

新潟県長岡市大山1-8-5

情報登録日 2025/11/11 次回更新予定日 2026/04/05
取引条件有効期限 2026/03/31
  • 茨目180-108
    株式会社 ウェルネスホーム
  • この物件を問い合わせる/無料
  • TEL: 0258-29-0003

この物件の地図・周辺情報・行政情報

この物件の周辺情報・行政情報を詳しく見る
【周辺情報】
物件の近くにあるコンビニや銀行・学校など、アイコン付のマップで詳しく表示できます!
【行政情報】
水道料や下水道料・ガス料金など、暮らしに関係のある情報を表示しています。

担当取扱い店舗情報

取扱い店舗画像
株式会社 ウェルネスホーム
TEL: 0258-29-0003
所在地: 新潟県長岡市大山1-8-5
交通:
営業時間: 9:30~18:00/定休日:日曜・祭日 土曜は不定休
免許番号: 新潟県知事(8)3794号 この会社の情報を詳しく見る
所属団体名: 公益社団法人 全国宅地建物取引業保証協会
取引態様: 一般
ホームページ: http://www.wellnesshome.co.jp/