物件掲載企業数:299|賃貸物件:2,911件|売買物件:3,228件|今週の登録物件:348
閲覧中のブラウザ(インターネットエクスプローラー)は非推奨ブラウザです。
物件が正しく表示されなかったり、正しく検索されない場合があります。最新のブラウザ(Google Chrome・Edgeなど)にてご利用お願いいたします。
  

新潟県長岡市希望が丘1丁目504-11 売土地・分譲地 6,400,000円の物件情報

東向きの整形地 前面道路消雪設備完備 西中学校まで徒歩約1分 

物件名/所在地 詳細 価格
長岡市希望が丘一丁目売土地 B
新潟県長岡市希望が丘1丁目504-11
  • 土地面積
    :124.42㎡ /37.63坪
  • 坪単価
    :170,077円/坪
  • 建ぺい率
    :50%
  • 容積率
    :80%
6,400,000
  • 長岡市希望が丘一丁目売土地 B
    株式会社 長岡総合開発
  • この物件を問い合わせる/無料
  • TEL: 0258-46-8777

物件画像

外観 間取り
物件画像
※画像クリックで拡大表示
外観
物件画像
※画像クリックで拡大表示
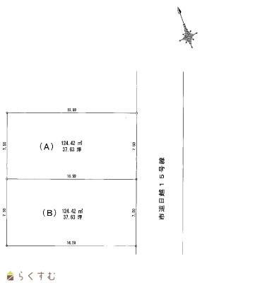
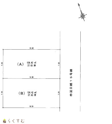
分割計画図
詳細画像


物件概要

物件コード 00030-200458
物件名 長岡市希望が丘一丁目売土地 B
交通 バス:西中学校前から徒歩2分
物件所在地 新潟県長岡市希望が丘1丁目504-11
物件種別 売土地・分譲地
物件区分 売土地
構造 - 階建 -
建ぺい率/容積率 50%/80%
建物面積 -
土地面積 124.42㎡ /37.63坪
築年月 -
入居(引き渡し)時期 相談
用途地域 第1種低層住居専用地域 地目 宅地  (現状:宅地)
都市計画 市街化区域 学校区 希望が丘小学校(398m)・西中学校(150m)
形状 間口 7.5m × 奥行 16.5m 道路 東側市道幅員6m
私道 - その他の制限 -
  • 長岡市希望が丘一丁目売土地 B
    株式会社 長岡総合開発
  • この物件を問い合わせる/無料
  • TEL: 0258-46-8777

物件詳細情報

所在階/階数 - 号室 -
販売価格 6,400,000円 方位 -
間取り -
専有面積 - バルコニー面積 -
その他面積 - 駐車場 -
管理費 - 修繕積立金 -
現況 -
仲介手数料 330,000円
利用制限 -
設備 整形地、前道6m以上、更地、学校近く、閑静な住宅街、建築条件なし、所有権、都市ガス(前面道路)、上水道(前面道路)、下水道(前面道路)、住宅向け、別荘地
取引態様 専任
備考 境界確定測量後、辺長及び面積と差異が生じることがあります。
道路消雪組合加入金調査中です。
取り扱い会社

株式会社 長岡総合開発

新潟県長岡市南七日町89-21

情報登録日 2025/02/07 次回更新予定日 2026/04/05
取引条件有効期限 2024/12/11
  • 長岡市希望が丘一丁目売土地 B
    株式会社 長岡総合開発
  • この物件を問い合わせる/無料
  • TEL: 0258-46-8777

この物件の地図・周辺情報・行政情報

この物件の周辺情報・行政情報を詳しく見る
【周辺情報】
物件の近くにあるコンビニや銀行・学校など、アイコン付のマップで詳しく表示できます!
【行政情報】
水道料や下水道料・ガス料金など、暮らしに関係のある情報を表示しています。

担当取扱い店舗情報

取扱い店舗画像
株式会社 長岡総合開発
TEL: 0258-46-8777
所在地: 新潟県長岡市南七日町89-21
交通: バス停「南七日町」徒歩3分
営業時間: 9:00~18:00/定休日:日曜・祭日
免許番号: 新潟県知事(10)2876号 この会社の情報を詳しく見る
所属団体名: 新潟県宅地建物取引業協会 長岡支部
取引態様: 専任
ホームページ: http://www.nagaoka-sk.co.jp