物件掲載企業数:297|賃貸物件:3,618件|売買物件:3,314件|今週の登録物件:271
閲覧中のブラウザ(インターネットエクスプローラー)は非推奨ブラウザです。
物件が正しく表示されなかったり、正しく検索されない場合があります。最新のブラウザ(Google Chrome・Edgeなど)にてご利用お願いいたします。
  

新潟県長岡市滝谷町623番1 中古一戸建て 6DK 17,000,000円の物件情報

ハウスメーカー施工の中古住宅です♪広々とした土地・建物でお手入れのされたお庭、眺めの良い景色♪駅も徒歩圏内です♪

物件名/所在地 詳細 価格
滝谷町中古住宅(ハウスメーカー施工)景色良好♪
新潟県長岡市滝谷町623番1
  • 土地面積
    :875.69㎡ /264.89坪
  • 建物面積
    :175.42㎡ /53.06坪
  • 間取り
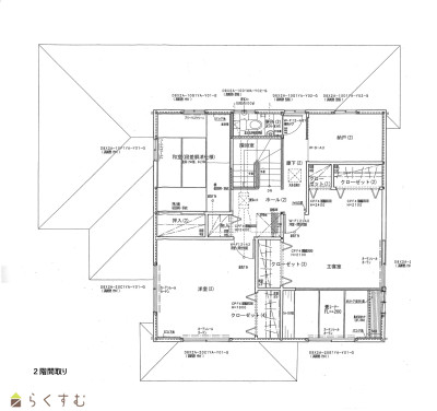
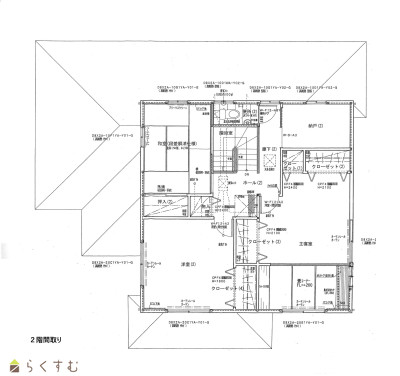
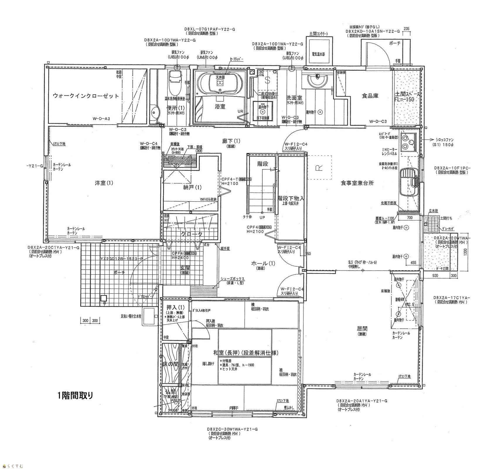
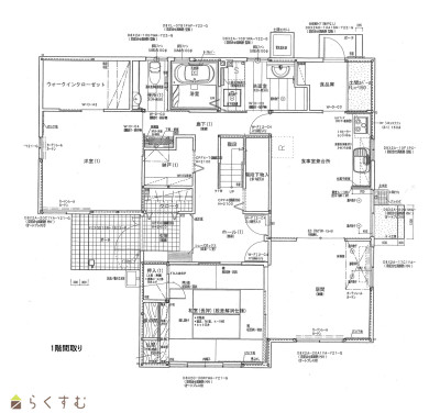
    :6DK
  • 築年月
    :2005年10月
17,000,000
  • 滝谷町中古住宅(ハウスメーカー施工)景色良好♪
    有限会社 ABCホーム
  • この物件を問い合わせる/無料
  • TEL: 0258-35-6682

物件画像

外観 間取り
物件画像
※画像クリックで拡大表示
外観
物件画像
※画像クリックで拡大表示
1階間取り
詳細画像


物件概要

ハウスメーカー施工の中古住宅です♪広々とした土地・建物でお手入れのされたお庭、眺めの良い景色♪駅も徒歩圏内です♪
物件コード 00017-200342
物件名 滝谷町中古住宅(ハウスメーカー施工)景色良好♪
交通 駅:上越線 越後滝谷駅から徒歩8分、バス:滝谷駅前から徒歩1分
物件所在地 新潟県長岡市滝谷町623番1
物件種別 中古一戸建て
構造 軽量鉄骨 階建 地上2階建
建ぺい率/容積率 70%/200%
建物面積 1階 107.36㎡/ 2階 68.06㎡/ 計 175.42㎡ /53.06坪
土地面積 875.69㎡ /264.89坪
築年月 2005年10月(築20年)
入居(引き渡し)時期 相談
用途地域 用途の指定のない地域 地目 宅地  (現状:宅地)
都市計画 市街化調整区域 学校区 岡南小学校(575m)・岡南中学校(750m)
形状 間口 22.7m × 奥行 34.9m 道路 西側長岡市道幅員約6.5m(消雪有)、東側長岡市道幅員約6m
私道 - その他の制限 別途農地4.8坪がつくため、農地法第3条の許可が必要です。
  • 滝谷町中古住宅(ハウスメーカー施工)景色良好♪
    有限会社 ABCホーム
  • この物件を問い合わせる/無料
  • TEL: 0258-35-6682

物件詳細情報

所在階/階数 - 号室 -
販売価格 17,000,000円 方位 西
間取り 6DK (和室:8畳、6畳) (洋室:8、8、8、11.5)
DK10
専有面積 - バルコニー面積 -
その他面積 - 駐車場 -
管理費 - 修繕積立金 -
現況 居住中
仲介手数料 627,000円
利用制限 -
設備 日当り良好、新築時図面あり、修繕記録あり、建物確認・完了検査済証あり、駐車3台以上可能、複層ガラス、システムキッチン、IHクッキングヒーター、食器洗浄乾燥機、追いだき機能付き、バス1坪以上、温水洗浄便座、トイレ2か所以上、シャワー付き洗面台、エアコンあり、オール電化、上水道、下水道、ウォークインクローゼット、全居室収納あり、外装リフォーム済み、田舎暮らし
取引態様 一般
備考 2020年11月外壁塗装済み
取り扱い会社

有限会社 ABCホーム

新潟県長岡市曙1-1-7

情報登録日 2025/10/17 次回更新予定日 2025/12/30
取引条件有効期限 2025/05/13
  • 滝谷町中古住宅(ハウスメーカー施工)景色良好♪
    有限会社 ABCホーム
  • この物件を問い合わせる/無料
  • TEL: 0258-35-6682

この物件の地図・周辺情報・行政情報

この物件の周辺情報・行政情報を詳しく見る
【周辺情報】
物件の近くにあるコンビニや銀行・学校など、アイコン付のマップで詳しく表示できます!
【行政情報】
水道料や下水道料・ガス料金など、暮らしに関係のある情報を表示しています。

担当取扱い店舗情報

取扱い店舗画像
有限会社 ABCホーム
TEL: 0258-35-6682
所在地: 新潟県長岡市曙1-1-7
交通:
営業時間: 9:00~18:00/定休日:
免許番号: 新潟県知事(4)4781号 この会社の情報を詳しく見る
所属団体名: 新潟県宅地建物取引業協会 長岡支部
取引態様: 一般
ホームページ: http://abc-home.d.dooo.jp/