物件掲載企業数:299|賃貸物件:3,635件|売買物件:3,319件|今週の登録物件:222
閲覧中のブラウザ(インターネットエクスプローラー)は非推奨ブラウザです。
物件が正しく表示されなかったり、正しく検索されない場合があります。最新のブラウザ(Google Chrome・Edgeなど)にてご利用お願いいたします。
  

新潟県十日町市西本町2丁目9番24 新築一戸建て 3LDK 27,800,000円の物件情報

オール電化!自然落雪屋根♪商業施設徒歩圏内◆2階LDK◆家事ラク動線◆角地

物件名/所在地 詳細 価格
十日町市西本町2丁目 建売住宅 2号棟
新潟県十日町市西本町2丁目9番24
  • 土地面積
    :183㎡ /55.35坪
  • 建物面積
    :94.6㎡ /28.61坪
  • 間取り
    :3LDK
  • 築年月
    :2026年2月
27,800,000
  • 十日町市西本町2丁目 建売住宅 2号棟
    有限会社 一代工務店
  • この物件を問い合わせる/無料
  • TEL: 0258-34-2221

物件画像

外観 間取り
物件画像
※画像クリックで拡大表示
※画像はイメージとなり実物と異なる場合があります。
物件画像
※画像クリックで拡大表示
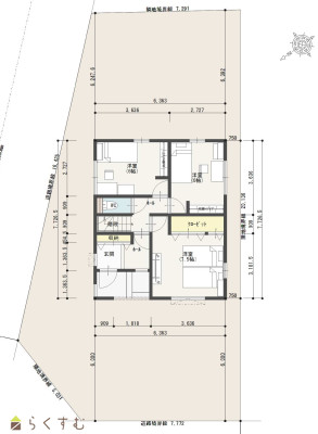
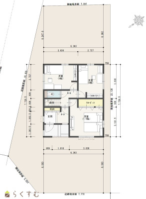
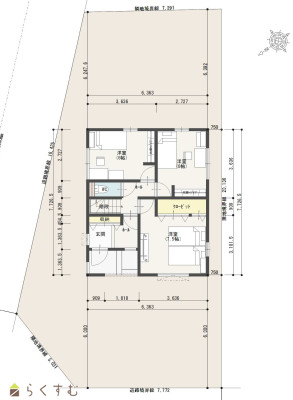
地型付間取り図
詳細画像


物件概要

◆オール電化・角地の3LDK住宅! ◆自然落雪屋根で、冬も安心です♪ ◆スーパー・コンビニ・ドラッグストアが徒歩圏内♪毎日のお買物に便利です。 ◆周りからの視線が気にならない2階リビングは、居心地が良く、家族団らんにも最適です。 ◆サンルームに洗濯機置き場を配置し、洗う・干すが一ヶ所で完結。家事の時短を叶える間取り♪ ◆生活感を隠してすっきり。整った暮らしを叶える3帖のファミリークロークを設置しました。
物件コード 00007-200753
物件名 十日町市西本町2丁目 建売住宅 2号棟
交通 駅:飯山線 十日町駅から徒歩19分、バス:十日町車庫前から徒歩7分
物件所在地 新潟県十日町市西本町2丁目9番24
物件種別 新築一戸建て
構造 木造 階建 地上2階建
建ぺい率/容積率 70%/150%
建物面積 計 94.6㎡ /28.61坪
土地面積 183㎡ /55.35坪
築年月 2026年2月完成予定
入居(引き渡し)時期 相談
用途地域 第1種中高層住居専用地域 地目
都市計画 非線引き都市計画区域 学校区 西小学校(377m)・南中学校(2,039m)
形状 - 道路 北東側:市道 8.0m、北西側:市道 8.0m
私道 - その他の制限 -
  • 十日町市西本町2丁目 建売住宅 2号棟
    有限会社 一代工務店
  • この物件を問い合わせる/無料
  • TEL: 0258-34-2221

物件詳細情報

所在階/階数 - 号室 -
販売価格 27,800,000円 方位 北西
間取り 3LDK (洋室:7.5、6、6)
LDK16.1
建築確認番号:NK第25長00383号、サンルームあり
専有面積 - バルコニー面積 -
その他面積 - 駐車場 -
管理費 - 修繕積立金 -
現況 指定なし
仲介手数料 なし
利用制限 -
設備 前面道路6m以上、日当り良好、閑静な住宅街、スーパー近く、BELS/省エネ基準適合認定建物、フラット35S適合、LDK15畳以上、全室フローリング、駐車場2台以上、TVインターホン、複層ガラス、ディンプルキー、システムキッチン、IHクッキングヒーター、浄水器、3口コンロ、追いだき機能付き、バス1坪以上、温水洗浄便座、シャワー付き洗面台、エアコン、24時間換気システム、オール電化、省エネ給湯、高気密高断熱住宅、上水道、下水道、電気、ウォークインクローゼット、全居室収納あり、床下収納、シューズBOX、照明器具付き
取引態様 売主
備考 ・22条指定区域
※物件掲載内容と現況に相違がある場合は現況を優先と致します。
詳細はお気軽にお問い合わせください。
担当:高橋
携帯:080-1223-9349
取り扱い会社

有限会社 一代工務店

新潟県長岡市信濃2-5-36

情報登録日 2025/10/25 次回更新予定日 2025/11/13
取引条件有効期限 2025/12/01
  • 十日町市西本町2丁目 建売住宅 2号棟
    有限会社 一代工務店
  • この物件を問い合わせる/無料
  • TEL: 0258-34-2221

この物件の地図・周辺情報・行政情報

この物件の周辺情報・行政情報を詳しく見る
【周辺情報】
物件の近くにあるコンビニや銀行・学校など、アイコン付のマップで詳しく表示できます!
【行政情報】
水道料や下水道料・ガス料金など、暮らしに関係のある情報を表示しています。
ローソン 十日町西本町店(コンビニ)まで260m
原信 十日町北店(スーパー)まで760m
ウエルシア十日町下川原町店 (調剤薬局)(ドラッグストア)まで320m

※カメラのアイコンがある場合は、マウスをポイントするとその施設の画像がご覧いただけます。


担当取扱い店舗情報

取扱い店舗画像
有限会社 一代工務店
TEL: 0258-34-2221
所在地: 新潟県長岡市信濃2-5-36
交通: 長岡駅
営業時間: 9:00~18:00/定休日:
免許番号: 新潟県知事(12)2196号 この会社の情報を詳しく見る
所属団体名: 新潟県宅地建物取引業協会 長岡支部
取引態様: 売主
ホームページ: http://www.ichidai-k.co.jp/