1
物件掲載企業数:
297
社
|賃貸物件:
3,598
件|売買物件:
3,313
件|今週の登録物件:
246
件
閲覧中のブラウザ(インターネットエクスプローラー)は非推奨ブラウザです。
物件が正しく表示されなかったり、正しく検索されない場合があります。最新のブラウザ(Google Chrome・Edgeなど)にてご利用お願いいたします。
Google Chrome
Microsoft Edge
アパート・マンション・一戸建て
駐車場
貸土地
店舗
事務所
倉庫・工場
新築分譲マンション
中古マンション
新築一戸建て
中古一戸建て
売土地・分譲地
その他(投資物件など)
マンション
一戸建て
土地
ホーム
>
検索方法選択
>
エリア選択
> 物件一覧
小千谷市
の
投資物件・その他
一覧
13件
該当しました。
表示切替:
一覧表示
/
地図表示
並び替え:
指定なし
新着順
価格が安い順
価格が高い順
画像
物件名/所在地/取扱店
詳細
大空間7DK×片貝町の静かな環境ーー家族みんながのびのび暮らせる築古物件のオーナーになりませんか
【投資物件】小千谷片貝町 7DK中古売家
新潟県小千谷市片貝町10237
フジクリエイト株式会社
価格
:
2,300,000
円
表面利回り
:-
土地面積
:201.29㎡ /60.89坪
建ぺい率
:50%
容積率
:150%
表面利回り(満室想定時) 22.22%!水回り綺麗な物件です!前面道路融雪あり!
小千谷市ひ生 オーナーチェンジ物件
新潟県小千谷市ひ生1598-8
ハウスドゥ 長岡中央店
価格
:
2,700,000
円
表面利回り
:
22.22
%
(満室想定時)
土地面積
:207.05㎡ /62.63坪
建ぺい率
:60%
容積率
:200%
賃貸中の駐車スペース部屋数ともに多数!田舎暮らしが快適な環境で実現できる物件をオーナーチェンジ
小千谷市 真人売家 オーナーチェンジ物件
小千谷市真人町丁562番地甲1
フジクリエイト株式会社
価格
:
3,000,000
円
表面利回り
:
16
%
(満室想定時)
土地面積
:637.54㎡ /192.85坪
建ぺい率
:-
容積率
:-
表面利回り(満室想定時)15.07%!駐車4台以上!うち車庫1台!4DK!
小千谷市ひ生 収益物件
新潟県小千谷市ひ生甲1836番地5
ハウスドゥ 長岡中央店
価格
:
3,980,000
円
表面利回り
:
15.07
%
(満室想定時)
土地面積
:244.85㎡ /74.06坪
建ぺい率
:70%
容積率
:200%
テナント付き住宅(地下駐車場あり)
小千谷市東栄 店舗兼住宅
新潟県小千谷市東栄1丁目6-35
有限会社 山林
価格
:
4,000,000
円
表面利回り
:
16.5
%
(満室想定時)
土地面積
:171.95㎡ /52.01坪
建ぺい率
:80%
容積率
:300%
賃貸中の駐車スペース部屋数ともに多数!田舎暮らしが快適な環境で実現できる物件をオーナーチェンジ
小千谷市 池ケ原売家 オーナーチェンジ物件
新潟県小千谷市大字池ケ原2450-1
フジクリエイト株式会社
価格
:
4,500,000
円
表面利回り
:
12
%
(満室想定時)
土地面積
:1,076.25㎡ /325.56坪
建ぺい率
:70%
容積率
:200%
家賃収入 18万円/月 年間216万円 現在満室 表面利回14.4%
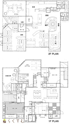
小谷市城内町1丁目 店舗・事務所・居宅
新潟県小千谷市城内1-8-16
ハウスドゥ 長岡中央店
価格
:
10,000,000
円
表面利回り
:-
土地面積
:66.81㎡ /20.21坪
建ぺい率
:80%
容積率
:200%
城内4丁目の売事務所 角地に面し両方融雪道路 店舗としても有用 駐車台数は10台以上可能 建築業者様、住宅用地として更地渡し応談致します
城内町 売店舗・事務所
小千谷市城内4丁目2-28
有限会社 アットホーム
価格
:
12,000,000
円
表面利回り
:-
土地面積
:349.37㎡ /105.68坪
建ぺい率
:60%
容積率
:200%
若葉3丁目の売事務所・店舗 駐車10台以上の3方向角地 調剤薬局として稼働していました 建築業者様、住宅用地としてご検討下さい 更地渡しと分割は当社購入後に応談致します
若葉町 売事務所・店舗
小千谷市若葉3丁目58
有限会社 アットホーム
価格
:
16,000,000
円
表面利回り
:-
土地面積
:672.88㎡ /203.54坪
建ぺい率
:60%
容積率
:200%
小千谷市内 人気レストラン+5LDK住宅 職住接近
小千谷市内 人気レストラン+5LDK住宅
新潟県小千谷市東栄1丁目1098番2
ふどうさんの相談所 (ライフデザイン合同会社 イオン長岡店)
価格
:
39,800,000
円
表面利回り
:-
土地面積
:481.99㎡ /145.8坪
建ぺい率
:60%
容積率
:200%
国道117号線に面する好立地 賃貸として貸出し中の為、投資物件にもおすすめ♪ 敷地内17台駐車可能、融雪設備有り
小千谷 平沢テナント
新潟県小千谷市平沢2丁目789番地2
株式会社 エヌ・アール・ケー総合企画
価格
:
49,800,000
円
表面利回り
:-
土地面積
:409㎡ /123.72坪
建ぺい率
:60%
容積率
:200%
総投資利回り11.4%(満室時)、小千谷駅まで徒歩約3分、小中学校も徒歩圏内、生活の利便性は良好。
メゾンドネッカA棟・B棟(共同住宅)
新潟県小千谷市東栄1丁目6-30
アパマンショップ西長岡店 小千谷産業株式会社
価格
:
63,800,000
円
表面利回り
:
11
%
(満室想定時)
土地面積
:1,044.61㎡ /315.99坪
建ぺい率
:80%
容積率
:300%
満室時表面利回り10%(現在満室) 小千谷駅まで徒歩4分、小千谷ICまで車で8分の好立地、8帖のロフトがある天井高の高い開放的な室内空間
小千谷市東栄一丁目 売アパート2棟
新潟県小千谷市東栄一丁目乙725番地67
株式会社 エヌ・アール・ケー総合企画
価格
:
88,800,000
円
表面利回り
:
10
%
(満室想定時)
土地面積
:991.74㎡ /300坪
建ぺい率
:80%
容積率
:300%
表示切替:
一覧表示
/
地図表示
並び替え:
指定なし
新着順
価格が安い順
価格が高い順
価格は物件の代金総額を表示しており、消費税が課税される場合は税込み価格です。
建築条件付き土地価格には、建物価格は含まれません。
物件情報の詳細については取り扱い店までお問い合わせください。
完成予想図はいずれも外構・植栽・外観等実際のものと異なることが多少あります。
CG合成の画像の場合実際と異なることが多少あります。
完成後1年以上経過したものが未入居として記載される場合があります。ご了承ください。
販売予定物件は販売開始するまで契約または予約の申し込みはできません。
ご購入の場合物件詳細や契約内容についてご自身で十分ご確認いただきますようよろしく御願いします。
建築条件付きとは…その土地に建築する建物の建築請負契約が、一定期間内に成立することを条件として売買される土地のことをいいます。請負契約成立に向けて設計プランを協議するため、土地購入者が希望する建物にするために一定の期間(概ね3ヶ月)交渉期間としその期間内に希望するプランが実現できたかどうかによって土地の購入の判断をします。納得のいくプランができず請負契約が未成立になった場合、土地契約にかかった代金(手付金など)は、すべて返却されます。
13件
該当しました。
0件
がマッチ
基本条件
物件種別
投資物件・その他
詳細種別
1棟売りマンション・アパート
マンション(区分所有)
その他
価格
下限なし
100万円
250万円
500万円
1000万円
1500万円
2000万円
2500万円
3000万円
3500万円
4000万円
4500万円
5000万円
5500万円
6000万円
6500万円
7000万円
7500万円
8000万円
8500万円
9000万円
9500万円
1億円
~
上限なし
100万円
250万円
500万円
1000万円
1500万円
2000万円
2500万円
3000万円
3500万円
4000万円
4500万円
5000万円
5500万円
6000万円
6500万円
7000万円
7500万円
8000万円
8500万円
9000万円
9500万円
1億円
間取り
ワンルーム
1K
1DK
1LDK
2K
2DK
2LDK
3K
3DK
3LDK
4K
4DK
4LDK以上
専有面積
下限なし
20㎡
30㎡
40㎡
50㎡
60㎡
70㎡
80㎡
90㎡
100㎡
~
上限なし
20㎡
30㎡
40㎡
50㎡
60㎡
70㎡
80㎡
90㎡
100㎡
土地面積
下限なし
60㎡ (約18坪)
70㎡ (約21坪)
80㎡ (約24坪)
90㎡ (約27坪)
100㎡ (約30坪)
110㎡ (約33坪)
120㎡ (約36坪)
130㎡ (約39坪)
140㎡ (約42坪)
150㎡ (約45坪)
160㎡ (約48坪)
170㎡ (約51坪)
180㎡ (約54坪)
190㎡ (約57坪)
200㎡ (約60坪)
250㎡ (約75坪)
300㎡ (約90坪)
~
上限なし
60㎡ (約18坪)
70㎡ (約21坪)
80㎡ (約24坪)
90㎡ (約27坪)
100㎡ (約30坪)
110㎡ (約33坪)
120㎡ (約36坪)
130㎡ (約39坪)
140㎡ (約42坪)
150㎡ (約45坪)
160㎡ (約48坪)
170㎡ (約51坪)
180㎡ (約54坪)
190㎡ (約57坪)
200㎡ (約60坪)
250㎡ (約75坪)
300㎡ (約90坪)
建物面積
下限なし
60㎡ (約18坪)
70㎡ (約21坪)
80㎡ (約24坪)
90㎡ (約27坪)
100㎡ (約30坪)
110㎡ (約33坪)
120㎡ (約36坪)
130㎡ (約39坪)
140㎡ (約42坪)
150㎡ (約45坪)
160㎡ (約48坪)
170㎡ (約51坪)
180㎡ (約54坪)
190㎡ (約57坪)
200㎡ (約60坪)
250㎡ (約75坪)
300㎡ (約90坪)
~
上限なし
60㎡ (約18坪)
70㎡ (約21坪)
80㎡ (約24坪)
90㎡ (約27坪)
100㎡ (約30坪)
110㎡ (約33坪)
120㎡ (約36坪)
130㎡ (約39坪)
140㎡ (約42坪)
150㎡ (約45坪)
160㎡ (約48坪)
170㎡ (約51坪)
180㎡ (約54坪)
190㎡ (約57坪)
200㎡ (約60坪)
250㎡ (約75坪)
300㎡ (約90坪)
坪単価
下限なし
5万円
10万円
15万円
20万円
25万円
30万円
35万円
40万円
45万円
50万円
~
上限なし
5万円
10万円
15万円
20万円
25万円
30万円
35万円
40万円
45万円
50万円
築年数
指定なし
新築
3年以内
5年以内
10年以内
15年以内
20年以内
方位
北
北東
東
南東
南
南西
西
北西
おすすめ条件
ペット可・相談
楽器可・相談
情報公開日
指定なし
本日
3日以内
1週間以内
1ヶ月以内
0件
がマッチ
人気のあるこだわり条件
角地(6)
南側道路面す(3)
駐車場(近隣含む)(6)
公営水道(5)
都市ガス(4)
LPG(1)
下水道(4)
事業向け(5)
田舎暮らし(2)
高利回り物件(1)
条件に合った物件数は、
0 件
です。
立地・環境
角地(6)
南側道路面す(3)
構造
駐車場(近隣含む)(6)
設備
公営水道(5)
都市ガス(4)
LPG(1)
下水道(4)
その他
事業向け(5)
田舎暮らし(2)
高利回り物件(1)
条件に合った物件数は、
0 件
です。
アパート・マンション・一戸建て
/
駐車場
/
貸土地
/
店舗
/
事務所
/
倉庫・工場
新築分譲マンション
/
中古マンション
/
新築一戸建て
/
中古一戸建て
/
売土地
/
投資物件・その他
マンション
/
一戸建て
/
土地
建てる・リフォーム
物件掲載企業一覧
掲載希望の企業様へ
新潟の不動産情報サイト
サービス利用規約
運営会社
サイトマップ
プライバシーポリシー
お問い合わせ
リンク
Copyright (C)
株式会社 コモンライフ・コーポレーション
. All Rights Reserved.
新潟・長岡・柏崎の賃貸・マンション・アパート・住宅の不動産物件情報サイト
不動産検索サイト「らくすむ」及び関連サイトに記載の不動産情報は、会員規約に則り、情報提供会社様の責任のもとに発信されております。
不動産の賃借、購入に関しては賃借者、購入者ご自身が情報を確認され、会社企業様から説明を受けられたうえで判断をお願いいたします。
不動産検索サイト「らくすむ」及び関連サイトに記載の不動産情報、写真、デザイン、コンテンツなどの
無断転載・転用・複製
など禁止します。