1
物件掲載企業数:
301
社
|賃貸物件:
3,180
件|売買物件:
3,245
件|今週の登録物件:
101
件
閲覧中のブラウザ(インターネットエクスプローラー)は非推奨ブラウザです。
物件が正しく表示されなかったり、正しく検索されない場合があります。最新のブラウザ(Google Chrome・Edgeなど)にてご利用お願いいたします。
Google Chrome
Microsoft Edge
アパート・マンション・一戸建て
駐車場
貸土地
店舗
事務所
倉庫・工場
新築分譲マンション
中古マンション
新築一戸建て
中古一戸建て
売土地・分譲地
その他(投資物件など)
マンション
一戸建て
土地
ホーム
>
検索方法選択
>
エリア選択
> 物件一覧
全エリア
の
中古一戸建て
一覧
695件
該当しました。
<前のページ
16
17
18
19
20
21
22
23
24
25
26
次のページ>
表示切替:
一覧表示
/
地図表示
並び替え:
指定なし
新着順
価格が安い順
価格が高い順
画像
物件名/所在地/取扱店
詳細
東南向きの閑静な住宅地!
今井3丁目売家
新潟県長岡市今井3丁目69番地
株式会社 新日本地所
価格
:
11,000,000
円
土地面積
:251.21㎡ /75.99坪
建物面積
:149.63㎡ /45.26坪
間取り
:6DK
築年月
:1982年7月
新道小学校区! 子供部屋3部屋(6帖)! 東南角地!
向陽町 中古住宅
新潟県柏崎市向陽町1279-88
株式会社 ライフプラン
価格
:
11,000,000
円
土地面積
:273.04㎡ /82.59坪
建物面積
:238.58㎡ /72.17坪
間取り
:6DK
築年月
:1988年6月
■暮らしやすさと落ち着きが共存する、花園エリアの心地よい立地。 ■小学校・中学校も近くにあり、お子様と一緒に暮らしやすいエリアです! ■長岡駅まで徒歩約20分!
長岡市花園3丁目
新潟県長岡市花園3丁目2番12号
ハーバーエステート株式会社
価格
:
11,000,000
円
土地面積
:188㎡ /56.87坪
建物面積
:98.14㎡ /29.68坪
間取り
:6DK
築年月
:1972年1月
築96年の趣ある住まいは、週末の隠れ家やアトリエにも最適。海辺の町・柿崎で、都会とは違う時間を過ごしてみませんか?
柿崎区直海浜中古一戸建て
新潟県上越市柿崎区直海浜1479
田中不動産株式会社
価格
:
11,000,000
円
土地面積
:4,489.76㎡ /1,358.15坪
建物面積
:173.81㎡ /52.57坪
間取り
:12K
築年月
:1929年1月
■全室ペアガラスのインナーガレージ邸宅。3台駐車可能。 ■エアコン、FFファンヒーター付き ■アクロスプラザ長岡まで車で約4分(1000m)
長岡市中沢3丁目
新潟県長岡市中沢3丁目624番地6
ハーバーエステート株式会社
価格
:
11,000,000
円
土地面積
:191.1㎡ /57.8坪
建物面積
:251.7㎡ /76.13坪
間取り
:5LDK
築年月
:1994年6月
■積水ハウス施工 42坪の広々としたお家です ■ガレージ3台分+カーポート2台分 ■間取は4SLDK、2階にもトイレ有 ■広々としたお庭が付いています
長岡市天下島
新潟県長岡市天下島318-1
ハーバーエステート株式会社
価格
:
11,000,000
円
土地面積
:464.65㎡ /140.55坪
建物面積
:139.16㎡ /42.09坪
間取り
:4LDK
築年月
:1997年3月
■内外装リフォーム済 ・4LDK住宅 ■駐車3台可 ■水廻り全て新品交換
(リフォーム物件)柏崎市大字与三
新潟県柏崎市与三2051
新潟土地建物販売センター 株式会社
価格
:
11,490,000
円
土地面積
:238㎡ /71.99坪
建物面積
:109.3㎡ /33.06坪
間取り
:4LDK
築年月
:1984年3月
【糸魚川市上刈1丁目中古住宅】
新潟県糸魚川市上刈1丁目4-1
株式会社 糸魚川不動産
価格
:
11,500,000
円
土地面積
:241.4㎡ /73.02坪
建物面積
:247.79㎡ /74.95坪
間取り
:8DK
築年月
:1996年7月
長倉南町売住宅
新潟県長岡市長倉南町1382-1
ホームメイトFC長岡店 株式会社栄不動産
価格
:
11,500,000
円
土地面積
:237.49㎡ /71.84坪
建物面積
:93.73㎡ /28.35坪
間取り
:5DK
築年月
:1966年9月
閑静な住宅街に立地し、公園のそばの為、四季を体感できる住環境。
見附市嶺崎1丁目土地建物
新潟県見附市嶺崎1丁目11-5
橋本建設 株式会社
価格
:
11,600,000
円
土地面積
:338.44㎡ /102.37坪
建物面積
:108.05㎡ /32.68坪
間取り
:4LDK
築年月
:2007年5月
【駐車4台&全居室収納付き!内外装リフォーム済み物件】 ■国道116号線まで車約2分 ■スーパー・コンビニまで徒歩9分圏内 ■水回り設備すべて新品 ■全居室に収納完備
刈羽郡刈羽村大字上高町 リフォーム住宅
新潟県刈羽郡刈羽村上高町甲58-33
新潟土地建物販売センター 株式会社
価格
:
11,690,000
円
土地面積
:148.47㎡ /44.91坪
建物面積
:91.91㎡ /27.8坪
間取り
:4LDK
築年月
:1994年6月
【内外装大幅リフォーム】■5DK■駐車2台■水回り全て新品交換■外壁塗装
三条市猪子場新田 中古物件
新潟県三条市猪子場新田914-14
株式会社 ナンバ管理
価格
:
11,800,000
円
土地面積
:142.24㎡ /43.02坪
建物面積
:94.39㎡ /28.55坪
間取り
:5DK
築年月
:1991年6月
【価格改定】川崎一丁目6LDK住宅!前面は融雪道路で冬も安心です!ファミリーマート徒歩1分・原信今朝白店徒歩9分の利便性の良い立地です!売主につき仲介手数料不要!
川崎6LDK住宅
新潟県長岡市川崎1丁目2519番地7
株式会社 和興不動産
価格
:
11,800,000
円
土地面積
:161㎡ /48.7坪
建物面積
:246.13㎡ /74.45坪
間取り
:6LDK
築年月
:1987年11月
こだわりのある内装で、趣味が多い方にもピッタリな物件です!
柿崎区柿崎 売家 1,180万円
新潟県上越市柿崎区柿崎5716
RE不動産(㈱ディライト)
価格
:
11,800,000
円
土地面積
:146.04㎡ /44.17坪
建物面積
:137.11㎡ /41.47坪
間取り
:3LDK
築年月
:2003年9月
市営バス「東城町3丁目」バス停徒歩4分
上越市南城町4丁目戸建
新潟県上越市南城町4丁目
株式会社リビングギャラリー
価格
:
11,800,000
円
土地面積
:363㎡ /109.8坪
建物面積
:150.31㎡ /45.46坪
間取り
:5LDK
築年月
:1967年10月
65坪の整形地 インナーガレージ、庭付きで居心地の良いハウスです。
新潟市南区大通南2丁目 中古住宅
新潟市南区大通南2丁目93
株式会社 エヌ・アール・ケー総合企画
価格
:
11,800,000
円
土地面積
:215.14㎡ /65.07坪
建物面積
:96.27㎡ /29.12坪
間取り
:4DK
築年月
:1984年11月
4SLDK+駐車3台可の一部リフォーム済中古住宅です。2台分のカーポート付き!
長岡市中興野 中古戸建
新潟県長岡市中興野401-6
長岡不動産販売株式会社
価格
:
11,980,000
円
土地面積
:228.07㎡ /68.99坪
建物面積
:140.76㎡ /42.57坪
間取り
:4LDK
築年月
:1991年8月
【見学会開催】【内外装リフォーム済】 【即入居可】 徒歩8分以内に教育施設(岡南小学校300m、岡南中学校600m)が揃う、充実の子育て環境。車通りが少ない閑静な住宅街。国道17号まで200m。
長岡市滝谷町字屋敷添1367番3、1367番6
新潟県長岡市滝谷町1367-3
株式会社 カチタス長岡店
価格
:
11,990,000
円
土地面積
:166.72㎡ /50.43坪
建物面積
:104.74㎡ /31.68坪
間取り
:3LDK
築年月
:1980年11月
ラ・ムー愛宕店まで徒歩7分!インナーガレージ1台、他4台!駐車可能 和室が多い間取りですが、リノベーションのしやすさが魅力の大型住宅 インナーサッシ付・ユニットバス交換済
【長岡市東栄3】中古住宅
新潟県長岡市東栄3丁目1-24
ミサワホーム北越 株式会社
価格
:
12,000,000
円
土地面積
:256.02㎡ /77.44坪
建物面積
:183.32㎡ /55.45坪
間取り
:7DK
築年月
:1981年10月
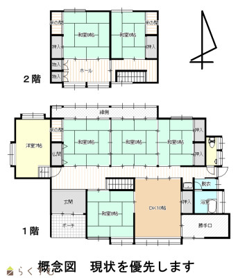
敷地面積256.37坪のゆとりある敷地に大家族向け9DK住宅。平成16年にリホームをし大変きれいな状態を維持しており、おどろきの築60年住宅です。
来迎寺
新潟県長岡市来迎寺甲1357番地
株式会社 高野不動産販売
価格
:
12,000,000
円
土地面積
:847.53㎡ /256.37坪
建物面積
:223.38㎡ /67.57坪
間取り
:9DK
築年月
:1965年4月
表示切替:
一覧表示
/
地図表示
並び替え:
指定なし
新着順
価格が安い順
価格が高い順
価格は物件の代金総額を表示しており、消費税が課税される場合は税込み価格です。
建築条件付き土地価格には、建物価格は含まれません。
物件情報の詳細については取り扱い店までお問い合わせください。
完成予想図はいずれも外構・植栽・外観等実際のものと異なることが多少あります。
CG合成の画像の場合実際と異なることが多少あります。
完成後1年以上経過したものが未入居として記載される場合があります。ご了承ください。
販売予定物件は販売開始するまで契約または予約の申し込みはできません。
ご購入の場合物件詳細や契約内容についてご自身で十分ご確認いただきますようよろしく御願いします。
建築条件付きとは…その土地に建築する建物の建築請負契約が、一定期間内に成立することを条件として売買される土地のことをいいます。請負契約成立に向けて設計プランを協議するため、土地購入者が希望する建物にするために一定の期間(概ね3ヶ月)交渉期間としその期間内に希望するプランが実現できたかどうかによって土地の購入の判断をします。納得のいくプランができず請負契約が未成立になった場合、土地契約にかかった代金(手付金など)は、すべて返却されます。
695件
該当しました。
<前のページ
16
17
18
19
20
21
22
23
24
25
26
次のページ>
0件
がマッチ
基本条件
物件種別
中古一戸建て
価格
下限なし
100万円
250万円
500万円
1000万円
1500万円
2000万円
2500万円
3000万円
3500万円
4000万円
4500万円
5000万円
5500万円
6000万円
6500万円
7000万円
7500万円
8000万円
8500万円
9000万円
9500万円
1億円
~
上限なし
100万円
250万円
500万円
1000万円
1500万円
2000万円
2500万円
3000万円
3500万円
4000万円
4500万円
5000万円
5500万円
6000万円
6500万円
7000万円
7500万円
8000万円
8500万円
9000万円
9500万円
1億円
間取り
ワンルーム
1K
1DK
1LDK
2K
2DK
2LDK
3K
3DK
3LDK
4K
4DK
4LDK以上
専有面積
下限なし
20㎡
30㎡
40㎡
50㎡
60㎡
70㎡
80㎡
90㎡
100㎡
~
上限なし
20㎡
30㎡
40㎡
50㎡
60㎡
70㎡
80㎡
90㎡
100㎡
土地面積
下限なし
60㎡ (約18坪)
70㎡ (約21坪)
80㎡ (約24坪)
90㎡ (約27坪)
100㎡ (約30坪)
110㎡ (約33坪)
120㎡ (約36坪)
130㎡ (約39坪)
140㎡ (約42坪)
150㎡ (約45坪)
160㎡ (約48坪)
170㎡ (約51坪)
180㎡ (約54坪)
190㎡ (約57坪)
200㎡ (約60坪)
250㎡ (約75坪)
300㎡ (約90坪)
~
上限なし
60㎡ (約18坪)
70㎡ (約21坪)
80㎡ (約24坪)
90㎡ (約27坪)
100㎡ (約30坪)
110㎡ (約33坪)
120㎡ (約36坪)
130㎡ (約39坪)
140㎡ (約42坪)
150㎡ (約45坪)
160㎡ (約48坪)
170㎡ (約51坪)
180㎡ (約54坪)
190㎡ (約57坪)
200㎡ (約60坪)
250㎡ (約75坪)
300㎡ (約90坪)
建物面積
下限なし
60㎡ (約18坪)
70㎡ (約21坪)
80㎡ (約24坪)
90㎡ (約27坪)
100㎡ (約30坪)
110㎡ (約33坪)
120㎡ (約36坪)
130㎡ (約39坪)
140㎡ (約42坪)
150㎡ (約45坪)
160㎡ (約48坪)
170㎡ (約51坪)
180㎡ (約54坪)
190㎡ (約57坪)
200㎡ (約60坪)
250㎡ (約75坪)
300㎡ (約90坪)
~
上限なし
60㎡ (約18坪)
70㎡ (約21坪)
80㎡ (約24坪)
90㎡ (約27坪)
100㎡ (約30坪)
110㎡ (約33坪)
120㎡ (約36坪)
130㎡ (約39坪)
140㎡ (約42坪)
150㎡ (約45坪)
160㎡ (約48坪)
170㎡ (約51坪)
180㎡ (約54坪)
190㎡ (約57坪)
200㎡ (約60坪)
250㎡ (約75坪)
300㎡ (約90坪)
坪単価
下限なし
5万円
10万円
15万円
20万円
25万円
30万円
35万円
40万円
45万円
50万円
~
上限なし
5万円
10万円
15万円
20万円
25万円
30万円
35万円
40万円
45万円
50万円
築年数
指定なし
新築
3年以内
5年以内
10年以内
15年以内
20年以内
方位
北
北東
東
南東
南
南西
西
北西
おすすめ条件
ペット可・相談
楽器可・相談
情報公開日
指定なし
本日
3日以内
1週間以内
1ヶ月以内
0件
がマッチ
人気のあるこだわり条件
角地(134)
高台に立地(40)
日当り良好(341)
閑静な住宅街(371)
スーパー近く(145)
長期優良住宅(3)
設計住宅性能評価付(2)
耐震構造(9)
フラット35S適合(1)
瑕疵担保保険対象(7)
耐震基準適合証明書あり(3)
新築時図面あり(57)
修繕記録あり(9)
BELS/省エネ基準適合認定建物(2)
インスペクション報告書あり(8)
建物確認・完了検査済証あり(26)
適合状況調査報告書あり(1)
瑕疵担保保険付き(16)
LDK15帖以上(145)
全室フローリング(54)
築10年以内(40)
築15年以内(26)
駐車2台可能(233)
駐車3台以上可能(265)
駐車場融雪設備あり(33)
南向き(149)
TVインターホン(128)
複層ガラス(85)
デインプルキー(36)
システムキッチン(242)
カウンターキッチン(73)
IHクッキングヒーター(110)
浄水器(29)
食器洗浄乾燥機(52)
3口コンロ(152)
2口コンロ(27)
ガスコンロ設置可能(37)
ガスコンロ設置済み(44)
追いだき機能付き(297)
浴室乾燥機(52)
バス1坪以上(251)
温水洗浄便座(324)
トイレ2か所以上(231)
シャワー付き洗面台(198)
エアコンあり(252)
床暖房(15)
24時間換気システム(41)
堀ごたつ(3)
全室エアコン(12)
オール電化(52)
太陽光発電システム(5)
省エネ給湯機(48)
ウッドデッキ・テラス(21)
ルーフバルコニー(15)
都市ガス(444)
LPG(98)
上水道(587)
下水道(504)
浄化槽(66)
バリアフリー(25)
その他水道(3)
ウォークインクローゼット(90)
全居室収納あり(127)
床下収納(45)
シューズBOX(149)
シューズインクローゼット(18)
BS端子(18)
CS(5)
CATV(7)
LAN端子(3)
内装リフォーム済み(82)
外装リフォーム済み(59)
リノベーション物件(31)
2世帯向き(36)
即引き渡し可能(150)
別荘(74)
田舎暮らし(168)
事業向け(46)
条件に合った物件数は、
0 件
です。
立地・環境
角地(134)
高台に立地(40)
日当り良好(341)
閑静な住宅街(371)
スーパー近く(145)
構造・工法・仕様
長期優良住宅(3)
設計住宅性能評価付(2)
耐震構造(9)
フラット35S適合(1)
瑕疵担保保険対象(7)
耐震基準適合証明書あり(3)
新築時図面あり(57)
修繕記録あり(9)
BELS/省エネ基準適合認定建物(2)
インスペクション報告書あり(8)
建物確認・完了検査済証あり(26)
適合状況調査報告書あり(1)
瑕疵担保保険付き(16)
面積・間取り
LDK15帖以上(145)
全室フローリング(54)
築年
築10年以内(40)
築15年以内(26)
駐車・駐輪
駐車2台可能(233)
駐車3台以上可能(265)
駐車場融雪設備あり(33)
採光・向き
南向き(149)
管理・防犯
TVインターホン(128)
複層ガラス(85)
デインプルキー(36)
キッチン
システムキッチン(242)
カウンターキッチン(73)
IHクッキングヒーター(110)
浄水器(29)
食器洗浄乾燥機(52)
3口コンロ(152)
2口コンロ(27)
ガスコンロ設置可能(37)
ガスコンロ設置済み(44)
浴室
追いだき機能付き(297)
浴室乾燥機(52)
バス1坪以上(251)
トイレ
温水洗浄便座(324)
トイレ2か所以上(231)
洗面所
シャワー付き洗面台(198)
冷暖房・空調
エアコンあり(252)
床暖房(15)
24時間換気システム(41)
堀ごたつ(3)
全室エアコン(12)
光熱設備
オール電化(52)
太陽光発電システム(5)
省エネ給湯機(48)
バルコニー・テラス
ウッドデッキ・テラス(21)
ルーフバルコニー(15)
室内仕様・設備
都市ガス(444)
LPG(98)
上水道(587)
下水道(504)
浄化槽(66)
バリアフリー(25)
その他水道(3)
収納
ウォークインクローゼット(90)
全居室収納あり(127)
床下収納(45)
シューズBOX(149)
シューズインクローゼット(18)
電気設備
BS端子(18)
CS(5)
CATV(7)
LAN端子(3)
リフォーム
内装リフォーム済み(82)
外装リフォーム済み(59)
リノベーション物件(31)
費用・入居・引渡・条件
2世帯向き(36)
即引き渡し可能(150)
その他
別荘(74)
田舎暮らし(168)
事業向け(46)
条件に合った物件数は、
0 件
です。
アパート・マンション・一戸建て
/
駐車場
/
貸土地
/
店舗
/
事務所
/
倉庫・工場
新築分譲マンション
/
中古マンション
/
新築一戸建て
/
中古一戸建て
/
売土地
/
投資物件・その他
マンション
/
一戸建て
/
土地
建てる・リフォーム
物件掲載企業一覧
掲載希望の企業様へ
新潟の不動産情報サイト
サービス利用規約
運営会社
サイトマップ
プライバシーポリシー
お問い合わせ
リンク
Copyright (C)
株式会社 コモンライフ・コーポレーション
. All Rights Reserved.
新潟・長岡・柏崎の賃貸・マンション・アパート・住宅の不動産物件情報サイト
不動産検索サイト「らくすむ」及び関連サイトに記載の不動産情報は、会員規約に則り、情報提供会社様の責任のもとに発信されております。
不動産の賃借、購入に関しては賃借者、購入者ご自身が情報を確認され、会社企業様から説明を受けられたうえで判断をお願いいたします。
不動産検索サイト「らくすむ」及び関連サイトに記載の不動産情報、写真、デザイン、コンテンツなどの
無断転載・転用・複製
など禁止します。