| ・雰囲気の良い内装のため、美容・アパレル関係にオススメ(飲食不可) ・専有面積の他、別途ロフトあり(約6帖) ・駐車場2台込み、有料で3台追加可能(1台6,000円/月) ・内覧可能 ※予約制ですので事前にお問合せください | |||
| 物件コード | 00263-100133 | ||
|---|---|---|---|
| 物件名 | 石橋2丁目貸店舗 | ||
| 交通 | 駅:妙高はねうまライン 直江津駅から徒歩19分 | ||
| 所在地 | 新潟県上越市石橋2丁目5-36 | ||
| 物件種別 | 店舗 | ||
| 総戸数 | - | ||
| 構造 | 木造 | 階建 | 地上1階建 |
| 所在階/階数 | 1階/1階 | 号室 | - |
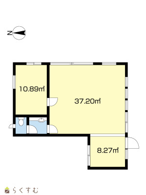
| 面積 | 60.51㎡ (18.3坪) | 方位 | - |
| 間取り |
|
||
| 賃料 | 16.5万円/月
|
管理費 | - |
| 礼金 | - | 敷金 | 2ヶ月
|
| ほか初期費用 | - | その他諸費用 | - |
| 更新料 | - | 火災(家財)保険 | 借家人賠償責任保障付きテナント保険:加入要 |
| 共益費 | - | 町内費 | - |
| 駐車場 | 2台込み、有料で3台追加可能(1台6,000円/月) | バイク料金 | - |
| 鍵交換費 | - | 清掃料 | - |
| 更新事務手数料 |
22,000円
|
||
| 保証区分 |
連帯保証人+保証会社 |
||
| 保証会社 |
区分:加入要 保証会社名:日本セーフティ 初回保証料:賃料等合計の100%、継続保証料:1年毎に賃料等合計の10%。※最低保証料あり |
||
| 連帯保証人 |
区分:要 - |
||
| 仲介手数料 |
165,000円
|
||
| 築年月 | 2022年4月(築4年) | ||
| 利用制限 | 法人:可 | ||
| 学校区 | 直江津南小学校(1,562m) | ||
| 設備 | 1階、駐車場あり | ||
| 入居時期 | 2026年3月中旬以降 | ||
| 取引態様 | 仲介 | ||
| 備考 | ・原則、家具等は撤去後の引き渡し ・水道共用のためオーナーより請求あり ・エアコンは修繕非対応 ・除雪は貸主で実施(費用負担あり) |
||
| 手数料負担割合/配分割合 | 貸主:-% 借主:100% / 元付:50% 客付:50% | ||
| 情報登録日 | 2026/02/16 | 次回更新予定日 | 2026/05/21 |
|
|
|
|
| TEL: | 025-544-6015 |
|---|---|
| 所在地: | 新潟県上越市春日新田1-20-8 |
| 交通: | |
| 営業時間: | 9:00~18:00/定休日:水・日・祝 |
| 免許番号: | 新潟県知事(10)第3031号 |
| 所属団体名: | 公社 新潟県宅地建物取引協会 上越支部 |
| 取引態様: | 仲介 |