| 賃料には共益費・駐車料(9台分)が含まれています。使用面積にご希望ありましたらご相談ください。 | |||
| 物件コード | 00209-100139 | ||
|---|---|---|---|
| 物件名 | 山吉ビル1F-A | ||
| 交通 | 駅:妙高はねうまライン 春日山駅から徒歩25分 | ||
| 所在地 | 新潟県上越市藤巻8-59山吉ビル1階 | ||
| 物件種別 | 店舗 | ||
| 総戸数 | - | ||
| 構造 | 鉄骨 | 階建 | 地上2階建 |
| 所在階/階数 | 1階/2階 | 号室 | - |
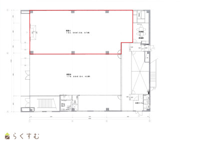
| 面積 | 194.96㎡ (58.97坪) | 方位 | - |
| 間取り |
|
||
| 賃料 | 33万円/月
共益費、駐車料(9台分)込み |
管理費 | - |
| 礼金 | - | 敷金 | 4ヶ月
|
| ほか初期費用 | - | その他諸費用 | - |
| 更新料 | - | 火災(家財)保険 | - |
| 共益費 | - | 町内費 | 実費負担 |
| 駐車場 | - | バイク料金 | - |
| 鍵交換費 | - | 清掃料 | - |
| 更新事務手数料 | - | ||
| 保証区分 |
保証会社のみ |
||
| 保証会社 |
区分:加入要 保証会社名:その他 (CIZ) - |
||
| 家賃保証金 |
297,000円
別途事務手数料 |
||
| 連帯保証人 |
区分:不要 - |
||
| 仲介手数料 |
330,000円
|
||
| 築年月 | 1988年6月(築37年) | ||
| 利用制限 | - | ||
| 学校区 | 高志小学校(805m)・春日中学校(1,988m) | ||
| 設備 | 1階、融雪設備あり、エアコン、男女トイレ別、飲食店可、駐車場あり | ||
| 入居時期 | 相談 | ||
| 取引態様 | 仲介 | ||
| 備考 | 間仕切壁設置工事後の引渡し(業種により要相談) 冬期間除雪費の負担あり 物件敷地内に別途駐車場あり(応相談) |
||
| 手数料負担割合/配分割合 | 貸主:-% 借主:-% / 元付:-% 客付:-% | ||
| 情報登録日 | 2026/02/17 | 次回更新予定日 | 2026/04/05 |
|
|
|
|
| TEL: | 025-544-2724 |
|---|---|
| 所在地: | 新潟県上越市西本町2-3-21 |
| 交通: | 直江津駅 |
| 営業時間: | 8:30~17:00/定休日:第2.4土・日・祝 |
| 免許番号: | 新潟県知事(10)第2765号 |
| 所属団体名: | 公社新潟県宅地建物取引協会 上越支部 |
| 取引態様: | 仲介 |