| 上越のデザイナーズマンションです!駐車場消雪設備、光インターネット無料! | |||
| 物件コード | 00203-114194 | ||
|---|---|---|---|
| 物件名 | M.MICASA | ||
| 交通 | 駅:南高田 | ||
| 所在地 | 新潟県上越市とよば150 | ||
| 物件種別 | アパート・マンション・一戸建て | ||
| 総戸数 | 19戸 | ||
| 構造 | 鉄筋コン | 階建 | 地上4階建 |
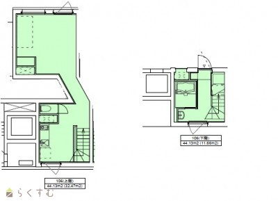
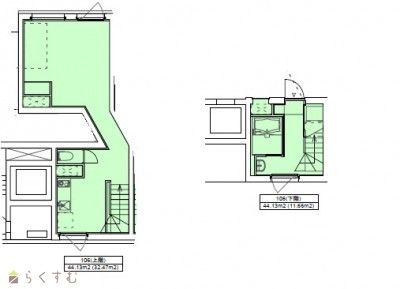
| 所在階/階数 | 1階/4階 | 号室 | 106号室 |
| 面積 | 44.13㎡ (13.34坪) | 方位 | 南 |
| 間取り | 1DK (洋室:7)
|
||
| 賃料 | 5.6万円/月
|
管理費 |
4,000円/月
|
| 礼金 | 1ヶ月
|
敷金 | -
|
| ほか初期費用 | 53350円(退去時クリーニング費用:46200円/投てき消火剤/1本:7150円) | その他諸費用 | 町内会費:500円 |
| 更新料 | - | 火災(家財)保険 |
15,000円
損害保険:2年間1.5万円 |
| 駐車場 |
3,300円
有敷地内 3300円 |
バイク料金 | - |
| 鍵交換費 | - | 清掃料 | - |
| 退去時クリーニング費用 |
46,200円
|
||
| 投てき消火剤/1本 |
7,150円
|
||
| 町内会費 |
500円
|
||
| 更新事務手数料 | - | ||
| 保証区分 |
保証会社のみ |
||
| 保証会社 |
区分:加入要 保証会社名:その他 (-) 初回月額賃料合計の50%が必要、更新1万円/年毎 |
||
| 連帯保証人 |
区分:不要+保証会社利用が必要 - |
||
| 仲介手数料 | 61,600円 | ||
| 築年月 | 2010年4月(築15年) | ||
| 利用制限 | 単身者:可、ペット:不可、事務所利用:不可 | ||
| 学校区 | - | ||
| 設備 | 日当り良好、デザイナーズ、エレベーター、宅配BOX、敷地内ゴミ置き場、メゾネット、駐車2台可、駐輪場あり、駐車場 礼金なし、駐車場 敷金なし、玄関オートロック、カードキー、システムキッチン、IHクッキングヒーター、バストイレ別、追いだき機能付き、浴室乾燥機、温水洗浄便座、洗面所独立、シャワー付き洗面台、エアコン、オール電化、3か所給湯、洗濯機置場 室内、脱衣所、床下収納、クロゼット、BS端子・アンテナ、TVモニター付きインターホン、インターネット無料、インターネット接続可、インターネット 光、メゾネット式 | ||
| 入居時期 | 相談 | ||
| 取引態様 | 仲介 | ||
| 備考 | - | ||
| 手数料負担割合/配分割合 | 貸主:0% 借主:100% / 元付:50% 客付:50% | ||
| 情報登録日 | 2025/12/20 | 次回更新予定日 | 2026/01/03 |
|
|
|
|
| TEL: | 025-521-6322 |
|---|---|
| 所在地: | 新潟県上越市春日山町3-20-53 |
| 交通: | |
| 営業時間: | 10:00~18:00/定休日:水曜日 |
| 免許番号: | 国土交通大臣(5)第5854号 |
| 所属団体名: | 公社新潟県宅地建物取引業協会 上越支部 |
| 取引態様: | 仲介 |