| 広~くて設備の整ったテナント!様々な用途に使えそうです(^▽^)/ | |||
| 物件コード | 00200-100310 | ||
|---|---|---|---|
| 物件名 | 【立地◎】春日山管財ビル 1F | ||
| 交通 | 駅:妙高はねうまライン 春日山駅から徒歩16分、バス:春日野一丁目から徒歩2分 | ||
| 所在地 | 新潟県上越市大豆1丁目8番43号1F | ||
| 物件種別 | 事務所 | ||
| 総戸数 | 2戸 | ||
| 構造 | 鉄骨 | 階建 | 地上2階建 |
| 所在階/階数 | 1階/2階 | 号室 | - |
| 面積 | 404.52㎡ (122.36坪) | 方位 | - |
| 間取り |
|
||
| 賃料 | 66万円/月
消費税込み |
管理費 |
55,000円/月
消費税込み |
| 礼金 | - | 敷金 | 360万円
賃料の 6ヶ月分 |
| ほか初期費用 | - | その他諸費用 | 賃料自動送金システム「スピードペイ」振込手数料として、毎月440円(税込)、利用更新料として1年毎に5,500円(税込)がかかります。 |
| 更新料 | - | 火災(家財)保険 | - |
| 共益費 | - | 町内費 | - |
| 駐車場 |
専有20台 |
バイク料金 | - |
| 鍵交換費 | - | 清掃料 | - |
| 保証審査事務手数料 |
2,200円
|
||
| 更新事務手数料 | - | ||
| 保証区分 |
保証会社+緊急連絡先 |
||
| 保証会社 |
区分:加入要 保証会社名:CIZ ベーシックプラン(契約時のみの支払い、退去まで保証、保証更新料なし) |
||
| 家賃保証金 |
550,550円
月額合計賃料の77% |
||
| 連帯保証人 |
区分:不要 - |
||
| 仲介手数料 |
660,000円
|
||
| 築年月 | 1997年5月(築29年) | ||
| 利用制限 | 法人:可、ペット:相談、事務所利用:可 | ||
| 学校区 | 春日小学校(534m)・春日中学校(584m) | ||
| 設備 | 1階、オートロック、24時間セキュリティー、光ファイバー、エアコン、男女トイレ別、即引き渡し可、給湯、駐車場あり | ||
| 入居時期 | 即入居可 | ||
| 取引態様 | 仲介 | ||
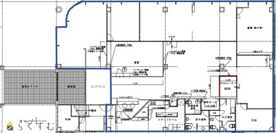
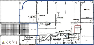
| 備考 | ・間取り図の青色で囲ってあるエリアが専有部分になります。車寄せポーチから風除室、エントランスまでのエリアは共有スペースとなります。 ・冬季間の駐車場内の除雪費用は、駐車台数で按分負担になります。 ・専有駐車場が20台とお客様用駐車場(2Fと共用)があります。台数追加が必要な場合は、応相談とします。 ・エアコンは2024年に入れ替え済みです。 ・セコム設備あり。セキュリティ加入は任意ですが、借主負担となります。 ・保証区分についての指定は無く、相談の上内容を決定します。 内覧やご不明点は、お気軽に025-520-8197(株)お不動さんまでお問い合わせください(^▽^)/ |
||
| 手数料負担割合/配分割合 | 貸主:-% 借主:100% / 元付:50% 客付:50% | ||
| 情報登録日 | 2025/07/14 | 次回更新予定日 | 2026/05/21 |
|
|
|
|
| TEL: | 025-520-8197 |
|---|---|
| 所在地: | 上越市中央一丁目12番36号 |
| 交通: | 直江津駅 |
| 営業時間: | 8:30~17:30/定休日:日曜・祝日・第2土曜日・第4土曜日 |
| 免許番号: | 新潟県知事(2)第5449号 |
| 所属団体名: | 公社 新潟県宅地建物取引協会 上越支部 |
| 取引態様: | 仲介 |