| 照明・カセットエアコン付き | |||
| 物件コード | 00041-100618 | ||
|---|---|---|---|
| 物件名 | 見附市昭和町2丁目 事業用貸物件 | ||
| 交通 | 駅:信越線 見附駅から徒歩19分、バス:市役所前から徒歩3分 | ||
| 所在地 | 新潟県見附市昭和町2丁目104-1 | ||
| 物件種別 | 店舗 | ||
| 総戸数 | - | ||
| 構造 | 鉄骨 | 階建 | 地上1階建 |
| 所在階/階数 | 1階/1階 | 号室 | ①号室 |
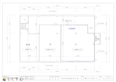
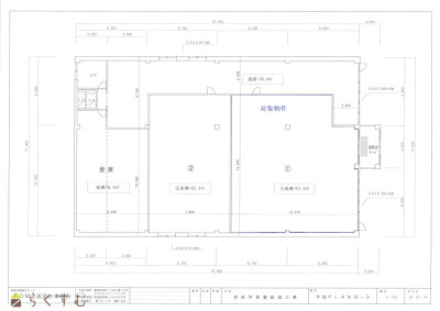
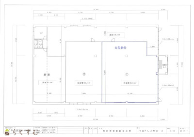
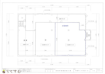
| 面積 | 157.3㎡ (47.58坪) | 方位 | - |
| 間取り |
|
||
| 賃料 | 24.75万円/月
|
管理費 | - |
| 礼金 | - | 敷金 | 3ヶ月
|
| ほか初期費用 | - | その他諸費用 | - |
| 更新料 | - | 火災(家財)保険 | - |
| 共益費 | - | 町内費 | - |
| 駐車場 |
8台賃料込み |
バイク料金 | - |
| 鍵交換費 | - | 清掃料 | - |
| 更新事務手数料 | - | ||
| 保証区分 |
連帯保証人+保証会社 |
||
| 保証会社 |
区分:加入要 保証会社名:日本セーフティ 【初回保証料】月額総賃料の100%,最低保証料40,000円【更新料】月払い0.8%,最低保証料800円/月又は年払い10%,最低保証料10,000円/年を選択。 |
||
| 連帯保証人 |
区分:要 法人契約の場合代表者の連帯保証要。 |
||
| 仲介手数料 |
247,500円
|
||
| 築年月 | 1997年6月(築28年) | ||
| 利用制限 | - | ||
| 学校区 | 葛巻小学校(1,467m)・西中学校(554m) | ||
| 設備 | 1階、エアコン、駐車場あり | ||
| 入居時期 | 即入居可 | ||
| 取引態様 | 仲介 | ||
| 備考 | トイレ、給湯室:テナント共用 電気については、子メーターにつき、水道料金と合わせて、 別途請求となります。 |
||
| 手数料負担割合/配分割合 | 貸主:-% 借主:-% / 元付:-% 客付:-% | ||
| 情報登録日 | 2025/10/24 | 次回更新予定日 | 2026/05/21 |
|
|
|
|
| TEL: | 0258-33-7711 |
|---|---|
| 所在地: | 新潟県長岡市柏町1丁目4-33 |
| 交通: | 長岡駅 |
| 営業時間: | 9:00~17:30/定休日:土曜日・日曜日・祝日・お盆・年末年始 |
| 免許番号: | 新潟県知事(1)第5568号 |
| 所属団体名: | (公社)新潟県宅地建物取引業協会,(公社)首都圏不動産公正取引協議会,(公財)日本賃貸住宅管理協会 |
| 取引態様: | 仲介 |