| リフォーム中につき、R8年1月中旬頃から入居可能です。 新幹線長岡駅まですぐ! | |||
| 物件コード | 00027-100005 | ||
|---|---|---|---|
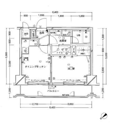
| 物件名 | リバーヴュー長岡 1DK | ||
| 交通 | 駅:上越新幹線 長岡駅から徒歩10分、バス:大手通2丁目から徒歩4分 | ||
| 所在地 | 新潟県長岡市表町1丁目10-7 | ||
| 物件種別 | アパート・マンション・一戸建て | ||
| 総戸数 | - | ||
| 構造 | 鉄骨鉄筋コン | 階建 | 地上14階建 |
| 所在階/階数 | 5階/14階 | 号室 | 510号室 |
| 面積 | 32㎡ (9.68坪) | 方位 | 北西 |
| 間取り | 1DK (洋室:5.5)
DK5.5 B・T別室/水洗トイレ/洗濯機置場/エアコン/BS端子 |
||
| 賃料 | 5.8万円/月
|
管理費 | - |
| 礼金 | 1ヶ月
|
敷金 | 1ヶ月
|
| ほか初期費用 | - | その他諸費用 | - |
| 更新料 | 更新料新賃料の1ヶ月分( | 火災(家財)保険 | 加入のこと |
| 共益費 | - | 町内費 | - |
| 駐車場 | - | バイク料金 | - |
| 鍵交換費 | - | 清掃料 | - |
| 更新事務手数料 | - | ||
| 保証区分 |
連帯保証人のみ |
||
| 保証会社 |
区分:指定なし - |
||
| 連帯保証人 |
区分:要 - |
||
| 仲介手数料 |
63,800円
|
||
| 築年月 | 1991年10月(築34年) | ||
| 利用制限 | シニア(60歳以上)入居:相談、ペット:不可、楽器:不可、事務所利用:相談、ルームシェア:不可 | ||
| 学校区 | 表町小学校(698m)・東中学校(1,323m) | ||
| 設備 | 最寄り駅近く、エレベーター、宅配BOX、敷地内ゴミ置き場、駐輪場あり、玄関オートロック、管理人常駐、エントランスオートロック、IHクッキングヒーター、バストイレ別、温水洗浄便座、洗面所独立、エアコン、オール電化、公営水道、バルコニー、全居室フローリング、エコキュート、シューズBOX、TVモニター付きインターホン、各居室照明、保証会社利用可能、エレベーター/駐輪場/エントランス・オートロック/モニター付インターホン/オール電化 | ||
| 入居時期 | リフォーム中につき、令和8年1月中旬~ | ||
| 取引態様 | 仲介 | ||
| 備考 | 現在、リフォーム中につき H8年1月中旬予定~となります。 物件画像と現況が異なる場合、現況を優先いたします。 |
||
| 手数料負担割合/配分割合 | 貸主:-% 借主:-% / 元付:-% 客付:-% | ||
| 情報登録日 | 2025/12/04 | 次回更新予定日 | 2025/12/30 |
|
|
|
|
|
|
| TEL: | 0258-30-0114 |
|---|---|
| 所在地: | 新潟県長岡市台町2-4-56E・PLAZA1階 |
| 交通: | 長岡駅東口バスロータリー前 |
| 営業時間: | 10:00~18:00/定休日:なし ※年末年始、GWお盆期間は休日がございます。 |
| 免許番号: | 新潟県知事(16)566号 |
| 所属団体名: | 新潟県宅地建物取引業協会 長岡支部 |
| 取引態様: | 仲介 |