| 物件コード | 00014-100504 | ||
|---|---|---|---|
| 物件名 | 西宮内2丁目 貸倉庫 251坪 | ||
| 交通 | 駅:信越線 宮内駅から徒歩20分、バス:三和町から徒歩4分 | ||
| 所在地 | 新潟県長岡市西宮内2丁目133 | ||
| 物件種別 | 倉庫・工場・その他 | ||
| 総戸数 | - | ||
| 構造 | 鉄骨 | 階建 | 地上2階建 |
| 所在階/階数 | - | 号室 | - |
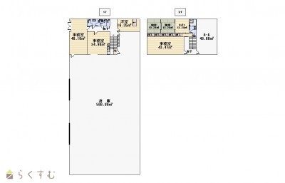
| 面積 | 832.33㎡ (251.77坪) | 方位 | - |
| 間取り |
|
||
| 賃料 | 38万円/月
|
管理費 | - |
| 礼金 | -
|
敷金 | 3ヶ月
|
| ほか初期費用 | - | その他諸費用 | - |
| 更新料 | - | 火災(家財)保険 | 別途 |
| 共益費 | - | 町内費 | 別途 |
| 駐車場 |
|
バイク料金 | - |
| 鍵交換費 | - | 清掃料 | - |
| 更新事務手数料 | - | ||
| 保証区分 |
連帯保証人のみ |
||
| 保証会社 |
区分:指定なし - |
||
| 連帯保証人 |
区分:要 - |
||
| 仲介手数料 |
418,000円
|
||
| 築年月 | 1979年12月(築46年) | ||
| 利用制限 | - | ||
| 学校区 | 宮内小学校(596m)・宮内中学校(796m) | ||
| 設備 | 駐車場あり | ||
| 入居時期 | 2026年2月~ | ||
| 取引態様 | 仲介 | ||
| 備考 | - | ||
| 手数料負担割合/配分割合 | 貸主:0% 借主:100% / 元付:50% 客付:50% | ||
| 情報登録日 | 2025/06/16 | 次回更新予定日 | 2026/05/21 |
|
|
|
|
|
| TEL: | 0120-35-3901 |
|---|---|
| 所在地: | 新潟県長岡市要町3-1-26 |
| 交通: | 長岡駅大手口①バス乗場より乗車~溝橋下車徒歩約4分 |
| 営業時間: | 9:30~18:00/定休日:日曜・祝祭日 |
| 免許番号: | 新潟県知事(16)第495号 |
| 所属団体名: | 新潟県宅地建物取引業協会 長岡支部 |
| 取引態様: | 仲介 |