| 1年以下利用(短期利用)は6万~8万になります。 | |||
| 物件コード | 00011-100430 | ||
|---|---|---|---|
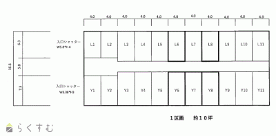
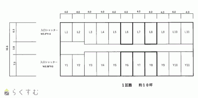
| 物件名 | 寿1丁目『10坪区画貸し倉庫』 天井クレーン付きです。 | ||
| 交通 | 駅:信越線 北長岡駅から徒歩34分、バス:北中学校前から徒歩5分 | ||
| 所在地 | 長岡市寿1丁目2-51 | ||
| 物件種別 | 倉庫・工場・その他 | ||
| 総戸数 | - | ||
| 構造 | 鉄骨 | 階建 | 地上1階建 |
| 所在階/階数 | - | 号室 | - |
| 面積 | 33㎡ (9.98坪) | 方位 | - |
| 間取り |
|
||
| 賃料 | 5万円/月
1年以上利用の場合 |
管理費 | - |
| 礼金 | -
|
敷金 | - |
| ほか初期費用 | - | その他諸費用 | 別途消費税 |
| 更新料 | - | 火災(家財)保険 | - |
| 共益費 | - | 町内費 | - |
| 駐車場 | - | バイク料金 | - |
| 鍵交換費 | - | 清掃料 | - |
| 更新事務手数料 | - | ||
| 保証区分 |
連帯保証人+緊急連絡先 |
||
| 保証会社 |
区分:指定なし - |
||
| 連帯保証人 |
区分:要 - |
||
| 仲介手数料 |
55,000円
|
||
| 築年月 | 不詳 | ||
| 利用制限 | - | ||
| 学校区 | 新町小学校(1,127m)・北中学校(356m) | ||
| 設備 | 駐車場あり | ||
| 入居時期 | 相談 | ||
| 取引態様 | 仲介 | ||
| 備考 | 軽作業で電力使用の場合は別途協議。 賃料に別途消費税がかかります。 |
||
| 手数料負担割合/配分割合 | 貸主:-% 借主:100% / 元付:50% 客付:50% | ||
| 情報登録日 | 2025/10/20 | 次回更新予定日 | 2026/02/18 |
|
|
|
|
|
|
| TEL: | 0258-24-0623 |
|---|---|
| 所在地: | 新潟県長岡市蔵王2丁目4番17号 |
| 交通: | JR北長岡駅 |
| 営業時間: | 8:30~17:30/定休日:第2・4土曜・日曜・祭日 |
| 免許番号: | 新潟県知事(2)第5364号 |
| 所属団体名: | 新潟県宅地建物取引業協会 長岡支部 |
| 取引態様: | 仲介 |