| 物件コード | 00004-100441 | ||
|---|---|---|---|
| 物件名 | プレオハイツA | ||
| 交通 | 駅:信越線 来迎寺駅から徒歩46分、バス:技大前から徒歩7分 | ||
| 所在地 | 新潟県長岡市上富岡2丁目1864-7 | ||
| 物件種別 | アパート・マンション・一戸建て | ||
| 総戸数 | - | ||
| 構造 | 木造 | 階建 | 地上2階建 |
| 所在階/階数 | 1階/2階 | 号室 | 101号室 |
| 面積 | 19.53㎡ (5.9坪) | 方位 | 指定なし |
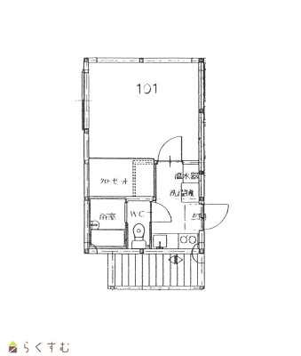
| 間取り | 1K (洋室:7)
|
||
| 賃料 | 4万円/月
|
管理費 | - |
| 礼金 | -
|
敷金 | - |
| ほか初期費用 | - | その他諸費用 | - |
| 更新料 | - | 火災(家財)保険 | 要加入 |
| 共益費 | - | 町内費 | - |
| 駐車場 |
月額4000円、空き要確認 |
バイク料金 | - |
| 鍵交換費 |
17,600円
|
清掃料 | - |
| 更新事務手数料 | - | ||
| 保証区分 |
保証会社+緊急連絡先 |
||
| 保証会社 |
区分:加入要 保証会社名:ジェイリース ①Jフラット 初回保証料 月額の総賃料70%、継続保証料 月額1,200円 ②学生プラン 初回保証料 一律 2万円、継続保証料 月額1,000円 ③留学生 連帯保証人 学校、敷金 4万円 |
||
| 家賃保証金 |
28,000円
|
||
| 連帯保証人 |
区分:不要 - |
||
| 仲介手数料 |
44,000円
|
||
| 築年月 | 1999年2月(築27年) | ||
| 利用制限 | 学生:可、単身者:可、二人入居:不可、ペット:不可、楽器:不可、ルームシェア:不可 | ||
| 学校区 | 才津小学校(1,500m)・西中学校(3,286m) | ||
| 設備 | ロフト、駐輪場あり、角住居、バストイレ別、温水洗浄便座、エアコン、オール電化、全居室フローリング、洗濯機置場 室内、クロゼット、TVモニター付きインターホン、インターネット無料、各居室照明、学生向け、一人暮らし・学生向け、長岡技術科学大学生におすすめ | ||
| 入居時期 | 2026年4月上旬予定 | ||
| 取引態様 | 仲介 | ||
| 備考 | 画像と現況が異なる場合、現況を優先します。駐車場を借りる場合は月額4000円です(仲介手数料、保証料が変わります)。 | ||
| 手数料負担割合/配分割合 | 貸主:-% 借主:100% / 元付:50% 客付:50% | ||
| 情報登録日 | 2026/02/16 | 次回更新予定日 | 2026/05/21 |
|
|
|
|
|
|
| TEL: | 0258-28-1414 |
|---|---|
| 所在地: | 新潟県長岡市三ツ郷屋2丁目5-23 |
| 交通: | 西長岡案内所バス停徒歩2分 |
| 営業時間: | 平日9時~18時・土曜日10時~15時(3月休みなし)/定休日:日曜、祝祭日、年末年始(12/27~1/4) |
| 免許番号: | 新潟県知事(14)1645号 |
| 所属団体名: | 新潟県宅地建物取引業協会 長岡支部 |
| 取引態様: | 仲介 |