物件掲載企業数:297|賃貸物件:3,599件|売買物件:3,314件|今週の登録物件:263
閲覧中のブラウザ(インターネットエクスプローラー)は非推奨ブラウザです。
物件が正しく表示されなかったり、正しく検索されない場合があります。最新のブラウザ(Google Chrome・Edgeなど)にてご利用お願いいたします。
  

全エリア貸事務所一覧

表示切替: 一覧表示 地図表示    並び替え:
画像 物件名
所在地
取扱店
面積
間取り
所在階
築年数
賃料
管理費等
共益費
敷金
保証金
礼金
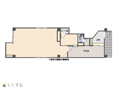
上越の真ん中にあるテナントビル
物件画像
物件画像
物件画像
物件画像
詳細☆お気に入り★お気に入り
木田中央ビル
    新潟県上越市木田2丁目7-23
    (事務所)
    38.86㎡
    (11.75坪)
    -
    2階
    44年
    8.58万円
    なし
    なし
    2ヶ月
    なし
    1ヶ月
    写真たくさんあり!!
    物件画像
    物件画像
    物件画像
    物件画像
    詳細☆お気に入り★お気に入り
    棚橋不動産 関東町ビル(旧斉木ビル)
    301号室
      新潟県長岡市関東町3番地9
      (事務所)
      78.42㎡
      (23.72坪)
      -
      3階
      51年
      8.8万円
      なし
      なし
      2ヶ月
      なし
      1ヶ月
      事務所の2階部分です。敷地内駐車場4台込みです!
      物件画像
      物件画像
      物件画像
      物件画像
      詳細☆お気に入り★お気に入り
      港町2丁目 貸事務所2階
        新潟県上越市港町2-10-8
        (事務所)
        73.28㎡
        (22.16坪)
        -
        2階
        28年
        8.8万円
        なし
        なし
        16万円
        なし
        なし
        写真たくさんあり!!
        駐車場2台家賃込み !
        物件画像
        物件画像
        物件画像
        物件画像
        詳細☆お気に入り★お気に入り
        春日新田2丁目 貸事務所
          新潟県上越市春日新田2丁目11-11
          (事務所)
          121.3㎡
          (36.69坪)
          -
          1階
          45年
          8.8万円
          なし
          なし
          2ヶ月
          なし
          0.5ヶ月
          写真たくさんあり!!
          人通り・車通りの多い488号線にある広めな事務所です!駐車場2台賃料込み★
          物件画像
          物件画像
          物件画像
          物件画像
          詳細☆お気に入り★お気に入り
          【人通り◎】春日新田貸事務所1F
            新潟県上越市春日新田2丁目11-111F
            (事務所)
            121.3㎡
            (36.69坪)
            -
            1階
            45年
            8.8万円
            なし
            なし
            2ヶ月
            なし
            0.5ヶ月
            写真たくさんあり!!
            本町通りの貸事務所です!
            物件画像
            物件画像
            物件画像
            物件画像
            詳細☆お気に入り★お気に入り
            内山ビル2階
              新潟県上越市本町5丁目3-26内山ビル2階
              (事務所)
              132.24㎡
              (40坪)
              -
              2階
              51年
              8.8万円
              なし
              あり
              2ヶ月
              なし
              なし
              写真たくさんあり!!
              物件画像
              物件画像
              物件画像
              物件画像
              詳細☆お気に入り★お気に入り
              諸橋ビル 3階事務所
              C号室
                新潟県長岡市坂之上町2丁目3番地他
                (事務所)
                50.5㎡
                (15.27坪)
                -
                3階
                43年
                8.8万円
                5,500円/月
                なし
                2ヶ月
                なし
                なし
                写真たくさんあり!!
                物件画像
                物件画像
                物件画像
                物件画像
                詳細☆お気に入り★お気に入り
                早川ビル 2F
                  新潟県長岡市喜多町304-2
                  (事務所)
                  60.98㎡
                  (18.44坪)
                  -
                  2階
                  46年
                  8.8万円
                  なし
                  なし
                  3ヶ月
                  なし
                  1ヶ月
                  県道沿いにある事務所の1階部分です。駐車場2台賃料に込。
                  物件画像
                  物件画像
                  物件画像
                  物件画像
                  詳細☆お気に入り★お気に入り
                  春日新田2丁目 貸事務所
                    新潟県上越市春日新田2丁目11番11号
                    (事務所)
                    121.3㎡
                    (36.69坪)
                    -
                    1階
                    45年
                    8.8万円
                    なし
                    なし
                    2ヶ月
                    なし
                    0.5ヶ月
                    写真たくさんあり!!
                    約24坪の事務所です。
                    物件画像
                    物件画像
                    物件画像
                    物件画像
                    詳細☆お気に入り★お気に入り
                    東蔵王2丁目 『吉沢ビル 左棟 2階』
                      新潟県長岡市東蔵王2-6-20
                      (事務所)
                      79.2㎡
                      (23.95坪)
                      -
                      2階
                      34年
                      8.9万円
                      なし
                      なし
                      2ヶ月
                      なし
                      なし
                      写真たくさんあり!!
                      長岡駅より徒歩5分、事務所に最適。エアコン、敷地内駐車場1台付。
                      物件画像
                      物件画像
                      物件画像
                      物件画像
                      詳細☆お気に入り★お気に入り
                      レーベン長岡
                      202号室
                        新潟県長岡市城内町3丁目5-1
                        (事務所)
                        63.96㎡
                        (19.34坪)
                        -
                        2階
                        41年
                        9万円
                        なし
                        なし
                        2ヶ月
                        なし
                        なし
                        写真たくさんあり!!
                        幹線道路沿い交通アクセス良好!
                        物件画像
                        物件画像
                        物件画像
                        物件画像
                        詳細☆お気に入り★お気に入り
                        妙高市柳井田4丁目 貸事務所 2階
                        2号室
                          新潟県妙高市柳井田町4丁目11番16号
                          (事務所)
                          86.74㎡
                          (26.23坪)
                          -
                          2階
                          不詳
                          9.438万円
                          なし
                          なし
                          25.74万円
                          なし
                          なし
                          写真たくさんあり!!
                          事務所利用や、店舗としても利用できます。
                          物件画像
                          物件画像
                          物件画像
                          物件画像
                          詳細☆お気に入り★お気に入り
                          スノウッド鴨島貸店舗・事務所
                            上越市鴨島1丁目3番48号
                            (事務所)
                            49.5㎡
                            (14.97坪)
                            -
                            1階
                            27年
                            9.5万円
                            なし
                            あり
                            3ヶ月
                            なし
                            なし
                            写真たくさんあり!!
                            主要道路沿い 2階貸事務所
                            物件画像
                            物件画像
                            物件画像
                            物件画像
                            詳細☆お気に入り★お気に入り
                            小千谷市城内4丁目ビル2階 貸事務所
                            A号室
                              新潟県小千谷市城内4丁目11番23号A室
                              (事務所)
                              65.52㎡
                              (19.81坪)
                              -
                              2階
                              25年
                              9.9万円
                              なし
                              なし
                              2ヶ月
                              なし
                              1ヶ月
                              写真たくさんあり!!
                              物件画像
                              物件画像
                              物件画像
                              物件画像
                              詳細☆お気に入り★お気に入り
                              棚橋不動産 関東町ビル(旧斉木ビル)
                              201号室
                                新潟県長岡市関東町3番地9
                                (事務所)
                                78.42㎡
                                (23.72坪)
                                -
                                2階
                                51年
                                9.9万円
                                なし
                                なし
                                2ヶ月
                                なし
                                1ヶ月
                                物件画像
                                物件画像
                                物件画像
                                物件画像
                                詳細☆お気に入り★お気に入り
                                森ビル1F
                                  新潟県長岡市台町1丁目7-41森ビル1F
                                  (事務所)
                                  55㎡
                                  (16.63坪)
                                  -
                                  1階
                                  不詳
                                  10万円
                                  なし
                                  なし
                                  2ヶ月
                                  なし
                                  なし
                                  写真たくさんあり!!
                                  駐車場1台無料
                                  物件画像
                                  物件画像
                                  物件画像
                                  物件画像
                                  詳細☆お気に入り★お気に入り
                                  坂之上町事務所
                                    新潟県長岡市坂之上町3丁目4番2号
                                    (事務所)
                                    57.5㎡
                                    (17.39坪)
                                    -
                                    2階
                                    27年
                                    10万円
                                    なし
                                    なし
                                    3ヶ月
                                    なし
                                    なし
                                    写真たくさんあり!!
                                    物件画像
                                    物件画像
                                    物件画像
                                    物件画像
                                    詳細☆お気に入り★お気に入り
                                    東蔵王2丁目 『吉沢ビル 右棟2階』 
                                      長岡市東蔵王2-6-26
                                      (事務所)
                                      97.35㎡
                                      (29.44坪)
                                      -
                                      2階
                                      39年
                                      10万円
                                      なし
                                      なし
                                      3ヶ月
                                      なし
                                      なし
                                      写真たくさんあり!!
                                      物件画像
                                      物件画像
                                      物件画像
                                      物件画像
                                      詳細☆お気に入り★お気に入り
                                      五十嵐ビル 2階
                                        新潟県長岡市幸町3丁目5-7
                                        (事務所)
                                        66.11㎡
                                        (19.99坪)
                                        -
                                        2階
                                        48年
                                        10万円
                                        なし
                                        なし
                                        3ヶ月
                                        なし
                                        なし
                                        写真たくさんあり!!
                                        店舗・事務所
                                        物件画像
                                        物件画像
                                        物件画像
                                        物件画像
                                        詳細☆お気に入り★お気に入り
                                        田中中央ビル2階
                                        203号室
                                          新潟県柏崎市中央町1-14
                                          (事務所)
                                          36㎡
                                          (10.89坪)
                                          -
                                          2階
                                          46年
                                          10万円
                                          なし
                                          あり
                                          1ヶ月
                                          なし
                                          なし
                                          写真たくさんあり!!
                                          表示切替: 一覧表示 地図表示    並び替え:
                                          0件がマッチ
                                          基本条件
                                          物件種別 事務所
                                          賃料


                                          間取り
                                          所在階
                                          面積
                                          築年数
                                          方位
                                          おすすめ条件
                                          情報公開日
                                          0件がマッチ
                                          人気のあるこだわり条件