新潟県上越市大豆1丁目8-43 事務所 66万円の物件情報

山麓線沿いのアクセス良好、見通しの良いオフィス

物件名
所在地
面積
間取り
所在階
築年数
方位
賃料
管理費等
共益費
敷金
保証金
礼金
種別
構造
春日山管財ビル 1F部分
新潟県上越市大豆1丁目8-43
404.52㎡
(122.36坪)
-
1階
29年
-
66万円
55,000円/月
なし
360万円
なし
なし
事務所
鉄骨
  • 春日山管財ビル 1F部分
    有限会社 管財
  • この物件を問い合わせる/無料
  • TEL: 025-543-9402 025-543-9402

物件画像

外観
間取り
物件画像
※画像クリックで拡大表示
外観
物件画像
※画像クリックで拡大表示
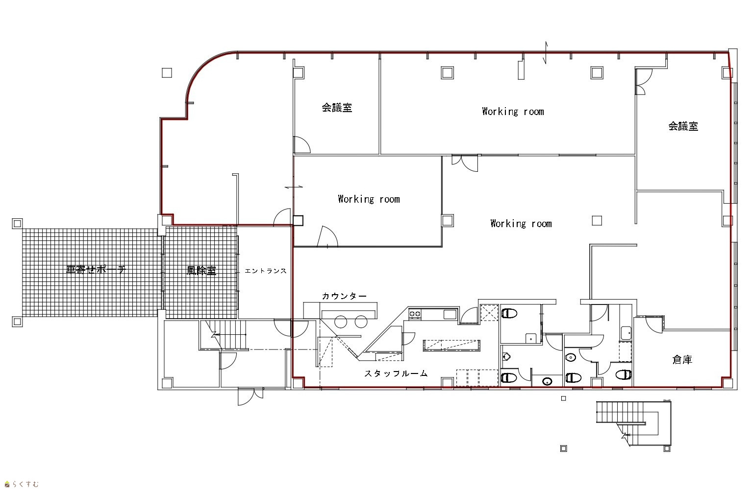
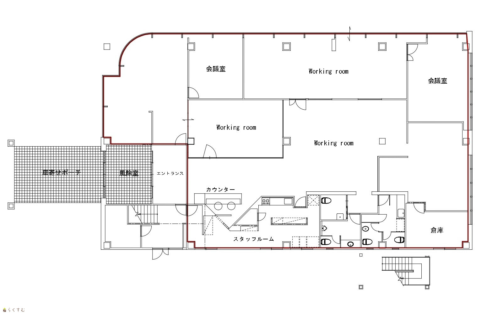
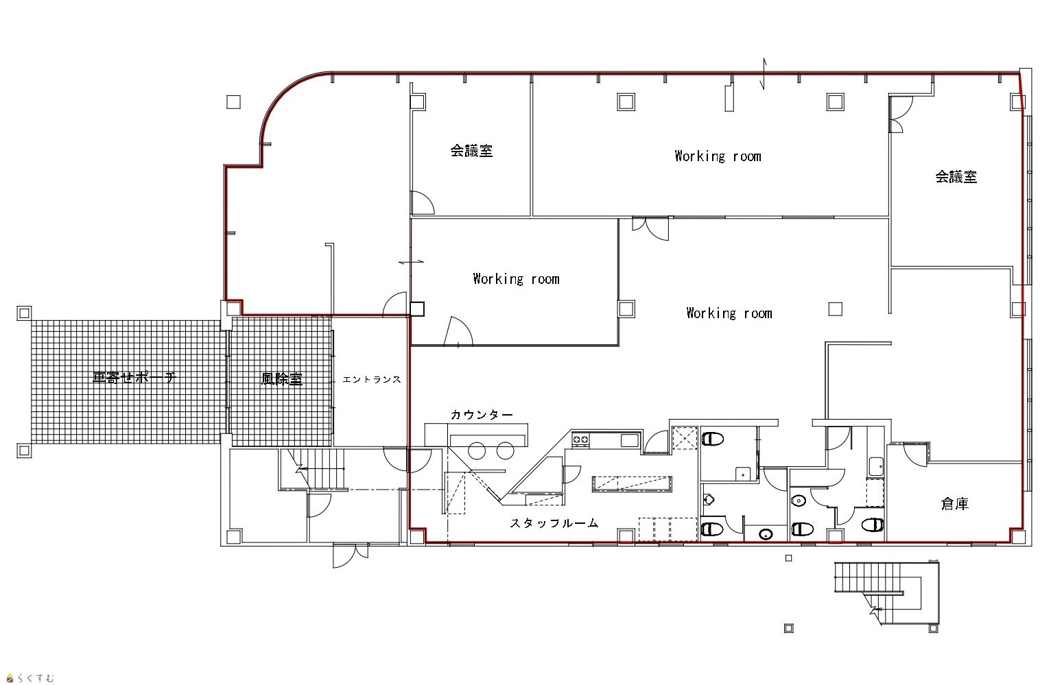
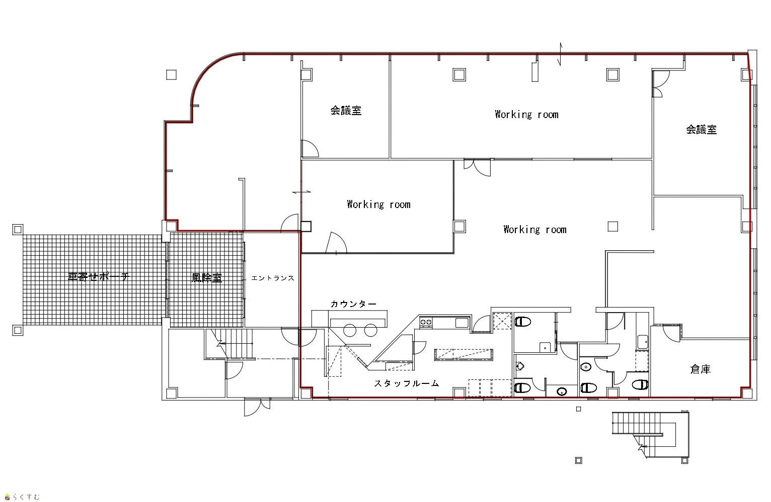
1F間取り(赤枠が専有面積)
詳細画像
物件画像
外観
物件画像
車寄せポーチ
物件画像
エントランス
物件画像
店内
物件画像
店内2
物件画像
店内3
物件画像
店内4
物件画像
店内5
物件画像
店内6
物件画像
店内7
物件画像
店内8
物件画像
店内9
物件画像
店内10
物件画像
スタッフルーム
物件画像
トイレ入口
物件画像
女子トイレ
物件画像
男子トイレ
物件画像
トイレ3
物件画像
外観2
物件画像
地図画像


物件概要

物件コード 00368-100001
物件名 春日山管財ビル 1F部分
交通 駅:妙高はねうまライン 春日山駅から徒歩16分、バス:春日野一丁目から徒歩2分
所在地 新潟県上越市大豆1丁目8-43
物件種別 事務所
総戸数 1戸
構造 鉄骨 階建 地上2階建
所在階/階数 1階/2階 号室 -
面積 404.52㎡ /122.36坪 方位 -
間取り -
賃料 66万円/月
(税込み金額)
管理費 55,000円/月
共益費含む
礼金 - 敷金 360万円
家賃の6ヶ月分
ほか初期費用 - その他諸費用 -
更新料 - 火災(家財)保険 -
共益費 - 町内費 -
駐車場 専有20台 バイク料金 -
鍵交換費 - 清掃料 -
更新事務手数料 -
保証区分 保証会社+緊急連絡先
保証会社 区分:加入要
保証会社名:その他 (相談の上決定します)
-
連帯保証人 区分:不要
-
仲介手数料 -
築年月 1997年5月(築29年)
利用制限 ペット:相談
学校区 春日小学校(534m)・春日中学校(584m)
設備 1階、オートロック、24時間セキュリティー、エアコン、男女トイレ別、即引き渡し可、駐車場あり
入居時期 相談
取引態様 貸主
備考 ※専有部分は、1F間取り図より赤枠で囲われたエリアとなります。車寄せポーチから風除室、エントランスまでのエリアは共有スペースとなります。
※エアコンは2024年に入れ替え済みです。
※保証区分についての指定は無く、相談の上内容を決定します。
手数料負担割合/配分割合 貸主:-%   借主:-% / 元付:-%   客付:-%  
取り扱い会社

有限会社 管財

新潟県上越市五智1-2-19

情報登録日 2025/06/27 次回更新予定日 2026/05/21
  • 春日山管財ビル 1F部分
    有限会社 管財
  • この物件を問い合わせる/無料
  • TEL: 025-543-9402 025-543-9402

この物件の地図・周辺情報・行政情報

この物件の周辺情報・行政情報を詳しく見る
【周辺情報】
物件の近くにあるコンビニや銀行・学校など、アイコン付のマップで詳しく表示できます!
【行政情報】
水道料や下水道料・ガス料金など、暮らしに関係のある情報を表示しています。

担当取扱い店舗情報

取扱い店舗画像
有限会社 管財
TEL: 025-543-9402
所在地: 新潟県上越市五智1-2-19
交通: 妙高はねうまライン「直江津駅」より徒歩10分
営業時間: 平日9:00~17:00/定休日:
免許番号: 新潟県知事(1)第5746号
所属団体名: 公社 新潟県宅地建物取引協会 上越支部
取引態様: 貸主