新潟県三条市東裏館2丁目16-15 事務所 16.5万円の物件情報

物件名
所在地
面積
間取り
所在階
築年数
方位
賃料
管理費等
共益費
敷金
保証金
礼金
種別
構造
EBPスクエア
202号室
新潟県三条市東裏館2丁目16-15
80.22㎡
(24.26坪)
-
-
1年
-
16.5万円
なし
なし
30万円
なし
15万円
事務所
鉄筋コン
  • EBPスクエア
    エイブルネットワーク長岡店(株式会社Will企画)
  • この物件を問い合わせる/無料
  • TEL: 0258-33-2890 0258-33-2890

物件画像

外観
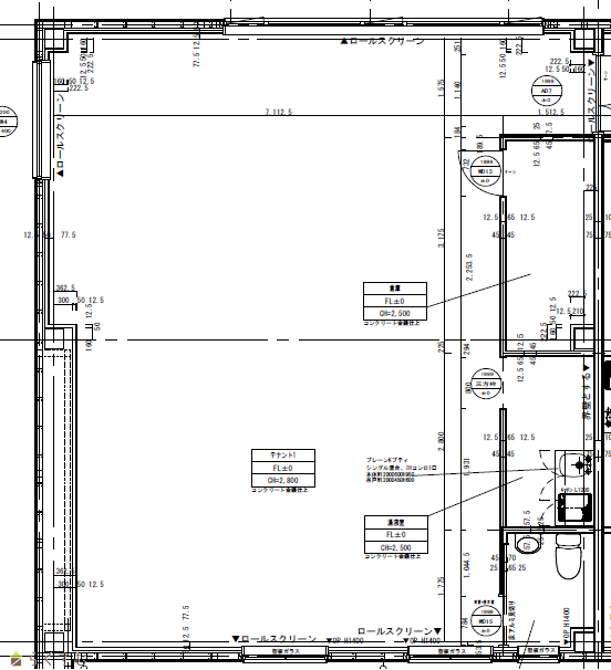
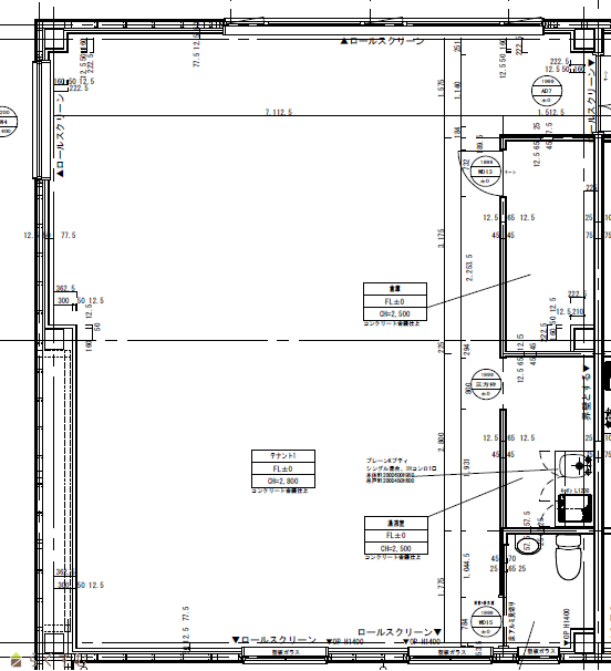
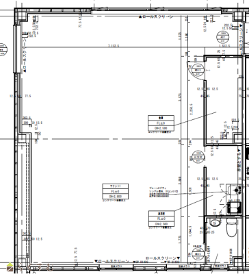
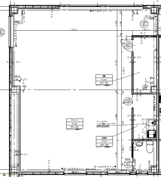
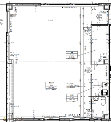
間取り
物件画像
※画像クリックで拡大表示
外観
物件画像
※画像クリックで拡大表示
間取り図
詳細画像
物件画像
事務所部分
物件画像
事務所部分
物件画像
事務所部分
物件画像
給湯室
物件画像
IHクッキングヒーター
物件画像
空調設備
物件画像
セキュリティ
物件画像
トイレ
物件画像
共有で入り口
物件画像
共有部分
物件画像
収納スペース
物件画像
セキュリティシステム
物件画像
地図画像
360度画像
内観
※下のリンクをクリックすると、上の画像が切り替わります。

インターネットエクスプローラーでは360°画像は閲覧できません。それ以外のブラウザでご覧下さい。

360度画像を詳しく見る


物件概要

物件コード 00325-100009
物件名 EBPスクエア
交通 駅:弥彦線 北三条駅から徒歩12分
所在地 新潟県三条市東裏館2丁目16-15
物件種別 事務所
総戸数 1戸
構造 鉄筋コン 階建 地上2階建
所在階/階数 - 号室 202号室
面積 80.22㎡ /24.26坪 方位 -
間取り -
賃料 16.5万円/月
管理費 -
礼金 15万円
敷金 30万円
ほか初期費用 - その他諸費用 -
更新料 75,000円
5年毎に契約更新有
火災(家財)保険 要加入
共益費 - 町内費 -
駐車場 2台込み 3台目確保可能 バイク料金 -
鍵交換費 - 清掃料 -
更新事務手数料 -
保証区分 保証会社のみ
保証会社 区分:加入要
保証会社名:日本セーフティ
初回保証料100% 月額保証料1%
家賃保証金 165,000円
連帯保証人 区分:不要
-
仲介手数料 165,000円
築年月 2024年8月(築1年)
利用制限 法人:可、学生:不可、単身者:不可、ペット:不可、楽器:不可、事務所利用:可、ルームシェア:不可
学校区 裏館小学校(836m)・第一中学校(1,444m)
設備 最上階、2階以上、融雪設備あり、オートロック、光ファイバー、エアコン、給湯
入居時期 即入居可
取引態様 代理
備考 ・3台目以降敷地内駐車場1台5,500円/月:近隣駐車場1台4,400円/月
・三条市役所、法務局近く
・行政書士、司法書士、税理士、弁護士などの事務所歓迎
・インターネット接続設備あり(接続工事及び開通は入居者手配)
・各室トイレあり
・飲食店不可
手数料負担割合/配分割合 貸主:0%   借主:100% / 元付:50%   客付:50%  
取り扱い会社

エイブルネットワーク長岡店(株式会社Will企画)

新潟県長岡市三和3丁目6-6

情報登録日 2025/04/20 次回更新予定日 2026/05/21
  • EBPスクエア
    エイブルネットワーク長岡店(株式会社Will企画)
  • この物件を問い合わせる/無料
  • TEL: 0258-33-2890 0258-33-2890

この物件の地図・周辺情報・行政情報

この物件の周辺情報・行政情報を詳しく見る
【周辺情報】
物件の近くにあるコンビニや銀行・学校など、アイコン付のマップで詳しく表示できます!
【行政情報】
水道料や下水道料・ガス料金など、暮らしに関係のある情報を表示しています。
ローソン 三条旭町二丁目店(コンビニ)まで270m
セブン-イレブン 三条北三条駅入口店(コンビニ)まで640m
イオン 三条店(スーパー)まで600m
スーパーマルセン 荒町店(スーパー)まで830m
第四北越銀行 三条中央支店(銀行)までm
三条郵便局(郵便局)までm

※カメラのアイコンがある場合は、マウスをポイントするとその施設の画像がご覧いただけます。


担当取扱い店舗情報

取扱い店舗画像
エイブルネットワーク長岡店(株式会社Will企画)
TEL: 0258-33-2890
所在地: 新潟県長岡市三和3丁目6-6
交通:
営業時間: 10:00~18:00/定休日:水曜日
免許番号: 新潟県知事(5)第4652号
所属団体名: 公社 新潟県宅地建物取引協会 長岡支部
取引態様: 代理
ホームページ: http://shop.able.co.jp/C03000281/