新潟県妙高市柳井田町4丁目11番16号 事務所 9.438万円の物件情報

幹線道路沿い交通アクセス良好!

物件名
所在地
面積
間取り
所在階
築年数
方位
賃料
管理費等
共益費
敷金
保証金
礼金
種別
構造
妙高市柳井田4丁目 貸事務所 2階
2号室
新潟県妙高市柳井田町4丁目11番16号
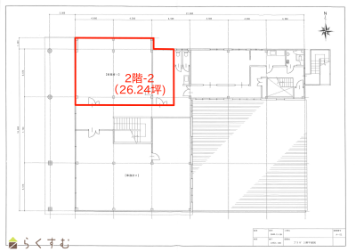
86.74㎡
(26.23坪)
-
2階
不詳
-
9.438万円
なし
なし
25.74万円
なし
なし
事務所
鉄骨
  • 妙高市柳井田4丁目 貸事務所 2階
    上越宅地販売株式会社
  • この物件を問い合わせる/無料
  • TEL: 025-522-3838 025-522-3838

物件画像

外観
間取り
物件画像
※画像クリックで拡大表示
外観
物件画像
※画像クリックで拡大表示
図面
詳細画像
物件画像
事務室
物件画像
事務室
物件画像
事務室
物件画像
事務室
物件画像
駐車場
物件画像
手洗い場
物件画像
トイレ
物件画像
建物入口
物件画像
地図画像


物件概要

物件コード 00308-100626
物件名 妙高市柳井田4丁目 貸事務所 2階
交通 駅:妙高はねうまライン 北新井駅から徒歩11分、バス:柳井田から徒歩2分
所在地 新潟県妙高市柳井田町4丁目11番16号
物件種別 事務所
総戸数 -
構造 鉄骨 階建 地上2階建
所在階/階数 2階/2階 号室 2号室
面積 86.74㎡ /26.23坪 方位 -
間取り -
賃料 9.438万円/月
管理費 -
礼金 -
敷金 25.74万円
ほか初期費用 - その他諸費用 -
更新料 - 火災(家財)保険 要加入
共益費 - 町内費 実費
駐車場 敷地内 要確認 バイク料金 -
鍵交換費 - 清掃料 -
更新事務手数料 -
保証区分 保証会社+緊急連絡先
保証会社 区分:加入要
保証会社名:その他 (CIZ)
月額総賃料の77%(契約時) 事務手数料2,200円
家賃保証金 74,873円
連帯保証人 区分:不要
-
仲介手数料 94,380円
築年月 不詳
利用制限 -
学校区 新井北小学校(922m)・新井中学校(4,659m)
設備 2階以上、エアコン、男女トイレ別、即引き渡し可、駐車場あり
入居時期 相談
取引態様 仲介
備考 -
手数料負担割合/配分割合 貸主:-%   借主:100% / 元付:50%   客付:50%  
取り扱い会社

上越宅地販売株式会社

新潟県上越市南高田町1-2アサノビル1階

情報登録日 2025/11/08 次回更新予定日 2025/12/30
  • 妙高市柳井田4丁目 貸事務所 2階
    上越宅地販売株式会社
  • この物件を問い合わせる/無料
  • TEL: 025-522-3838 025-522-3838

この物件の地図・周辺情報・行政情報

この物件の周辺情報・行政情報を詳しく見る
【周辺情報】
物件の近くにあるコンビニや銀行・学校など、アイコン付のマップで詳しく表示できます!
【行政情報】
水道料や下水道料・ガス料金など、暮らしに関係のある情報を表示しています。
セブン-イレブン 妙高栗原店(コンビニ)まで180m
業務スーパー 新井店(スーパー)まで160m
新井信用金庫 北支店(銀行)まで570m
新井北郵便局(郵便局)まで820m

※カメラのアイコンがある場合は、マウスをポイントするとその施設の画像がご覧いただけます。


担当取扱い店舗情報

取扱い店舗画像
上越宅地販売株式会社
TEL: 025-522-3838
所在地: 新潟県上越市南高田町1-2アサノビル1階
交通: 妙高はねうまライン 南高田駅 徒歩1分
営業時間: 9:00~18:30/定休日:毎週水曜日・GW・夏季・臨時休業(9/21日曜日)・年末年始
免許番号: 新潟県知事(9)第3372号
所属団体名: 公社 新潟県宅地建物取引協会 上越支部
取引態様: 仲介
ホームページ: http://takuhan.com/