新潟県柏崎市若葉町2-50 一戸建て 2LDK 12万円の物件情報

★★新築の平屋一戸建て★★

物件名
所在地
面積
間取り
所在階
築年数
方位
賃料
管理費等
共益費
敷金
保証金
礼金
種別
構造
若葉町貸家
1号室
新潟県柏崎市若葉町2-50
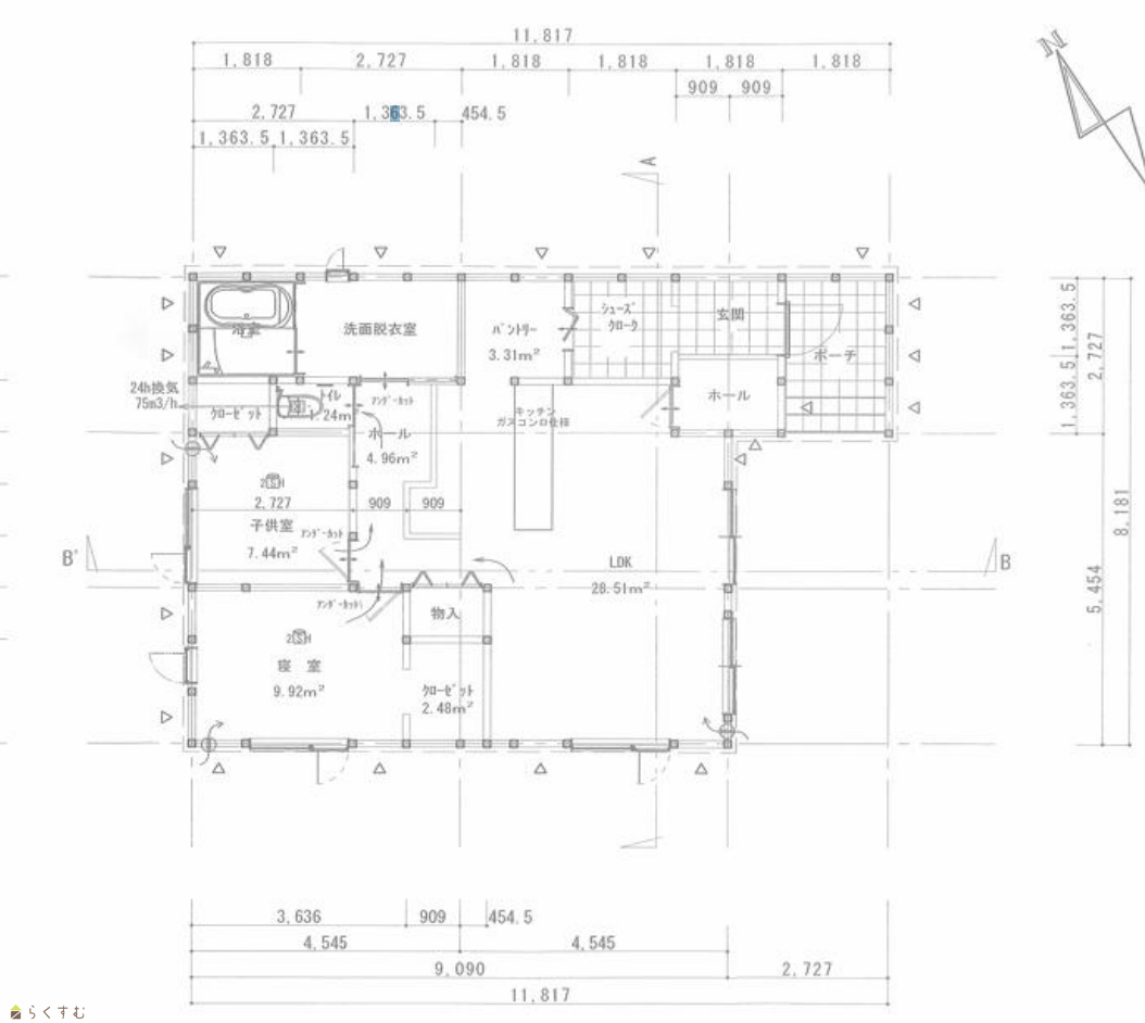
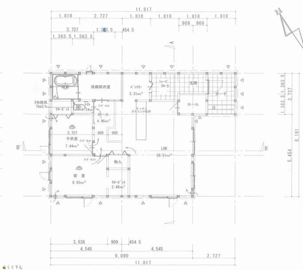
76.84㎡
(23.24坪)
2LDK
1階
4ヶ月
-
12万円
なし
なし
1ヶ月
なし
1ヶ月
アパート・マンション・一戸建て
木造
  • 若葉町貸家
    有限会社ひまわりネットワーク
  • この物件を問い合わせる/無料
  • TEL: 0257-22-0851 0257-22-0851

物件画像

外観
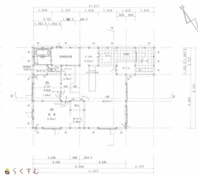
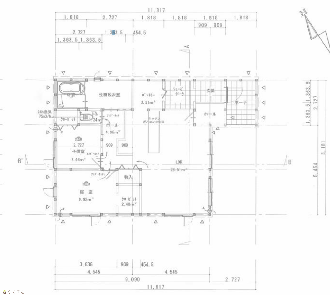
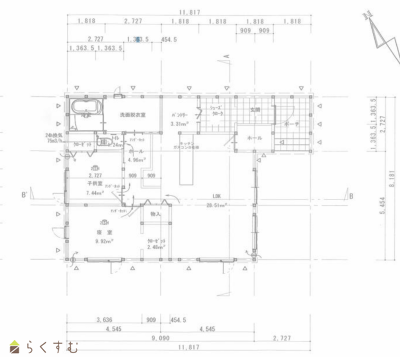
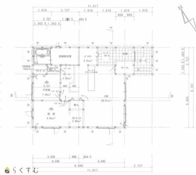
間取り
物件画像
※画像クリックで拡大表示
外観
物件画像
※画像クリックで拡大表示
間取り
詳細画像
物件画像
玄関
物件画像
玄関
物件画像
キッチン
物件画像
キッチン
物件画像
キッチン
物件画像
洋室
物件画像
洋室
物件画像
洋室
物件画像
洋室
物件画像
収納
物件画像
バスルーム
物件画像
洗面所
物件画像
トイレ
物件画像
収納
物件画像
収納
物件画像
玄関
物件画像
設備


物件概要

物件コード 00292-100168
物件名 若葉町貸家
交通 駅:信越線 柏崎駅から徒歩17分、バス:常盤台から徒歩4分
所在地 新潟県柏崎市若葉町2-50
物件種別 アパート・マンション・一戸建て
総戸数 1戸
構造 木造 階建 地上1階建
所在階/階数 1階/1階 号室 1号室
面積 76.84㎡ /23.24坪 方位 -
間取り 2LDK (洋室:6、8)
LDK18
賃料 12万円/月
管理費 -
礼金 1ヶ月
敷金 1ヶ月
ほか初期費用 - その他諸費用 除雪費1シーズン8,000円
更新料 - 火災(家財)保険 22,000円
2年
共益費 - 町内費 1,000円
駐車場
バイク料金 -
鍵交換費 - 清掃料 -
更新事務手数料 -
保証区分 保証会社のみ
保証会社 区分:加入要
保証会社名:CIZ
-
家賃保証金 94,270円
連帯保証人 区分:不要
-
仲介手数料 132,000円
築年月 2025年8月(築4ヶ月)
利用制限 ペット:不可
学校区 大洲小学校(407m)・第三中学校(1,163m)
設備 閑静な住宅街、最上階、上階なし、宅配BOX、LDK12畳以上、築5年以内、築10年以内、駐車2台可、カーポートあり、駐車場2台無料、対面キッチン、IHクッキングヒーター、バストイレ別、浴室1坪以上、追いだき機能付き、温水洗浄便座、暖房便座、洗面所独立、エアコン、エアコン2基、都市ガス、全居室フローリング、雨戸、洗濯機置場 室内、脱衣所、フローリングあり、各居室照明、即入居可、未入居、保証会社要加入
入居時期 即入居可
取引態様 仲介
備考 -
手数料負担割合/配分割合 貸主:0%   借主:100% / 元付:50%   客付:50%  
取り扱い会社

有限会社ひまわりネットワーク

新潟県柏崎市宮場町9番23号

情報登録日 2025/10/29 次回更新予定日 2026/01/05
  • 若葉町貸家
    有限会社ひまわりネットワーク
  • この物件を問い合わせる/無料
  • TEL: 0257-22-0851 0257-22-0851

この物件の地図・周辺情報・行政情報

この物件の周辺情報・行政情報を詳しく見る
【周辺情報】
物件の近くにあるコンビニや銀行・学校など、アイコン付のマップで詳しく表示できます!
【行政情報】
水道料や下水道料・ガス料金など、暮らしに関係のある情報を表示しています。

担当取扱い店舗情報

取扱い店舗画像
有限会社ひまわりネットワーク
TEL: 0257-22-0851
所在地: 新潟県柏崎市宮場町9番23号
交通: 柏﨑駅南口から約950m(約12分)
営業時間: 平日9:00~17:00(土12:00まで)/定休日:日曜・祝日
免許番号: 新潟県知事(6)第4167号
所属団体名: (公社)新潟県宅地建物取引業協会 (一社)全国賃貸不動産管理業協会(全宅管理)
取引態様: 仲介
ホームページ: https://www.himawari-network.co.jp/