新潟県上越市本町6-1-23 事務所 7.7万円の物件情報

高田駅から徒歩5分の立地

物件名
所在地
面積
間取り
所在階
築年数
方位
賃料
管理費等
共益費
敷金
保証金
礼金
種別
構造
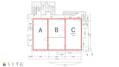
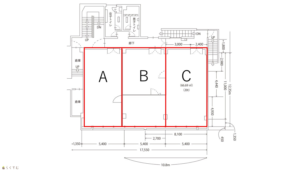
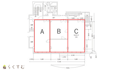
高田館ビル(分割貸し)
新潟県上越市本町6-1-23
66.69㎡
(20.17坪)
-
2階
不詳
-
7.7万円
なし
なし
2ヶ月
なし
なし
事務所
鉄筋コン
  • 高田館ビル(分割貸し)
    ピタットハウス上越店 日建不動産
  • この物件を問い合わせる/無料
  • TEL: 025-544-6015 025-544-6015

物件画像

外観
間取り
物件画像
※画像クリックで拡大表示
外観
物件画像
※画像クリックで拡大表示
間取り
詳細画像
物件画像
B区画
物件画像
B区画
物件画像
C区画
物件画像
A区画
物件画像
エントランス
物件画像
その他
物件画像
トイレ
物件画像
トイレ
物件画像
駐車場
物件画像
印刷用地図


物件概要

3区画あり。フリーレント相談可能です。 共用トイレ・ミニキッチンはリフォーム済み。 ワンフロア一括での貸出しも可能。まずはお問合せください。
物件コード 00263-100131
物件名 高田館ビル(分割貸し)
交通 駅:高田から徒歩5分
所在地 新潟県上越市本町6-1-23
物件種別 事務所
総戸数 -
構造 鉄筋コン 階建 地上4階建
所在階/階数 2階/4階 号室 -
面積 66.69㎡ /20.17坪 方位 -
間取り -
賃料 7.7万円/月
管理費 -
礼金 - 敷金 2ヶ月
ほか初期費用 - その他諸費用 -
更新料 - 火災(家財)保険 借家人賠償責任保障付きテナント保険:加入要
共益費 - 町内費 直接支払い
駐車場 3台可能。追加分ご相談ください。消雪設備あり バイク料金 -
鍵交換費 - 清掃料 -
更新事務手数料 22,000円
保証区分 連帯保証人+保証会社
保証会社 区分:加入要
保証会社名:日本セーフティ
初回保証料:賃料等合計の100%、継続保証料:1年毎に賃料等合計の10%。※最低保証料あり
連帯保証人 区分:要
-
仲介手数料 77,000円
築年月 不詳
利用制限 法人:可、事務所利用:可
学校区 大町小学校(403m)
設備 2階以上、融雪設備あり、男女トイレ別、即引き渡し可、駐車場あり
入居時期 即入居可
取引態様 仲介
備考 1階は株式会社新潟ビルサービス 上越営業所
◆店舗・事務所はテナントショップ上越でお探しください!◆
手数料負担割合/配分割合 貸主:-%   借主:100% / 元付:50%   客付:50%  
取り扱い会社

ピタットハウス上越店 日建不動産

新潟県上越市春日新田1-20-8

情報登録日 2025/10/17 次回更新予定日 2026/05/21
  • 高田館ビル(分割貸し)
    ピタットハウス上越店 日建不動産
  • この物件を問い合わせる/無料
  • TEL: 025-544-6015 025-544-6015

この物件の地図・周辺情報・行政情報

この物件の周辺情報・行政情報を詳しく見る
【周辺情報】
物件の近くにあるコンビニや銀行・学校など、アイコン付のマップで詳しく表示できます!
【行政情報】
水道料や下水道料・ガス料金など、暮らしに関係のある情報を表示しています。

担当取扱い店舗情報

取扱い店舗画像
ピタットハウス上越店 日建不動産
TEL: 025-544-6015
所在地: 新潟県上越市春日新田1-20-8
交通:
営業時間: 9:00~18:00/定休日:水・日・祝
免許番号: 新潟県知事(10)第3031号
所属団体名: 公社 新潟県宅地建物取引協会 上越支部
取引態様: 仲介
ホームページ: https://www.pitat-j.com/