新潟県長岡市福住2丁目4-44 事務所 16.5万円の物件情報

長岡駅から徒歩8分、日当たり良好の角地です。テナントや事務所にちょうど良い広さです。

物件名
所在地
面積
間取り
所在階
築年数
方位
賃料
管理費等
共益費
敷金
保証金
礼金
種別
構造
ADI福住ビル
新潟県長岡市福住2丁目4-44
150㎡
(45.37坪)
-
1.2階
54年
-
16.5万円
なし
あり
2ヶ月
なし
1ヶ月
事務所
鉄筋コン
  • ADI福住ビル
    株式会社 悠久不動産
  • この物件を問い合わせる/無料
  • TEL: 0258-94-6123 0258-94-6123

物件画像

外観
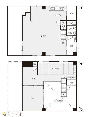
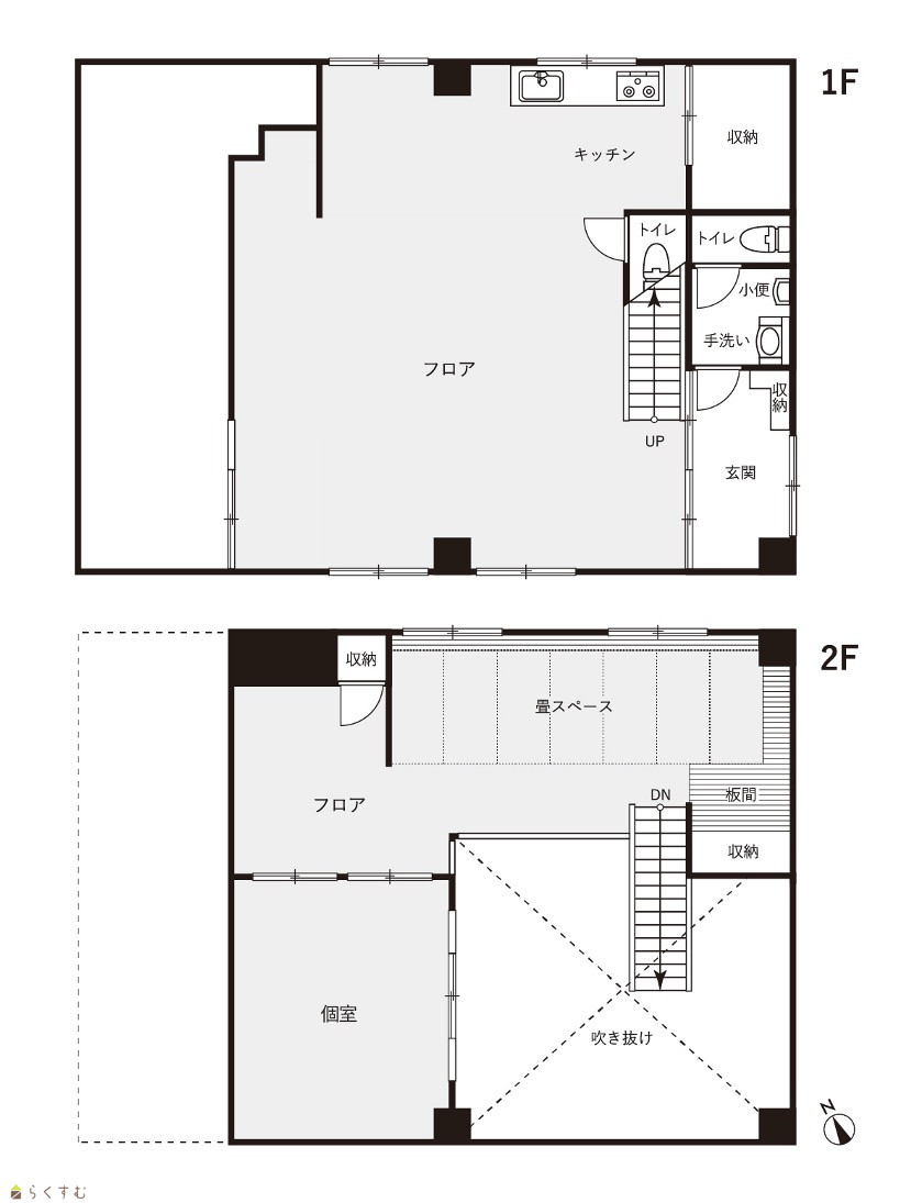
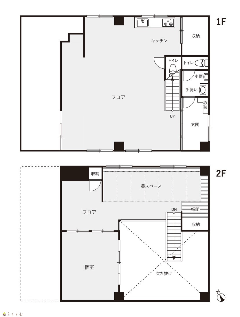
間取り
物件画像
※画像クリックで拡大表示
外観
物件画像
※画像クリックで拡大表示
間取り
詳細画像
物件画像
ワーキングスペース
物件画像
ワーキングスペース
物件画像
ワーキングスペース
物件画像
玄関
物件画像
トイレ
物件画像
トイレ
物件画像
ワーキングスペース


物件概要

長岡駅から徒歩8分、日当たり良好の角地です。テナントや事務所にちょうど良い広さです。
物件コード 00201-100122
物件名 ADI福住ビル
交通 駅:信越線 長岡駅から徒歩6分、バス:福住から徒歩3分
所在地 新潟県長岡市福住2丁目4-44
物件種別 事務所
総戸数 -
構造 鉄筋コン 階建 -
所在階/階数 1.2階 号室 -
面積 150㎡ /45.37坪 方位 -
間取り -
賃料 16.5万円/月
管理費 -
礼金 1ヶ月
敷金 2ヶ月
ほか初期費用 - その他諸費用 -
更新料 - 火災(家財)保険 18,500円
共益費 3,300円
町内費 -
駐車場
敷地内3台駐車可能です
バイク料金 -
鍵交換費 - 清掃料 -
更新事務手数料 -
保証区分 保証会社のみ
保証会社 区分:加入要
保証会社名:ジェイリース
各社各プランでご利用いただけます。
連帯保証人 区分:不要
-
仲介手数料 181,500円
築年月 1971年6月(築54年)
利用制限 法人:可、子供:不可、ペット:不可、楽器:不可、事務所利用:可
学校区 阪之上小学校(426m)・東北中学校(1,283m)
設備 1階、エアコン、男女トイレ別、即引き渡し可、駐車場あり
入居時期 即入居可
取引態様 仲介
備考 長岡駅から徒歩8分、日当たり良好の角地です。テナントや事務所にちょうど良い広さです。
手数料負担割合/配分割合 貸主:0%   借主:100% / 元付:50%   客付:50%  
取り扱い会社

株式会社 悠久不動産

新潟県長岡市西神田町1丁目6-23 チサンマンション西神田1階

情報登録日 2026/04/30 次回更新予定日 2026/05/21
  • ADI福住ビル
    株式会社 悠久不動産
  • この物件を問い合わせる/無料
  • TEL: 0258-94-6123 0258-94-6123

この物件の地図・周辺情報・行政情報

この物件の周辺情報・行政情報を詳しく見る
【周辺情報】
物件の近くにあるコンビニや銀行・学校など、アイコン付のマップで詳しく表示できます!
【行政情報】
水道料や下水道料・ガス料金など、暮らしに関係のある情報を表示しています。
セブン-イレブン 長岡福住店(コンビニ)まで180m
原信 今朝白店(スーパー)まで580m
ゆうちょ銀行 長岡店(銀行)まで770m
大光銀行 本店営業部・千手支店(銀行)まで760m
第四北越銀行 長岡東支店(銀行)まで740m
長岡呉服町郵便局(郵便局)まで610m

※カメラのアイコンがある場合は、マウスをポイントするとその施設の画像がご覧いただけます。


担当取扱い店舗情報

取扱い店舗画像
株式会社 悠久不動産
TEL: 0258-94-6123
所在地: 新潟県長岡市西神田町1丁目6-23 チサンマンション西神田1階
交通: 長岡駅
営業時間: 10:00~19:00/定休日:日曜:祝日
免許番号: 新潟県知事(2)第5322号
所属団体名: 公社新潟県宅地建物取引協会長岡支部
取引態様: 仲介
ホームページ: http://yu-kyu-fudosan.co.jp/