新潟県燕市吉田西太田785番地18 事務所 5万円の物件情報

南吉田駅、116号線、Next Generation Townにほど近い開発が進んでいるエリアに建つ事務所です。賃料は5万円(税込み)です。内覧も可能ですのでお気軽にご連絡ください。

物件名
所在地
面積
間取り
所在階
築年数
方位
賃料
管理費等
共益費
敷金
保証金
礼金
種別
構造
燕市吉田貸事務所
新潟県燕市吉田西太田785番地18
238.38㎡
(72.1坪)
-
-
29年
-
5万円
なし
なし
3ヶ月
なし
なし
事務所
鉄骨
  • 燕市吉田貸事務所
    株式会社 長陵エステート 長岡営業所
  • この物件を問い合わせる/無料
  • TEL: 0258-86-5133 0258-86-5133

物件画像

外観
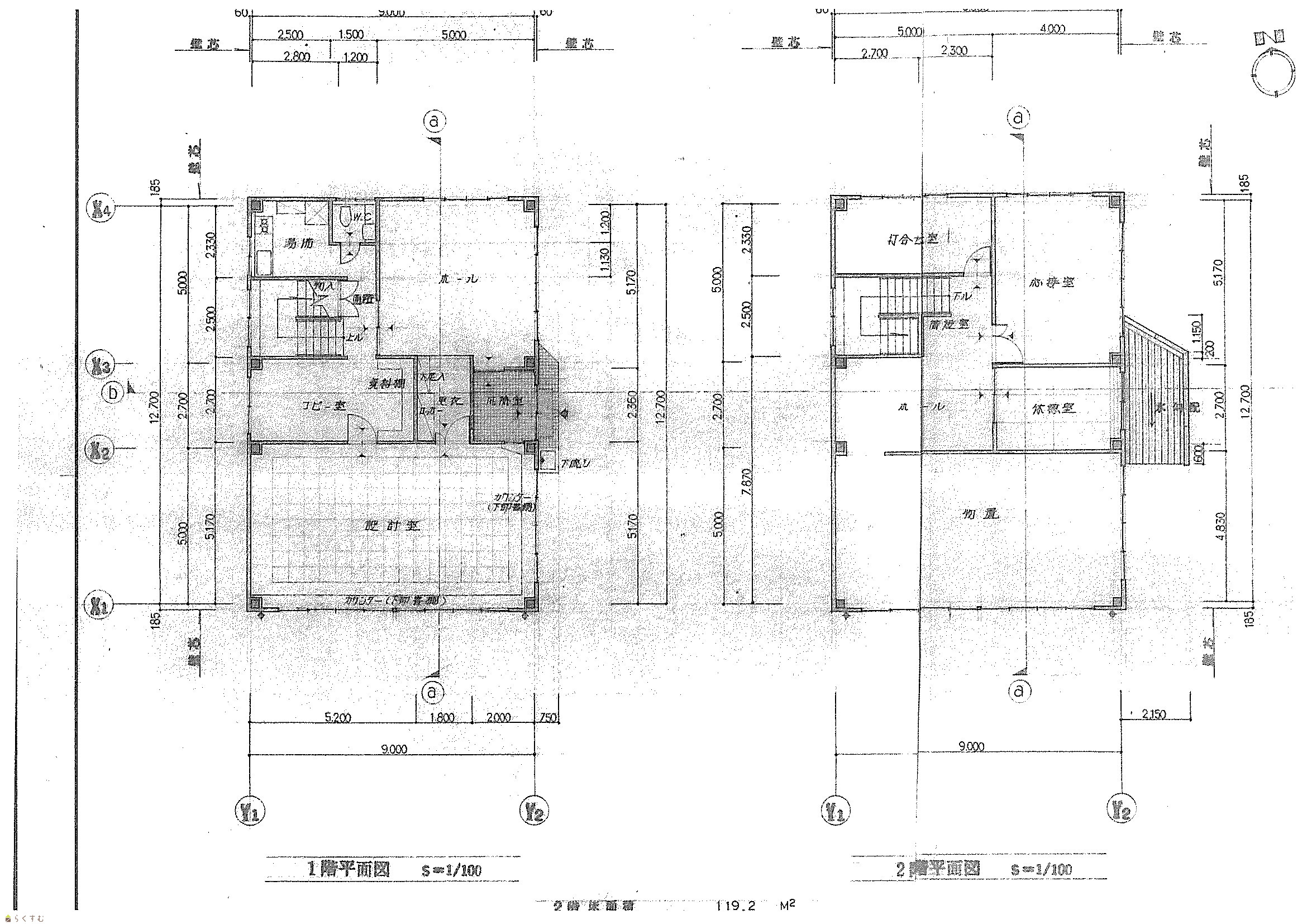
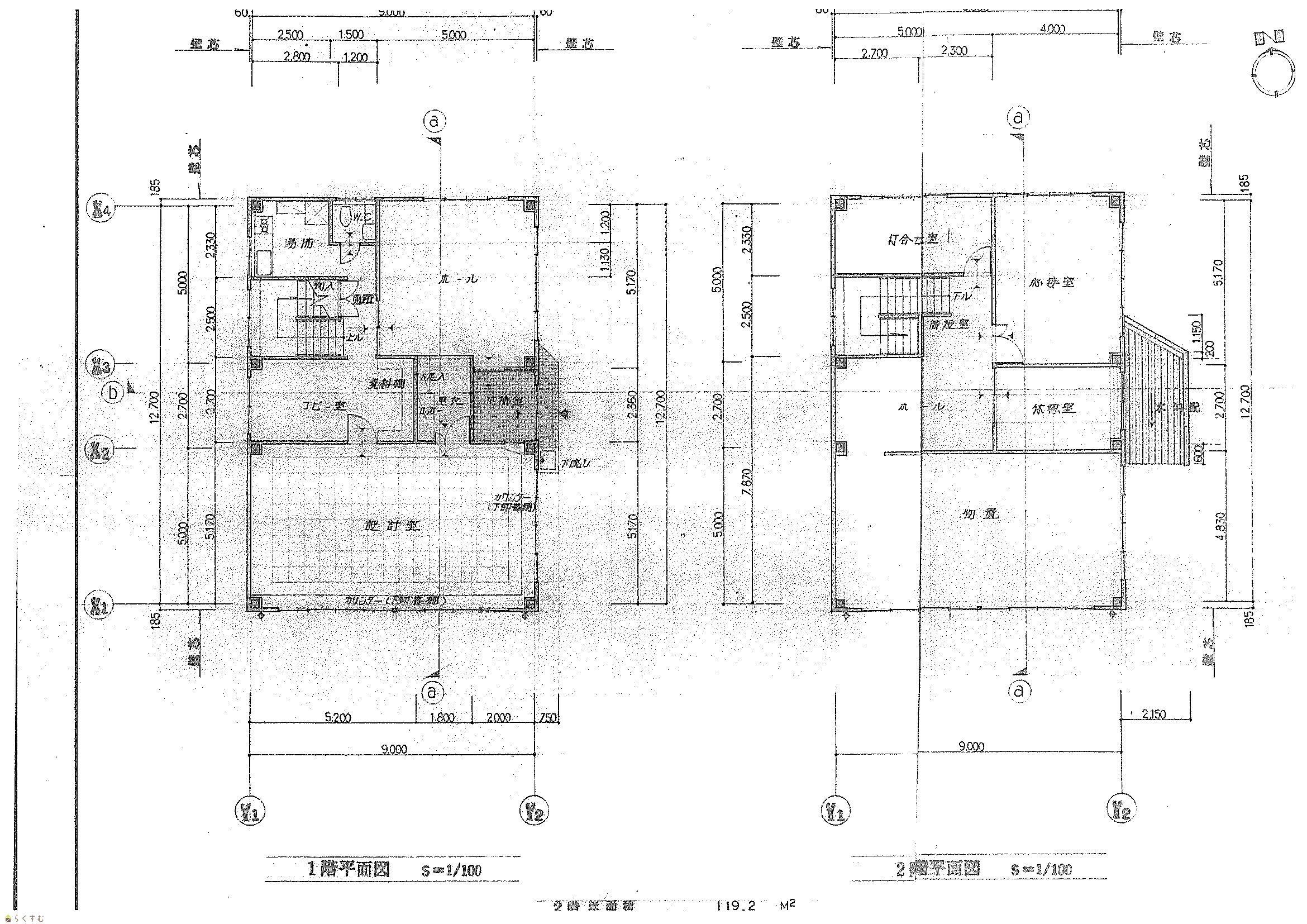
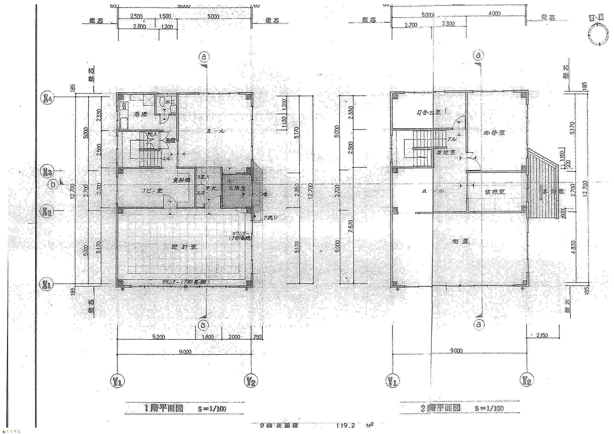
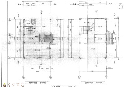
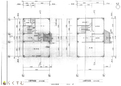
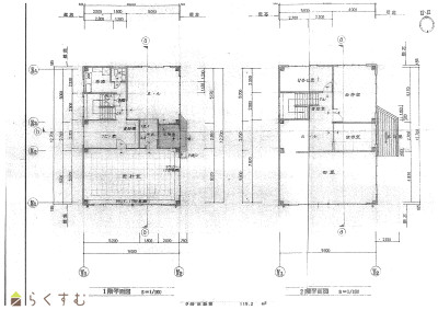
間取り
物件画像
※画像クリックで拡大表示
外観
物件画像
※画像クリックで拡大表示
間取り図
詳細画像
物件画像
1階事務所賃貸部分
物件画像
ワーキングスペース
物件画像
トイレ
物件画像
キッチン
物件画像
キッチン
物件画像
2階 部屋相談可
物件画像
2階和室相談可
物件画像
2階 部屋相談可
物件画像
2階からの眺め
物件画像
正面側入り口
物件画像
前面道路
物件画像
前面道路
物件画像
ワーキングスペース
物件画像
ワーキングスペース
物件画像
玄関


物件概要

残置物の利用、撤去は要相談となります。
物件コード 00196-100107
物件名 燕市吉田貸事務所
交通 駅:越後線 南吉田駅から徒歩7分、バス:南吉田駅から徒歩7分
所在地 新潟県燕市吉田西太田785番地18
物件種別 事務所
総戸数 -
構造 鉄骨 階建 地上2階建
所在階/階数 - 号室 -
面積 238.38㎡ /72.1坪 方位 -
間取り -
賃料 5万円/月
管理費 -
礼金 - 敷金 3ヶ月
ほか初期費用 - その他諸費用 -
更新料 - 火災(家財)保険 加入の事
共益費 - 町内費 別途町内会へ支払い
駐車場
賃料に込み
バイク料金 -
鍵交換費 - 清掃料 -
更新事務手数料 -
保証区分 保証会社のみ
保証会社 区分:加入要
保証会社名:ジェイリース
-
家賃保証金 50,000円
更新時に賃料の10%
連帯保証人 区分:不要
-
仲介手数料 50,000円
築年月 1996年12月(築29年)
利用制限 事務所利用:可
学校区 吉田南小学校(633m)・吉田中学校(3,106m)
設備 融雪設備あり、エアコン、居抜き、スケルトン、駐車場あり
入居時期 即入居可
取引態様 仲介
備考 賃貸部分は1階右側の部屋のみですが、その他の部分については相談可能です
左側の部屋は他のテナントが利用中です。トイレ給湯等の水回りは共有スペースとなります
手数料負担割合/配分割合 貸主:-%   借主:-% / 元付:-%   客付:-%  
取り扱い会社

株式会社 長陵エステート 長岡営業所

新潟県長岡市宮原2丁目13番23号長陵社ビル3階

情報登録日 2026/04/24 次回更新予定日 2026/05/20
  • 燕市吉田貸事務所
    株式会社 長陵エステート 長岡営業所
  • この物件を問い合わせる/無料
  • TEL: 0258-86-5133 0258-86-5133

この物件の地図・周辺情報・行政情報

この物件の周辺情報・行政情報を詳しく見る
【周辺情報】
物件の近くにあるコンビニや銀行・学校など、アイコン付のマップで詳しく表示できます!
【行政情報】
水道料や下水道料・ガス料金など、暮らしに関係のある情報を表示しています。

担当取扱い店舗情報

取扱い店舗画像
株式会社 長陵エステート 長岡営業所
TEL: 0258-86-5133
所在地: 新潟県長岡市宮原2丁目13番23号長陵社ビル3階
交通:
営業時間: 8:40~17:00/定休日:土曜日曜祭日
免許番号: 新潟県知事(15)第868号
所属団体名: 公社 新潟県宅地建物取引業協会 新潟支部
取引態様: 仲介
ホームページ: https://www.choryo-est.co.jp/