新潟県長岡市福住2-4-44 事務所 16.5万円の物件情報

駅近くで利便性の良い立地♪駐車場5台付きで事務所や倉庫など多様な使い方ができます。

物件名
所在地
面積
間取り
所在階
築年数
方位
賃料
管理費等
共益費
敷金
保証金
礼金
種別
構造
ADI福住ビル
101号室
新潟県長岡市福住2-4-44
150㎡
(45.37坪)
-
1階
54年
-
16.5万円
3,300円/月
なし
2ヶ月
なし
1ヶ月
事務所
鉄筋
  • ADI福住ビル
    フェニックス不動産 株式会社
  • この物件を問い合わせる/無料
  • TEL: 0258-38-6077 0258-38-6077

物件画像

外観
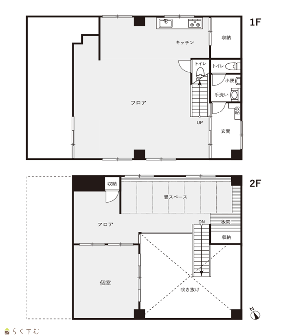
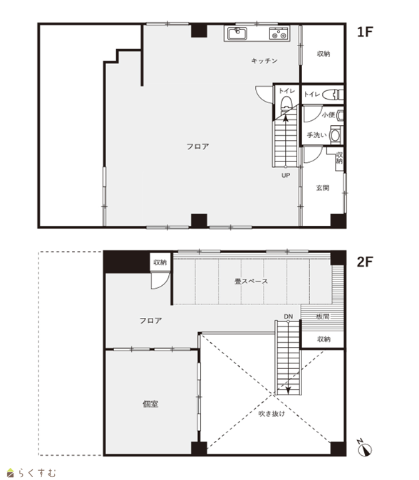
間取り
物件画像
※画像クリックで拡大表示
外観
物件画像
※画像クリックで拡大表示
間取り
詳細画像
物件画像
1階
物件画像
1階
物件画像
キッチン
物件画像
キッチン
物件画像
トイレ
物件画像
トイレ
物件画像
玄関から室内
物件画像
階段
物件画像
2階から1階を見下ろす
物件画像
2階 畳スペース
物件画像
2階 個室
物件画像
印刷用地図


物件概要

駅近くで事務所・テナントをお探しのかたのオススメです。
物件コード 00181-100601
物件名 ADI福住ビル
交通 駅:信越線 長岡駅から徒歩7分、バス:城内町から徒歩5分
所在地 新潟県長岡市福住2-4-44
物件種別 事務所
総戸数 -
構造 鉄筋 階建 地上6階建
所在階/階数 1階/6階 号室 101号室
面積 150㎡ /45.37坪 方位 -
間取り -
賃料 16.5万円/月
管理費 3,300円/月
礼金 1ヶ月
敷金 2ヶ月
ほか初期費用 別途鍵交換料 実費 その他諸費用 -
更新料 - 火災(家財)保険 31,100円
31100円/2年
共益費 - 町内費 -
駐車場
3台駐車場付 無料
バイク料金 -
鍵交換費 - 清掃料 -
更新事務手数料 -
保証区分 連帯保証人のみ
保証会社 区分:指定なし
-
連帯保証人 区分:要
-
仲介手数料 181,500円
築年月 1971年6月(築54年)
利用制限 法人:可、ペット:不可、楽器:不可、事務所利用:可
学校区 川崎小学校(535m)・東北中学校(1,281m)
設備 1階、エアコン、男女トイレ別、即引き渡し可、給湯、駐車場あり
入居時期 即入居可
取引態様 仲介
備考 -
手数料負担割合/配分割合 貸主:-%   借主:100% / 元付:50%   客付:50%  
取り扱い会社

フェニックス不動産 株式会社

新潟県長岡市神田町1-2-33

情報登録日 2025/12/19 次回更新予定日 2026/05/21
  • ADI福住ビル
    フェニックス不動産 株式会社
  • この物件を問い合わせる/無料
  • TEL: 0258-38-6077 0258-38-6077

この物件の地図・周辺情報・行政情報

この物件の周辺情報・行政情報を詳しく見る
【周辺情報】
物件の近くにあるコンビニや銀行・学校など、アイコン付のマップで詳しく表示できます!
【行政情報】
水道料や下水道料・ガス料金など、暮らしに関係のある情報を表示しています。
セブン-イレブン 長岡福住店(コンビニ)まで120m
原信 今朝白店(スーパー)までm
大光銀行 本店営業部 長岡駅出張所(銀行)までm
長岡信用金庫 川崎支店(銀行)までm
ゆうちょ銀行 長岡店(銀行)までm
第四北越銀行 川崎支店(銀行)までm

※カメラのアイコンがある場合は、マウスをポイントするとその施設の画像がご覧いただけます。


担当取扱い店舗情報

取扱い店舗画像
フェニックス不動産 株式会社
TEL: 0258-38-6077
所在地: 新潟県長岡市神田町1-2-33
交通: 長岡駅
営業時間: 9:30~18:00/定休日:水・日・祝(事前予約をいただければ営業いたします)
免許番号: 新潟県知事(2)第5376号
所属団体名: 公社 全日本不動産協会 新潟県本部
取引態様: 仲介
ホームページ: http://www.phoenix-fudousan.com/