新潟県長岡市関東町5-5 事務所 22.89万円の物件情報

長岡に本格的オフィスビルが登場!

物件名
所在地
面積
間取り
所在階
築年数
方位
賃料
管理費等
共益費
敷金
保証金
礼金
種別
構造
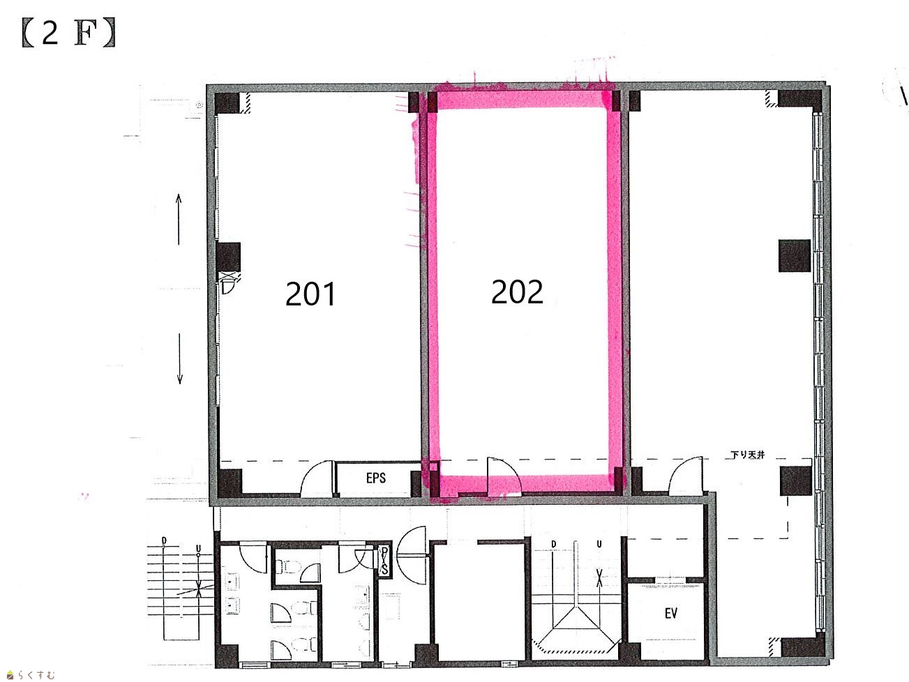
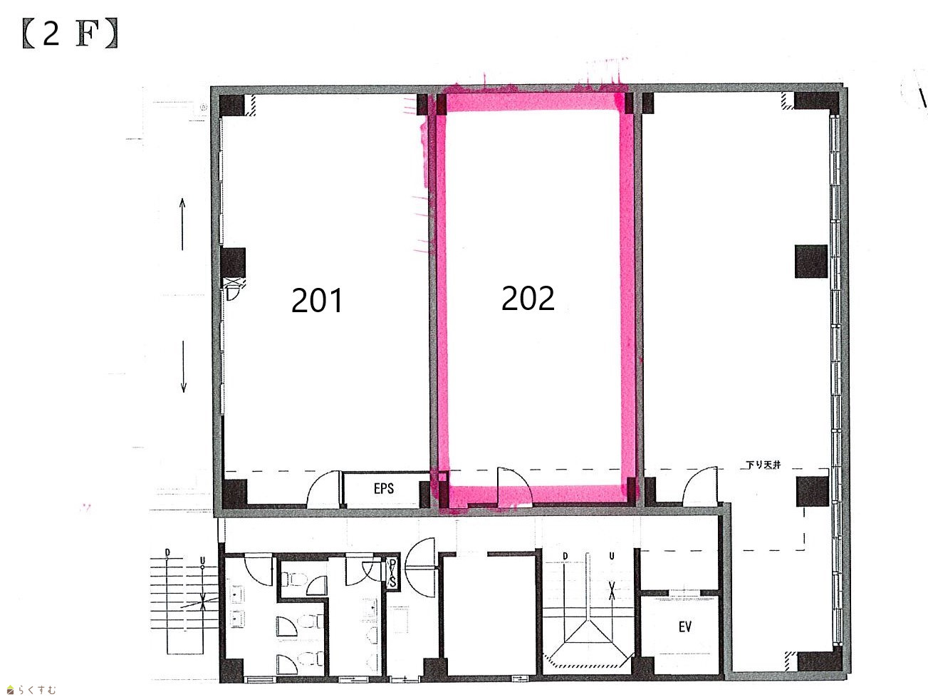
長岡ファーストビル
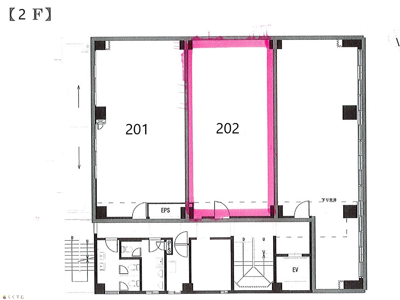
202号室
新潟県長岡市関東町5-5
89.04㎡
(26.93坪)
-
2階
40年
-
22.89万円
なし
なし
6ヶ月
なし
なし
事務所
鉄骨鉄筋コン
  • 長岡ファーストビル
    フェニックス不動産 株式会社
  • この物件を問い合わせる/無料
  • TEL: 0258-38-6077 0258-38-6077

物件画像

外観
間取り
物件画像
※画像クリックで拡大表示
外観
物件画像
※画像クリックで拡大表示
間取り
詳細画像
物件画像
内装
物件画像
設備
物件画像
トイレ
物件画像
設備
物件画像
外観
物件画像
ダストボックス
物件画像
駐車場
物件画像
共有スペース
物件画像
印刷用地図


物件概要

業種・業態相談可能☆敷地内駐車場も確保可能!事務所スペースもラインナップを揃えています!
物件コード 00181-100310
物件名 長岡ファーストビル
交通 駅:上越新幹線 長岡駅から徒歩10分、バス:神田1丁目から徒歩2分
所在地 新潟県長岡市関東町5-5
物件種別 事務所
総戸数 14戸
構造 鉄骨鉄筋コン 階建 地上9階建
所在階/階数 2階/9階 号室 202号室
面積 89.04㎡ /26.93坪 方位 -
間取り -
賃料 22.89万円/月
228,905円(8,500円税別)
管理費 -
礼金 -
敷金 6ヶ月
ほか初期費用 - その他諸費用 -
更新料 - 火災(家財)保険 加入必須
共益費 - 町内費 -
駐車場 平置き 1.0万円 空き状況問い合わせください バイク料金 -
鍵交換費 - 清掃料 -
セキュリティカード 1,600円
引き渡し時に2枚償貸与 追加料金1枚1600円
更新事務手数料 -
保証区分 連帯保証人のみ
保証会社 区分:指定なし
-
連帯保証人 区分:要
-
仲介手数料 251,795円
築年月 1985年6月(築40年)
利用制限 法人:可、事務所利用:可
学校区 阪之上小学校(741m)・東中学校(962m)
設備 2階以上、光ファイバー、エアコン、男女トイレ別、エレベーター、給湯、OAフロア、駐車場あり
入居時期 2026年5月11日~
取引態様 仲介
備考 -
手数料負担割合/配分割合 貸主:-%   借主:-% / 元付:-%   客付:-%  
取り扱い会社

フェニックス不動産 株式会社

新潟県長岡市神田町1-2-33

情報登録日 2025/11/28 次回更新予定日 2026/05/21
  • 長岡ファーストビル
    フェニックス不動産 株式会社
  • この物件を問い合わせる/無料
  • TEL: 0258-38-6077 0258-38-6077

この物件の地図・周辺情報・行政情報

この物件の周辺情報・行政情報を詳しく見る
【周辺情報】
物件の近くにあるコンビニや銀行・学校など、アイコン付のマップで詳しく表示できます!
【行政情報】
水道料や下水道料・ガス料金など、暮らしに関係のある情報を表示しています。
セブン-イレブン 長岡呉服町店(コンビニ)まで210m
ローソン 長岡駅大手口店(コンビニ)まで630m
吉田病院(病院)まで270m
大光銀行 神田支店(銀行)まで440m
第四北越銀行 長岡本店営業部(銀行)までm
長岡呉服町郵便局(郵便局)までm

※カメラのアイコンがある場合は、マウスをポイントするとその施設の画像がご覧いただけます。


担当取扱い店舗情報

取扱い店舗画像
フェニックス不動産 株式会社
TEL: 0258-38-6077
所在地: 新潟県長岡市神田町1-2-33
交通: 長岡駅
営業時間: 9:30~18:00/定休日:水・日・祝(事前予約をいただければ営業いたします)
免許番号: 新潟県知事(2)第5376号
所属団体名: 公社 全日本不動産協会 新潟県本部
取引態様: 仲介
ホームページ: http://www.phoenix-fudousan.com/