駅近く、買い物にも便利! ウォシュレット付! Wifi LAN インターネット無料♪
| 物件名
所在地 |
面積
間取り 所在階 |
築年数
方位 |
賃料
管理費等 共益費 |
敷金
保証金 礼金 |
種別
構造 |
|---|---|---|---|---|---|
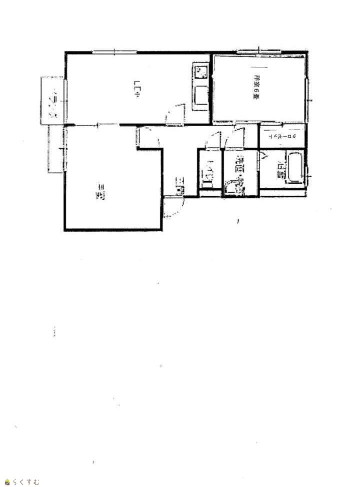
| トレジャータウン 202号室 新潟県柏崎市宝町3番85号トレジャータウン202 | 53.08㎡ (16.05坪) 2LDK 2階 | 26年 西 | 5.2万円 なし あり | 1ヶ月 なし なし | アパート・マンション・一戸建て 鉄骨 |
| 物件コード | 00178-100252 | ||
|---|---|---|---|
| 物件名 | トレジャータウン | ||
| 交通 | 駅:信越線 柏崎駅から徒歩15分、バス:コモタウン柏崎から徒歩7分 | ||
| 所在地 | 新潟県柏崎市宝町3番85号トレジャータウン202 | ||
| 物件種別 | アパート・マンション・一戸建て | ||
| 総戸数 | 8戸 | ||
| 構造 | 鉄骨 | 階建 | 地上2階建 |
| 所在階/階数 | 2階/2階 | 号室 | 202号室 |
| 面積 | 53.08㎡ /16.05坪 | 方位 | 西 |
| 間取り | 2LDK (洋室:6、9) LDK |
||
| 賃料 | 5.2万円/月
|
管理費 | - |
| 礼金 | - | 敷金 | 1ヶ月
|
| ほか初期費用 | - | その他諸費用 | - |
| 更新料 | - | 火災(家財)保険 |
19,000円
|
| 共益費 |
2,000円
|
町内費 |
500円
|
| 駐車場 | 3000+消費税 | バイク料金 | - |
| 鍵交換費 | - | 清掃料 | - |
| 更新事務手数料 | - | ||
| 保証区分 |
保証会社+緊急連絡先 |
||
| 保証会社 |
区分:加入要
保証会社名:日本インシュア - |
||
| 家賃保証金 |
27,250円
駐車場の利用が無い場合です |
||
| 連帯保証人 |
区分:不要 - |
||
| 仲介手数料 |
57,200円
|
||
| 築年月 | 1999年10月(築26年) | ||
| 利用制限 | 法人:可、単身者:可、二人入居:可、ペット:不可、楽器:不可、事務所利用:不可、ルームシェア:不可 | ||
| 学校区 | 枇杷島小学校(1,204m)・鏡が沖中学校(986m) | ||
| 設備 | バス停近く、最寄り駅近く、最上階、敷地内ゴミ置き場、駐車2台可、駐輪場あり、テンキー、IHクッキングヒーター、バストイレ別、ユニットバス、温水洗浄便座、洗面所独立、オール電化、全居室フローリング、洗濯機置場 室内、脱衣所、クロゼット、インターネット無料、各居室照明 | ||
| 入居時期 | 令和8年4月上旬頃 | ||
| 取引態様 | 仲介 | ||
| 備考 | - | ||
| 手数料負担割合/配分割合 | 貸主:-% 借主:100% / 元付:50% 客付:50% | ||
| 取り扱い会社 |
株式会社オフィス・シナダ 新潟県柏崎市西港町4番19号 |
||
| 情報登録日 | 2026/03/03 | 次回更新予定日 | 2026/04/06 |
|
ファミリーマート 柏崎扇町店(コンビニ)まで1140m デイリーヤマザキ 柏崎田中店(コンビニ)まで890m セブン-イレブン 柏崎錦町店(コンビニ)まで890m 原信 岩上店(スーパー)まで920m ウオロク 柏崎店(スーパー)まで660m わかくさ薬局(ドラッグストア)まで1110m おうぎまち薬局(ドラッグストア)まで1150m 大手薬局 柏崎店(ドラッグストア)まで1230m 柏崎扇町薬局(ドラッグストア)まで1340m ウエルシア柏崎錦町店 (調剤薬局)(ドラッグストア)まで830m (有)石黒薬局 田中店(ドラッグストア)まで1020m |
クスリのアオキ 穂波店(ドラッグストア)まで1020m 本間内科医院(病院)まで1180m 扇町皮膚科医院窓口(病院)まで1270m 扇町皮膚科医院(病院)まで1270m あらき眼科(病院)まで1300m つよしクリニック(病院)まで1210m 樋口内科医院扇町(病院)まで1370m 杉本医院(病院)まで1040m セブン銀行ATM(銀行)まで880m 柏崎岩上郵便局(郵便局)まで840m |
※カメラのアイコンがある場合は、マウスをポイントするとその施設の画像がご覧いただけます。
| TEL: | 0257-41-5077 | |
|---|---|---|
| 所在地: | 新潟県柏崎市西港町4番19号 | |
| 交通: | 柏崎駅 | |
| 営業時間: | 10:00~18:00土日は10:00~17:00/定休日:水曜日・祝日 | |
| 免許番号: | 新潟県知事(2)第5342号 | |
| 所属団体名: | 公社 宅地建物取引協会 柏崎支部 | |
| 取引態様: | 仲介 | |
| ホームページ: | http://www.officeshinada.co.jp/ | |