新潟県上越市春日新田2丁目11番11号 事務所 8.8万円の物件情報

県道沿いにある事務所の1階部分です。駐車場2台賃料に込。

物件名
所在地
面積
間取り
所在階
築年数
方位
賃料
管理費等
共益費
敷金
保証金
礼金
種別
構造
春日新田2丁目 貸事務所
新潟県上越市春日新田2丁目11番11号
121.3㎡
(36.69坪)
-
1階
45年
-
8.8万円
なし
なし
2ヶ月
なし
0.5ヶ月
事務所
鉄骨
  • 春日新田2丁目 貸事務所
    株式会社 すむとこ
  • この物件を問い合わせる/無料
  • TEL: 025-520-7103 025-520-7103

物件画像

外観
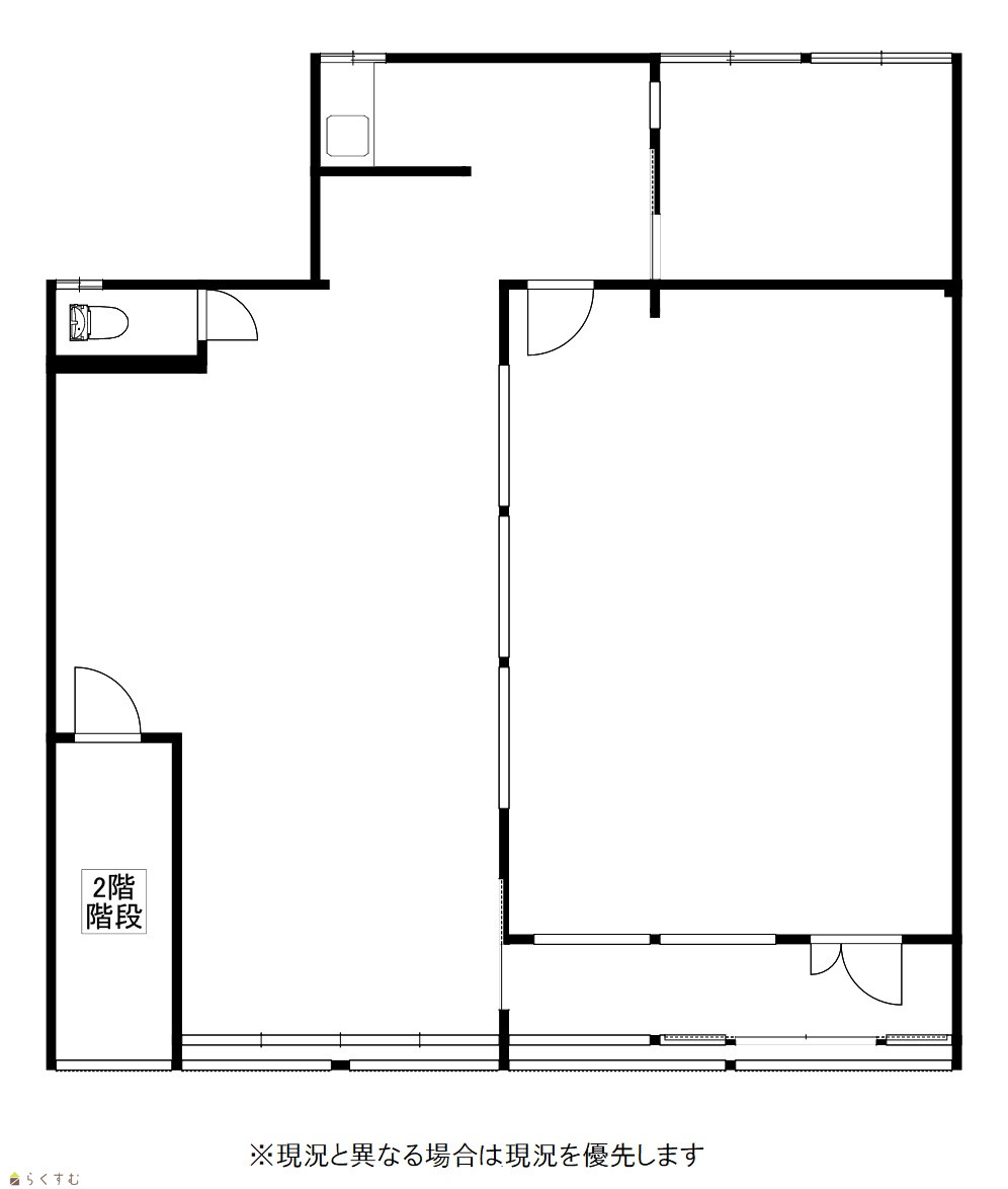
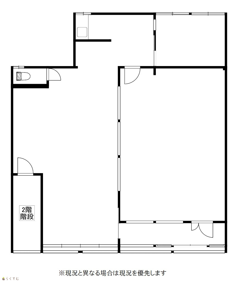
間取り
物件画像
※画像クリックで拡大表示
現地の様子
物件画像
※画像クリックで拡大表示
間取り図
詳細画像
物件画像
事務所の様子
物件画像
事務所の様子
物件画像
事務所の様子
物件画像
事務所の様子
物件画像
事務所の様子
物件画像
キッチン
物件画像
トイレ
物件画像
エアコン1台付
物件画像
地図画像


物件概要

物件コード 00160-100013
物件名 春日新田2丁目 貸事務所
交通 駅:妙高はねうまライン 直江津駅から徒歩25分、バス:小町橋から徒歩1分
所在地 新潟県上越市春日新田2丁目11番11号
物件種別 事務所
総戸数 -
構造 鉄骨 階建 地上2階建
所在階/階数 1階/2階 号室 -
面積 121.3㎡ /36.69坪 方位 -
間取り -
賃料 8.8万円/月
管理費 -
礼金 0.5ヶ月
敷金 2ヶ月
ほか初期費用 - その他諸費用 あり
更新料 - 火災(家財)保険 別途借主にて加入が必要
共益費 - 町内費 別途借主にて支払
駐車場 2台分賃料に含む バイク料金 -
鍵交換費 - 清掃料 -
更新事務手数料 -
保証区分 保証会社のみ
保証会社 区分:加入要
保証会社名:その他 (USEN TRUST)
-
家賃保証金 88,000円
初回保証委託料(月額賃料等の100%)
連帯保証人 区分:不要
-
仲介手数料 88,000円
築年月 1980年11月(築45年)
利用制限 -
学校区 春日新田小学校(479m)・直江津東中学校(890m)
設備 1階、エアコン、駐車場あり
入居時期 相談
取引態様 仲介
備考 -
手数料負担割合/配分割合 貸主:-%   借主:100% / 元付:-%   客付:-%  
取り扱い会社

株式会社 すむとこ

新潟県上越市下門前1705

情報登録日 2026/04/11 次回更新予定日 2026/05/20
  • 春日新田2丁目 貸事務所
    株式会社 すむとこ
  • この物件を問い合わせる/無料
  • TEL: 025-520-7103 025-520-7103

この物件の地図・周辺情報・行政情報

この物件の周辺情報・行政情報を詳しく見る
【周辺情報】
物件の近くにあるコンビニや銀行・学校など、アイコン付のマップで詳しく表示できます!
【行政情報】
水道料や下水道料・ガス料金など、暮らしに関係のある情報を表示しています。

担当取扱い店舗情報

取扱い店舗画像
株式会社 すむとこ
TEL: 025-520-7103
所在地: 新潟県上越市下門前1705
交通: はねうまライン 直江津駅
営業時間: 9:00~18:00/定休日:日曜・祝祭日
免許番号: 新潟県知事(4)第4991号
所属団体名: 新潟県宅地建物取引業協会 上越支部
取引態様: 仲介
ホームページ: http://sumutoko.jp.net/