新潟県柏崎市田中1-5 アパート 1K 4.7万円の物件情報

物件名
所在地
面積
間取り
所在階
築年数
方位
賃料
管理費等
共益費
敷金
保証金
礼金
種別
構造
ロイヤルミナミ
203号室
新潟県柏崎市田中1-5
28.35㎡
(8.57坪)
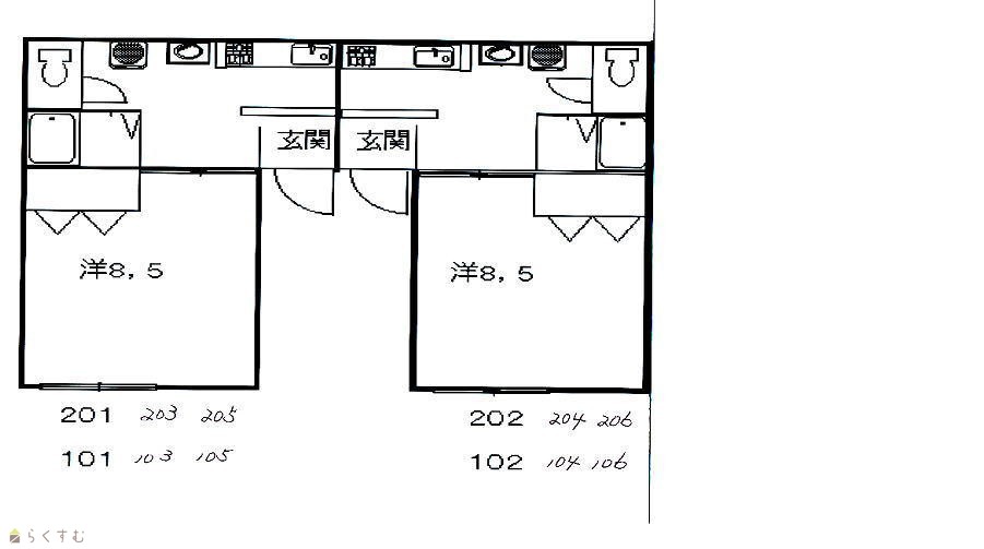
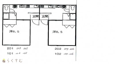
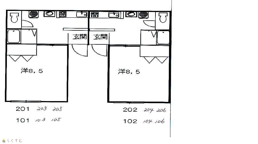
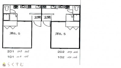
1K
2階
29年
指定なし
4.7万円
なし
なし
1ヶ月
なし
なし
アパート・マンション・一戸建て
鉄骨
  • ロイヤルミナミ
    JAえちご中越 柏崎不動産センター
  • この物件を問い合わせる/無料
  • TEL: 0257-23-3412 0257-23-3412

物件画像

外観
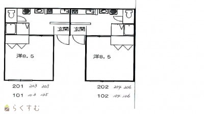
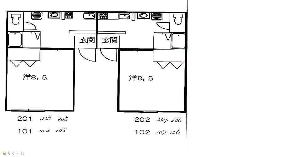
間取り
物件画像
※画像クリックで拡大表示
ロイヤルミナミ 203
物件画像
※画像クリックで拡大表示
間取り
詳細画像
物件画像
玄関
物件画像
日当たり良好
物件画像
キッチン
物件画像
居室
物件画像
日当たり良好
物件画像
居室
物件画像
洗面台
物件画像
トイレ
物件画像
クローゼット


物件概要

物件コード 00084-100039
物件名 ロイヤルミナミ
交通 駅:信越線 柏崎駅から徒歩20分、バス:田中から徒歩2分
所在地 新潟県柏崎市田中1-5
物件種別 アパート・マンション・一戸建て
総戸数 -
構造 鉄骨 階建 地上2階建
所在階/階数 2階/2階 号室 203号室
面積 28.35㎡ /8.57坪 方位 指定なし
間取り 1K
賃料 4.7万円/月
管理費 -
礼金 -
敷金 1ヶ月
ほか初期費用 - その他諸費用 -
更新料 - 火災(家財)保険 別途要加入
共益費 - 町内費 -
駐車場
家賃1台込み
バイク料金 -
鍵交換費 - 清掃料 -
更新事務手数料 -
保証区分 連帯保証人のみ
保証会社 区分:指定なし
-
連帯保証人 区分:要
-
仲介手数料 51,700円
築年月 1996年3月(築29年)
利用制限 二人入居:相談、ペット:不可、楽器:不可
学校区 枇杷島小学校(723m)・鏡が沖中学校(510m)
設備 日当り良好、駐車場1台無料、バストイレ別、洗面所独立、エアコン、柏崎 大和・積水物件
入居時期 即入居可
取引態様 仲介
備考 -
手数料負担割合/配分割合 貸主:-%   借主:-% / 元付:-%   客付:-%  
取り扱い会社

JAえちご中越 柏崎不動産センター

新潟県柏崎市駅前1丁目3番22号

情報登録日 2025/12/03 次回更新予定日 2026/01/05
  • ロイヤルミナミ
    JAえちご中越 柏崎不動産センター
  • この物件を問い合わせる/無料
  • TEL: 0257-23-3412 0257-23-3412

この物件の地図・周辺情報・行政情報

この物件の周辺情報・行政情報を詳しく見る
【周辺情報】
物件の近くにあるコンビニや銀行・学校など、アイコン付のマップで詳しく表示できます!
【行政情報】
水道料や下水道料・ガス料金など、暮らしに関係のある情報を表示しています。

担当取扱い店舗情報

取扱い店舗画像
JAえちご中越 柏崎不動産センター
TEL: 0257-23-3412
所在地: 新潟県柏崎市駅前1丁目3番22号
交通: 柏崎駅
営業時間: 8:30~17:00/定休日:土・日・祝
免許番号: 新潟県知事(1)第5669号
所属団体名: 新潟県宅地建物取引業協会 柏崎支部
取引態様: 仲介
ホームページ: http://www.ja-kasiwazaki-fudousan.jp/