| 物件名
所在地 |
面積
間取り 所在階 |
築年数
方位 |
賃料
管理費等 共益費 |
敷金
保証金 礼金 |
種別
構造 |
|---|---|---|---|---|---|
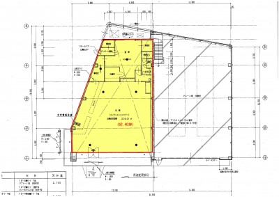
| 池田ビル 101号室 新潟県十日町市中条丙982-3他 | 206.3㎡ (62.4坪) - 1階 | 27年 - | 20万円 なし なし | 2ヶ月 なし なし | 店舗 鉄筋 |
| 物件コード | 00081-100001 | ||
|---|---|---|---|
| 物件名 | 池田ビル | ||
| 交通 | 駅:新座から徒歩10分、バス:太子堂から徒歩2分 | ||
| 所在地 | 新潟県十日町市中条丙982-3他 | ||
| 物件種別 | 店舗 | ||
| 総戸数 | - | ||
| 構造 | 鉄筋 | 階建 | 地上2階建 |
| 所在階/階数 | 1階/2階 | 号室 | 101号室 |
| 面積 | 206.3㎡ /62.4坪 | 方位 | - |
| 間取り | - | ||
| 賃料 | 20万円/月
|
管理費 | - |
| 礼金 | -
|
敷金 | 2ヶ月
|
| ほか初期費用 | - | その他諸費用 | - |
| 更新料 | - | 火災(家財)保険 | 内装、設備機器等に見合う金額 |
| 共益費 | - | 町内費 | - |
| 駐車場 | 込み | バイク料金 | - |
| 鍵交換費 | - | 清掃料 | - |
| 更新事務手数料 | - | ||
| 保証区分 |
連帯保証人のみ |
||
| 保証会社 |
区分:指定なし
- |
||
| 連帯保証人 |
区分:要 - |
||
| 仲介手数料 |
220,000円
|
||
| 築年月 | 1998年12月(築27年) | ||
| 利用制限 | 事務所利用:可 | ||
| 学校区 | 中条小学校(1,044m)・中条中学校(317m) | ||
| 設備 | 1階、即引き渡し可、飲食店可、スケルトン、駐車場あり | ||
| 入居時期 | 12月上旬 | ||
| 取引態様 | 仲介 | ||
| 備考 | - | ||
| 手数料負担割合/配分割合 | 貸主:-% 借主:-% / 元付:-% 客付:-% | ||
| 取り扱い会社 |
有限会社 まえざわ 新潟県柏崎市上田尻1697番地 |
||
| 情報登録日 | 2023/05/26 | 次回更新予定日 | 2026/05/21 |
| TEL: | 0257-23-7385 | |
|---|---|---|
| 所在地: | 新潟県柏崎市上田尻1697番地 | |
| 交通: | 北陸自動車道柏崎インタ-から500メ-トル | |
| 営業時間: | 9:00~21:00/定休日:水曜日 | |
| 免許番号: | 新潟県知事(5)4410号 | |
| 所属団体名: | (有)まえざわ | |
| 取引態様: | 仲介 | |
| ホームページ: | http://ymaezawa.sakura.ne.jp | |