新潟県柏崎市錦町3-31 アパート 3LDK 6.9万円の物件情報

都市ガス♪柏崎徒歩15分☆駐車場1台無料☆

物件名
所在地
面積
間取り
所在階
築年数
方位
賃料
管理費等
共益費
敷金
保証金
礼金
種別
構造
ハイセレール錦
201号室
新潟県柏崎市錦町3-31
69.18㎡
(20.92坪)
3LDK
2階
28年
6.9万円
2,000円/月
-
なし
なし
7万円
アパート・マンション・一戸建て
軽量鉄骨
  • ハイセレール錦
    株式会社 リビングギャラリー長岡センター
  • この物件を問い合わせる/無料
  • TEL: 0800-100-0539 0800-100-0539

物件画像

外観
間取り
物件画像
※画像クリックで拡大表示
外観
物件画像
※画像クリックで拡大表示
間取図
詳細画像
物件画像
玄関
物件画像
設備 セキュリティ
物件画像
洗面所
物件画像
トイレ
物件画像
居室 リビング
物件画像
設備 内装
物件画像
景色
物件画像
設備 収納
物件画像
居室
物件画像
居室 和室
物件画像
キッチン
物件画像
バス
物件画像
居室 洋室
物件画像
キッチン
物件画像
駐車場
物件画像
共用設備
物件画像
その他
物件画像
駐車場
物件画像
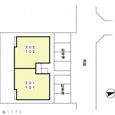
配置図


物件概要

都市ガス物件! 温水洗浄便座・TVインターホン・エアコン1基設置!
物件コード 00078-112894
物件名 ハイセレール錦
交通 駅:東柏崎から徒歩11分
所在地 新潟県柏崎市錦町3-31
物件種別 アパート・マンション・一戸建て
総戸数 4戸
構造 軽量鉄骨 階建 地上2階建
所在階/階数 2階/2階 号室 201号室
面積 69.18㎡ /20.92坪 方位
間取り 3LDK (和室:6畳) (洋室:6、4.5)
賃料 6.9万円/月
管理費 2,000円/月
礼金 7万円
敷金 -
ほか初期費用 95150円(ルームクリーニング費用【税込】:88000円/投てき消火剤/1本【任意】:7150円) その他諸費用 町内会費:750円
更新料 69,000円
1ヶ月
火災(家財)保険
要加入
駐車場
付無料
バイク料金 -
鍵交換費 - 清掃料 -
ルームクリーニング費用【税込】 88,000円
投てき消火剤/1本【任意】 7,150円
町内会費 750円
更新事務手数料 -
保証区分 保証会社のみ
保証会社 区分:加入要
保証会社名:その他 (-)
初回保証料35,000円、月額保証料:(月額賃料等総額×1%+800円)/月+振替手数料99円/月
連帯保証人 区分:不要+保証会社利用が必要
-
仲介手数料 75,900円
築年月 1997年3月(築28年)
利用制限 単身者:可、二人入居:可、シニア(60歳以上)入居:相談、子供:可、ペット:不可、事務所利用:不可
学校区 -
設備 閑静な住宅街、振分、最上階、駐輪場あり、駐車場1台無料、駐車場 礼金なし、駐車場 敷金なし、バストイレ別、暖房便座、洗面所独立、エアコン、都市ガス、3か所給湯、バルコニー、洗濯機置場 室内、脱衣所、BS端子・アンテナ、TVモニター付きインターホン、各居室照明
入居時期 2025年11月中旬 入居可能予定
取引態様 仲介
備考 -
手数料負担割合/配分割合 貸主:0%   借主:100% / 元付:50%   客付:50%  
取り扱い会社

株式会社 リビングギャラリー長岡センター

新潟県長岡市古正寺1丁目48番地1

情報登録日 2025/11/03 次回更新予定日 2025/11/19
  • ハイセレール錦
    株式会社 リビングギャラリー長岡センター
  • この物件を問い合わせる/無料
  • TEL: 0800-100-0539 0800-100-0539

この物件の地図・周辺情報・行政情報

この物件の周辺情報・行政情報を詳しく見る
【周辺情報】
物件の近くにあるコンビニや銀行・学校など、アイコン付のマップで詳しく表示できます!
【行政情報】
水道料や下水道料・ガス料金など、暮らしに関係のある情報を表示しています。

担当取扱い店舗情報

取扱い店舗画像
株式会社 リビングギャラリー長岡センター
TEL: 0800-100-0539
所在地: 新潟県長岡市古正寺1丁目48番地1
交通: 長岡駅
営業時間: 10:00~18:00/定休日:水曜日・第一、第三火曜日
免許番号: 国土交通大臣(6)第5854号
所属団体名: 新潟県宅地建物取引協会 長岡支部
取引態様: 仲介
ホームページ: http://www.living-gallery.com/