新潟県長岡市城内町3丁目5-1 事務所 9万円の物件情報

長岡駅より徒歩5分、事務所に最適。エアコン、敷地内駐車場1台付。

物件名
所在地
面積
間取り
所在階
築年数
方位
賃料
管理費等
共益費
敷金
保証金
礼金
種別
構造
レーベン長岡
202号室
新潟県長岡市城内町3丁目5-1
63.96㎡
(19.34坪)
-
2階
41年
-
9万円
なし
なし
2ヶ月
なし
なし
事務所
鉄骨鉄筋コン
  • レーベン長岡
    有限会社 グリーン土地
  • この物件を問い合わせる/無料
  • TEL: 0258-32-1222 0258-32-1222

物件画像

外観
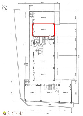
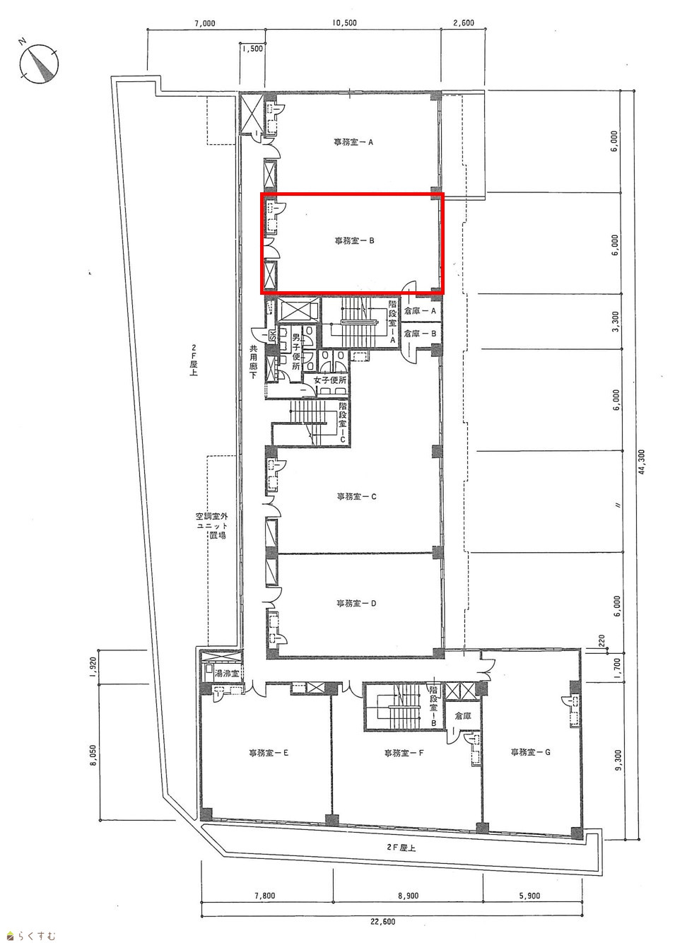
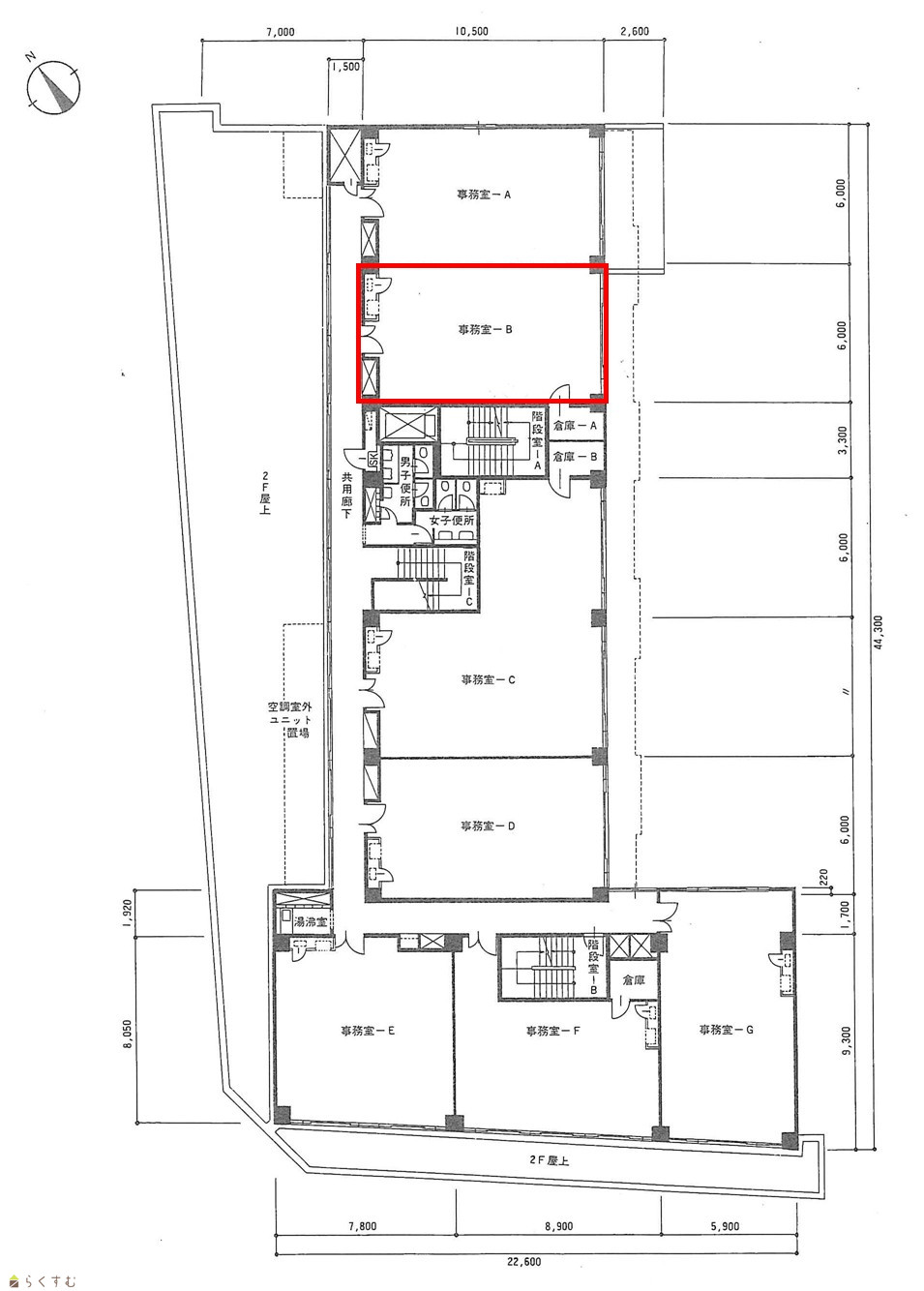
間取り
物件画像
※画像クリックで拡大表示
外観
物件画像
※画像クリックで拡大表示
間取り
詳細画像
物件画像
現地
物件画像
現地
物件画像
現地
物件画像
設備
物件画像
給湯(共同)
物件画像
トイレ(共同)
物件画像
共有部分
物件画像
共有部分
物件画像
共有部分
物件画像
印刷用地図


物件概要

物件コード 00071-100655
物件名 レーベン長岡
交通 駅:長岡から徒歩5分
所在地 新潟県長岡市城内町3丁目5-1
物件種別 事務所
総戸数 -
構造 鉄骨鉄筋コン 階建 地上9階建
所在階/階数 2階/9階 号室 202号室
面積 63.96㎡ /19.34坪 方位 -
間取り -
賃料 9万円/月
管理費 -
礼金 -
敷金 2ヶ月
ほか初期費用 - その他諸費用 -
更新料 - 火災(家財)保険 -
共益費 - 町内費 -
駐車場 敷地内駐車場1台込(№7) バイク料金 -
鍵交換費 - 清掃料 -
更新事務手数料 -
保証区分 連帯保証人のみ
保証会社 区分:指定なし
-
連帯保証人 区分:要
-
仲介手数料 99,000円
築年月 1984年9月(築41年)
利用制限 事務所利用:可
学校区 阪之上小学校(545m)・東中学校(1,170m)
設備 2階以上、融雪設備あり、管理室あり、エアコン、給湯、駐車場あり
入居時期 相談
取引態様 仲介
備考 トイレ・給湯設備は他事務所と共用になります。
手数料負担割合/配分割合 貸主:0%   借主:100% / 元付:50%   客付:50%  
取り扱い会社

有限会社 グリーン土地

新潟県長岡市本町3-1-9 アーバンヒルズ長岡1F

情報登録日 2026/03/19 次回更新予定日 2026/05/21
  • レーベン長岡
    有限会社 グリーン土地
  • この物件を問い合わせる/無料
  • TEL: 0258-32-1222 0258-32-1222

この物件の地図・周辺情報・行政情報

この物件の周辺情報・行政情報を詳しく見る
【周辺情報】
物件の近くにあるコンビニや銀行・学校など、アイコン付のマップで詳しく表示できます!
【行政情報】
水道料や下水道料・ガス料金など、暮らしに関係のある情報を表示しています。
ローソン 長岡駅大手口店(コンビニ)まで300m
セブン-イレブン 長岡呉服町店(コンビニ)まで310m
大光銀行 本店営業部・千手支店(銀行)まで440m
第四北越銀行 長岡本店営業部(銀行)まで550m
第四北越銀行 長岡市役所支店(銀行)まで660m
長岡郵便局(郵便局)まで420m

※カメラのアイコンがある場合は、マウスをポイントするとその施設の画像がご覧いただけます。


担当取扱い店舗情報

取扱い店舗画像
有限会社 グリーン土地
TEL: 0258-32-1222
所在地: 新潟県長岡市本町3-1-9 アーバンヒルズ長岡1F
交通: 長岡駅
営業時間: 9:00~17:00/定休日:日・祝・祭日
免許番号: 新潟県知事(10)3038号
所属団体名: 新潟県宅地建物取引協会 長岡支部
取引態様: 仲介
ホームページ: https://www.greentoti.com