新潟県魚沼市田川369-7 店舗 27.5万円の物件情報

主要道路沿い 広々店舗事務所

物件名
所在地
面積
間取り
所在階
築年数
方位
賃料
管理費等
共益費
敷金
保証金
礼金
種別
構造
魚沼市田川 事業用貸店舗事務所
新潟県魚沼市田川369-7
150.14㎡
(45.41坪)
-
1階
27年
-
27.5万円
なし
なし
3ヶ月
なし
1ヶ月
店舗
鉄筋
  • 魚沼市田川 事業用貸店舗事務所
    株式会社 高野不動産販売
  • この物件を問い合わせる/無料
  • TEL: 0258-33-7711 0258-33-7711

物件画像

外観
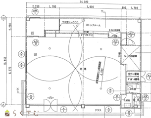
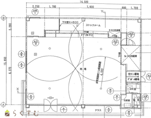
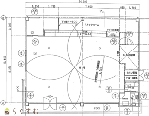
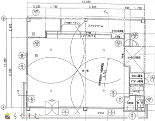
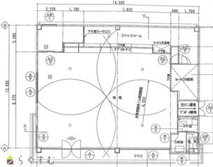
間取り
物件画像
※画像クリックで拡大表示
物件画像
※画像クリックで拡大表示
間取り図
詳細画像
物件画像
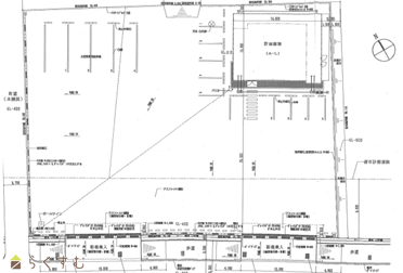
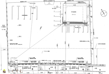
建物配置
物件画像
住宅地図
物件画像
地図画像


物件概要

旧コンビニエンスストアの建物となります
物件コード 00041-100614
物件名 魚沼市田川 事業用貸店舗事務所
交通 駅:上越線 北堀之内駅から徒歩19分、バス:堀之内病院前から徒歩22分
所在地 新潟県魚沼市田川369-7
物件種別 店舗
総戸数 1戸
構造 鉄筋 階建 地上1階建
所在階/階数 1階/1階 号室 -
面積 150.14㎡ /45.41坪 方位 -
間取り -
賃料 27.5万円/月
管理費 -
礼金 1ヶ月
敷金 3ヶ月
ほか初期費用 - その他諸費用 -
更新料 - 火災(家財)保険 -
共益費 - 町内費 -
駐車場 敷地内駐車可 バイク料金 -
鍵交換費 - 清掃料 -
更新事務手数料 -
保証区分 連帯保証人+保証会社
保証会社 区分:加入要
保証会社名:日本セーフティ
1カ月・更新料有り(年)
連帯保証人 区分:要
-
仲介手数料 275,000円
築年月 1998年8月(築27年)
利用制限 法人:可、学生:相談、楽器:相談、事務所利用:可、ルームシェア:相談
学校区 宇賀地小学校(356m)・堀之内中学校(1,141m)
設備 -
入居時期 即入居可
取引態様 仲介
備考 敷地約560坪。駐車場利用可能です。
手数料負担割合/配分割合 貸主:-%   借主:100% / 元付:50%   客付:50%  
取り扱い会社

株式会社 高野不動産販売

新潟県長岡市柏町1丁目4-33

情報登録日 2025/02/23 次回更新予定日 2026/05/21
  • 魚沼市田川 事業用貸店舗事務所
    株式会社 高野不動産販売
  • この物件を問い合わせる/無料
  • TEL: 0258-33-7711 0258-33-7711

この物件の地図・周辺情報・行政情報

この物件の周辺情報・行政情報を詳しく見る
【周辺情報】
物件の近くにあるコンビニや銀行・学校など、アイコン付のマップで詳しく表示できます!
【行政情報】
水道料や下水道料・ガス料金など、暮らしに関係のある情報を表示しています。

担当取扱い店舗情報

取扱い店舗画像
株式会社 高野不動産販売
TEL: 0258-33-7711
所在地: 新潟県長岡市柏町1丁目4-33
交通: 長岡駅
営業時間: 9:00~17:30/定休日:土曜日・日曜日・祝日・お盆・年末年始
免許番号: 新潟県知事(1)第5568号
所属団体名: (公社)新潟県宅地建物取引業協会,(公社)首都圏不動産公正取引協議会,(公財)日本賃貸住宅管理協会
取引態様: 仲介
ホームページ: https://www.tknf.co.jp