新潟県長岡市大山2丁目240番地1 店舗 27.5万円の物件情報

物件名
所在地
面積
間取り
所在階
築年数
方位
賃料
管理費等
共益費
敷金
保証金
礼金
種別
構造
大山2貸店舗
新潟県長岡市大山2丁目240番地1
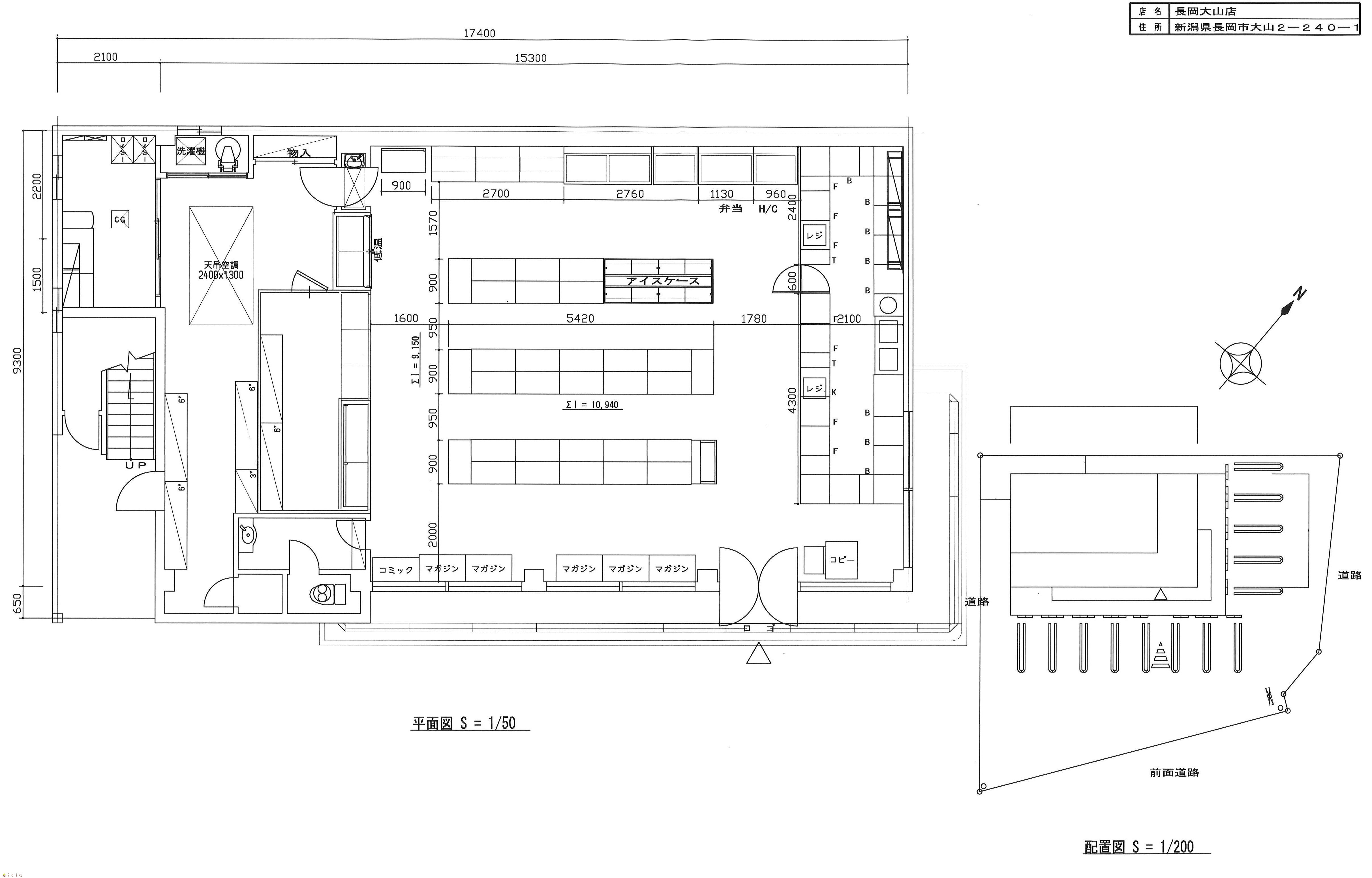
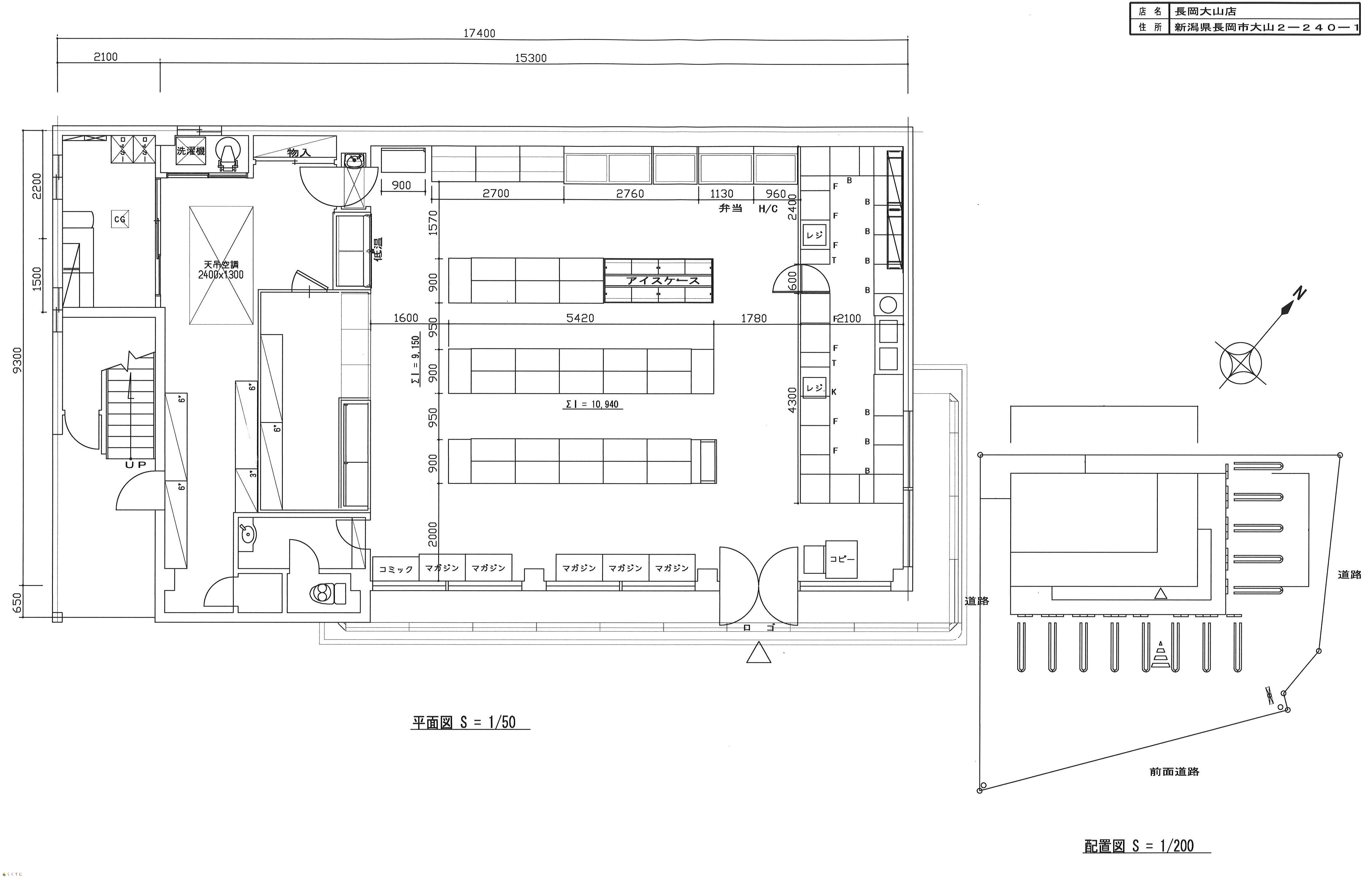
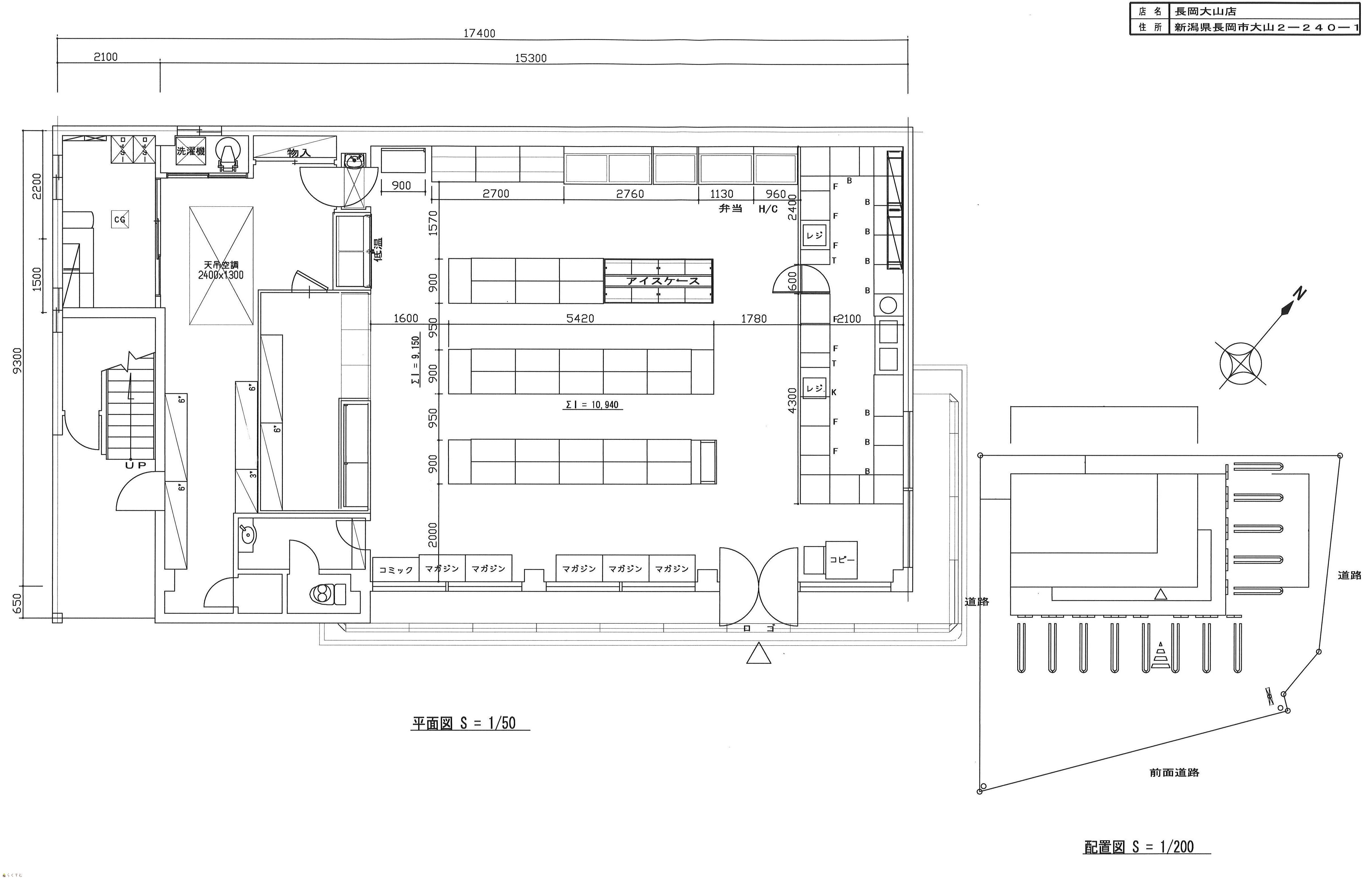
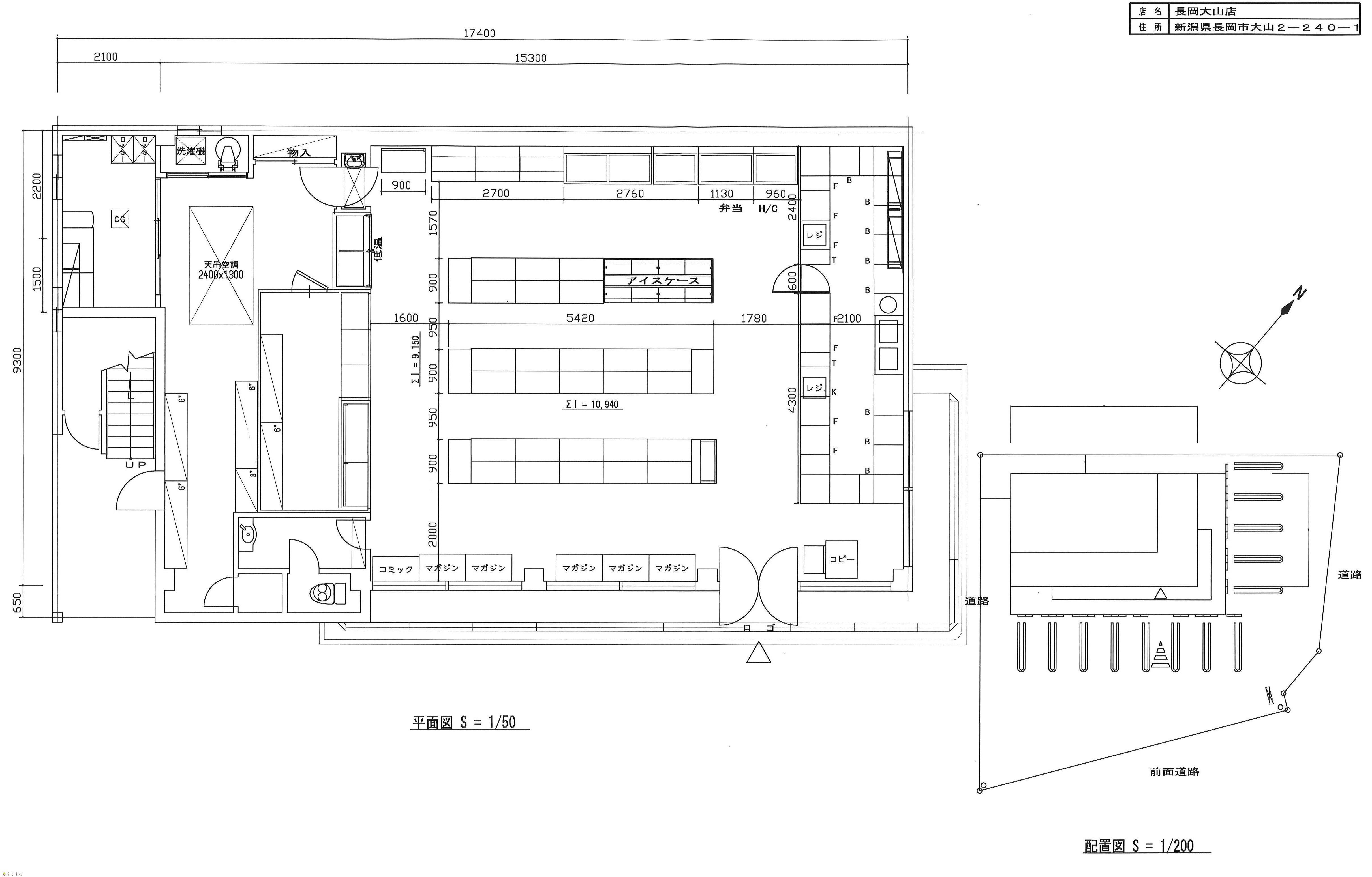
162.91㎡
(49.28坪)
-
1階
38年
-
27.5万円
なし
なし
80万円
なし
1ヶ月
店舗
鉄骨
  • 大山2貸店舗
    髙頭不動産 株式会社
  • この物件を問い合わせる/無料
  • TEL: 0120-1818-27 0120-1818-27

物件画像

外観
間取り
物件画像
※画像クリックで拡大表示
外観写真
物件画像
※画像クリックで拡大表示
平面図・配置図
詳細画像
物件画像
物件周辺地図


物件概要

物件コード 00040-101068
物件名 大山2貸店舗
交通 駅:上越新幹線 長岡駅から徒歩46分、バス:西中入口から徒歩3分
所在地 新潟県長岡市大山2丁目240番地1
物件種別 店舗
総戸数 -
構造 鉄骨 階建 地上2階建
所在階/階数 1階/2階 号室 -
面積 162.91㎡ /49.28坪 方位 -
間取り -
賃料 27.5万円/月
管理費 -
礼金 1ヶ月
敷金 80万円
ほか初期費用 - その他諸費用 -
更新料 - 火災(家財)保険 -
共益費 - 町内費 -
駐車場 - バイク料金 -
鍵交換費 - 清掃料 -
更新事務手数料 -
保証区分 連帯保証人のみ
保証会社 区分:指定なし
-
連帯保証人 区分:要
-
仲介手数料 275,000円
築年月 1987年11月(築38年)
利用制限 法人:可、事務所利用:可
学校区 希望が丘小学校(566m)・西中学校(573m)
設備 1階、即引き渡し可、スケルトン、駐車場あり
入居時期 即入居可
取引態様 仲介
備考 定期借家契約。(10年)
現況渡し。(相談可)
原状回復(スケルトン)返し。(相談可)
1階のみ賃貸可。(2階は含みません)
手数料負担割合/配分割合 貸主:-%   借主:-% / 元付:-%   客付:-%  
取り扱い会社

髙頭不動産 株式会社

新潟県長岡市千歳1-3-25

情報登録日 2025/08/06 次回更新予定日 2026/04/05
  • 大山2貸店舗
    髙頭不動産 株式会社
  • この物件を問い合わせる/無料
  • TEL: 0120-1818-27 0120-1818-27

この物件の地図・周辺情報・行政情報

この物件の周辺情報・行政情報を詳しく見る
【周辺情報】
物件の近くにあるコンビニや銀行・学校など、アイコン付のマップで詳しく表示できます!
【行政情報】
水道料や下水道料・ガス料金など、暮らしに関係のある情報を表示しています。
セブンイレブン 長岡北山2丁目店(コンビニ)まで440m
ファミリーマート 長岡大島本町店(コンビニ)まで530m
ウオロク 北山店(スーパー)まで490m
クスリのアオキ 大島店(ドラッグストア)まで500m
第四北越銀行 大島支店(銀行)まで550m

※カメラのアイコンがある場合は、マウスをポイントするとその施設の画像がご覧いただけます。


担当取扱い店舗情報

取扱い店舗画像
髙頭不動産 株式会社
TEL: 0120-1818-27
所在地: 新潟県長岡市千歳1-3-25
交通: 長岡駅
営業時間: 8時30分~17時30分(大手支店は9時~18時)/定休日:本社:土日祝日(事前予約での対応可能)、支店:日曜祝日第5土曜(毎年2月下旬から3月は休みなし)
免許番号: 新潟県知事(17)第191号
所属団体名: 新潟県宅地建物取引協会 長岡支部
取引態様: 仲介
ホームページ: http://www.takato-f.com