新潟県柏崎市茨目2丁目956-1 事務所 25万円の物件情報

旧医院です。

物件名
所在地
面積
間取り
所在階
築年数
方位
賃料
管理費等
共益費
敷金
保証金
礼金
種別
構造
茨目180-108
新潟県柏崎市茨目2丁目956-1
359.57㎡
(108.76坪)
-
-
20年
-
25万円
なし
なし
3ヶ月
なし
なし
事務所
木造
  • 茨目180-108
    株式会社 ウェルネスホーム
  • この物件を問い合わせる/無料
  • TEL: 0258-29-0003 0258-29-0003

物件画像

外観
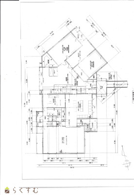
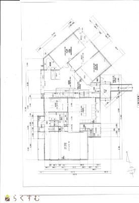
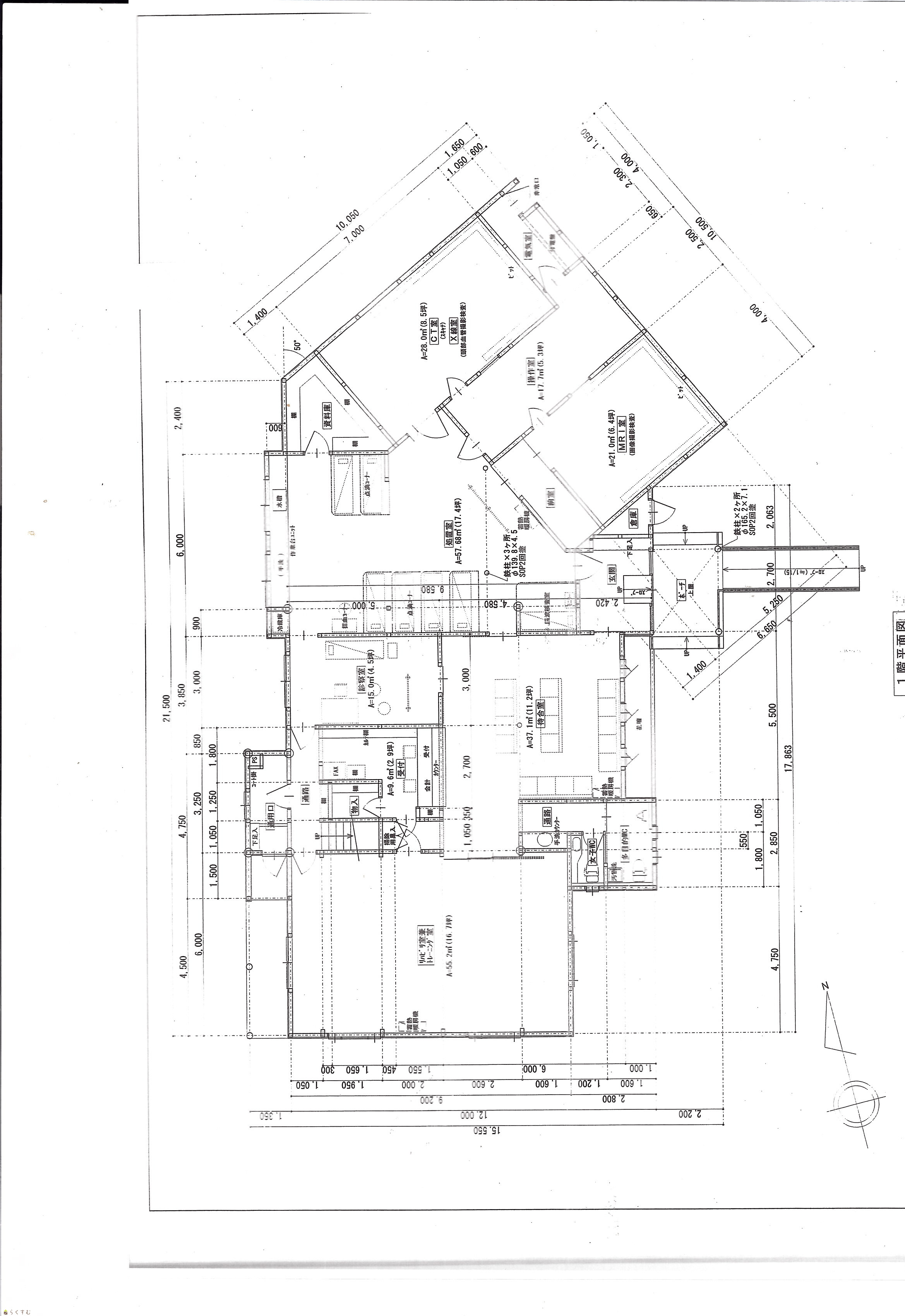
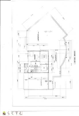
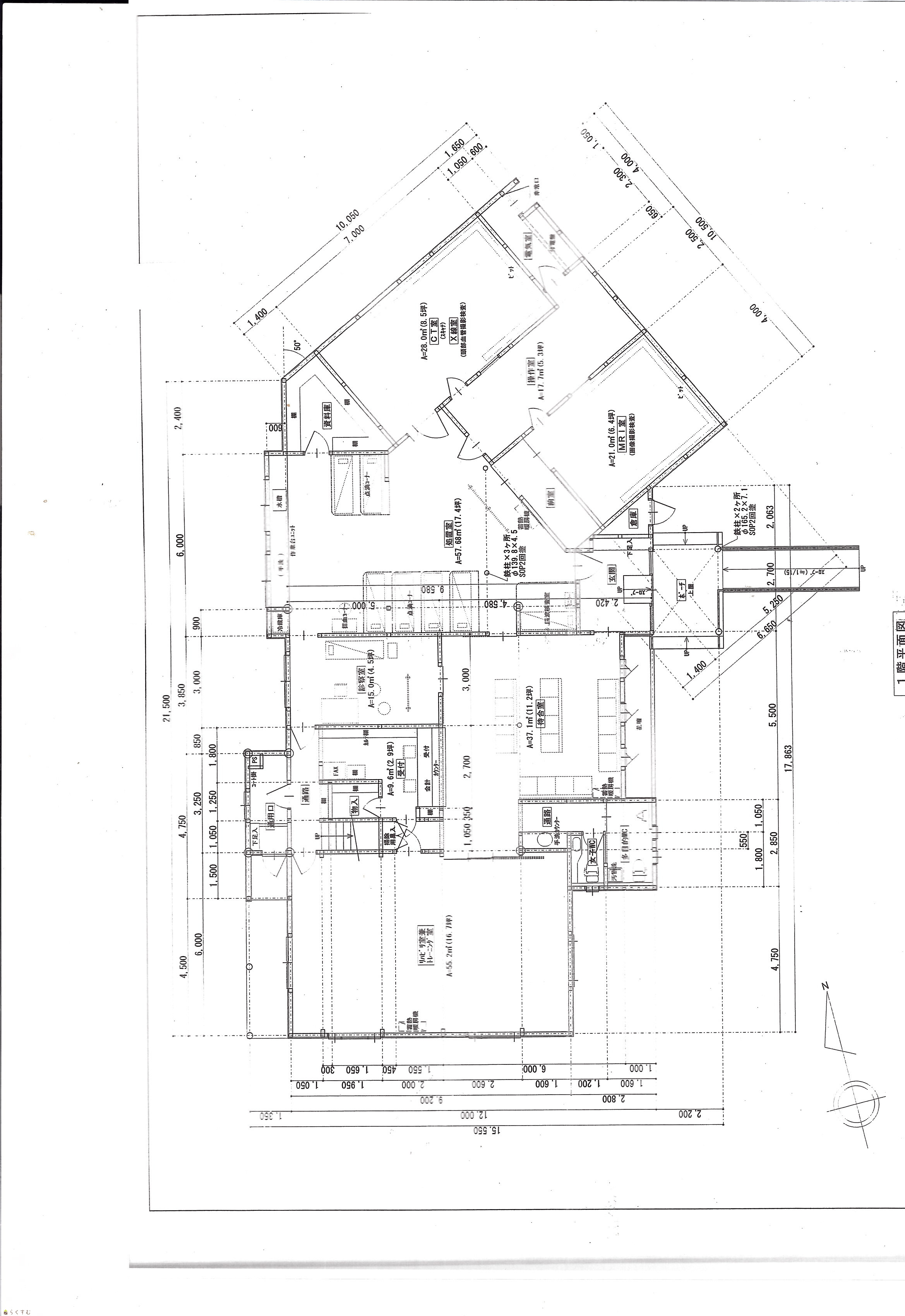
間取り
物件画像
※画像クリックで拡大表示
外観
物件画像
※画像クリックで拡大表示
間取り
詳細画像
物件画像
待合室
物件画像
受付・診察室入口
物件画像
リハ・トレーニング室
物件画像
診察室
物件画像
処置室
物件画像
MRI室
物件画像
待合2
物件画像
トイレ
物件画像
2階湯沸
物件画像
2階洋間
物件画像
1階平面図
物件画像
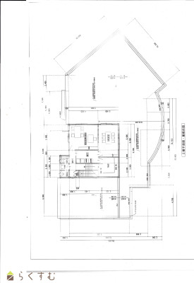
2階平面図
物件画像
印刷用地図


物件概要

物件コード 00031-100163
物件名 茨目180-108
交通 駅:信越線 茨目駅から徒歩7分、バス:柏崎インター口から徒歩2分
所在地 新潟県柏崎市茨目2丁目956-1
物件種別 事務所
総戸数 -
構造 木造 階建 地上2階建
所在階/階数 - 号室 -
面積 359.57㎡ /108.76坪 方位 -
間取り -
賃料 25万円/月
管理費 -
礼金 - 敷金 3ヶ月
ほか初期費用 - その他諸費用 -
更新料 - 火災(家財)保険 要加入
共益費 - 町内費 -
駐車場 8台可 バイク料金 -
鍵交換費 - 清掃料 -
更新事務手数料 -
保証区分 連帯保証人のみ
保証会社 区分:指定なし
-
連帯保証人 区分:要
-
仲介手数料 275,000円
築年月 2005年11月(築20年)
利用制限 -
学校区 田尻小学校(1,940m)・東中学校(1,841m)
設備 -
入居時期 相談
取引態様 仲介
備考 キュービクル設備は撤去してあります。エアコン・給湯器は借主様で設置して頂く必要があります。
手数料負担割合/配分割合 貸主:-%   借主:100% / 元付:50%   客付:50%  
取り扱い会社

株式会社 ウェルネスホーム

新潟県長岡市大山1-8-5

情報登録日 2025/11/11 次回更新予定日 2026/02/20
  • 茨目180-108
    株式会社 ウェルネスホーム
  • この物件を問い合わせる/無料
  • TEL: 0258-29-0003 0258-29-0003

この物件の地図・周辺情報・行政情報

この物件の周辺情報・行政情報を詳しく見る
【周辺情報】
物件の近くにあるコンビニや銀行・学校など、アイコン付のマップで詳しく表示できます!
【行政情報】
水道料や下水道料・ガス料金など、暮らしに関係のある情報を表示しています。

担当取扱い店舗情報

取扱い店舗画像
株式会社 ウェルネスホーム
TEL: 0258-29-0003
所在地: 新潟県長岡市大山1-8-5
交通:
営業時間: 9:30~18:00/定休日:日曜・祭日 土曜は不定休
免許番号: 新潟県知事(8)3794号
所属団体名: 公益社団法人 全国宅地建物取引業保証協会
取引態様: 仲介
ホームページ: http://www.wellnesshome.co.jp/