新潟県長岡市美沢1丁目494-16 一戸建て 5DK 5万円の物件情報

アクロスプラザ近くの物件です。

物件名
所在地
面積
間取り
所在階
築年数
方位
賃料
管理費等
共益費
敷金
保証金
礼金
種別
構造
星野貸家
新潟県長岡市美沢1丁目494-16
89.94㎡
(27.2坪)
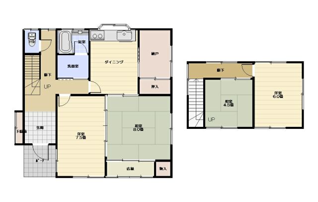
5DK
1.2階
不詳
指定なし
5万円
なし
なし
なし
なし
なし
アパート・マンション・一戸建て
木造
  • 星野貸家
    ホームメイトFC長岡店 株式会社栄不動産
  • この物件を問い合わせる/無料
  • TEL: 0258-34-2153 0258-34-2153

物件画像

外観
間取り
物件画像
※画像クリックで拡大表示
外観
物件画像
※画像クリックで拡大表示
平面図
詳細画像
物件画像
玄関
物件画像
キッチン
物件画像
和室
物件画像
洋室
物件画像
洋室
物件画像
洋室
物件画像
洋室
物件画像
和室
物件画像
和室
物件画像
洋室
物件画像
洗面所
物件画像
バスルーム
物件画像
バスルーム
物件画像
バスルーム
物件画像
洗面所
物件画像
トイレ
物件画像
廊下
物件画像
洋室
物件画像
洋室


物件概要

物件コード 00021-100351
物件名 星野貸家
交通 駅:上越新幹線 長岡駅から徒歩27分、バス:変電所から徒歩6分
所在地 新潟県長岡市美沢1丁目494-16
物件種別 アパート・マンション・一戸建て
総戸数 1戸
構造 木造 階建 地上2階建
所在階/階数 1.2階/2階 号室 -
面積 89.94㎡ /27.2坪 方位 指定なし
間取り 5DK (和室:8畳、4.5畳) (洋室:6、4.5)
DK6
賃料 5万円/月
管理費 -
礼金 -
敷金 -
ほか初期費用 - その他諸費用 -
更新料 - 火災(家財)保険 22,000円
2年間
共益費 - 町内費 別途町内会費様へ
駐車場
3台可能 消雪設備なし
バイク料金 -
鍵交換費 - 清掃料 110,000円
ハウスクリーニング費
口座振替料 500円
更新事務手数料 -
保証区分 保証会社+緊急連絡先
保証会社 区分:加入要
保証会社名:その他 (ジェイリース)
初回保証料 家賃総額80% 
連帯保証人 区分:不要
-
仲介手数料 55,000円
築年月 不詳
利用制限 法人:可、学生:可、単身者:可、二人入居:可、シニア(60歳以上)入居:可、子供:可、ペット:不可、楽器:不可、事務所利用:不可、ルームシェア:相談
学校区 四郎丸小学校(857m)・南中学校(1,721m)
設備 閑静な住宅街、駐車3台以上可、ガスコンロ設置可、バストイレ別、温水洗浄便座、エアコン、都市ガス、サンルーム、脱衣所、クロゼット、保証会社要加入、フローリング/駐車場2台分可/都市ガス
入居時期 2026/2/15
取引態様 仲介
備考 -
手数料負担割合/配分割合 貸主:0%   借主:100% / 元付:50%   客付:50%  
取り扱い会社

ホームメイトFC長岡店 株式会社栄不動産

新潟県長岡市福住2丁目2番5号

情報登録日 2026/01/19 次回更新予定日 2026/02/20
  • 星野貸家
    ホームメイトFC長岡店 株式会社栄不動産
  • この物件を問い合わせる/無料
  • TEL: 0258-34-2153 0258-34-2153

この物件の地図・周辺情報・行政情報

この物件の周辺情報・行政情報を詳しく見る
【周辺情報】
物件の近くにあるコンビニや銀行・学校など、アイコン付のマップで詳しく表示できます!
【行政情報】
水道料や下水道料・ガス料金など、暮らしに関係のある情報を表示しています。
セブン-イレブン 長岡中沢4丁目店(コンビニ)まで770m
業務スーパー 中沢店(スーパー)まで660m
JA越後ながおか 長岡支店(銀行)まで820m
セブン-イレブン 長岡中沢4丁目店(コンビニ)まで770m
JA越後ながおか 長岡支店(銀行)まで820m
中沢簡易郵便局(郵便局)まで620m

※カメラのアイコンがある場合は、マウスをポイントするとその施設の画像がご覧いただけます。


担当取扱い店舗情報

取扱い店舗画像
ホームメイトFC長岡店 株式会社栄不動産
TEL: 0258-34-2153
所在地: 新潟県長岡市福住2丁目2番5号
交通: 長岡駅徒歩5分
営業時間: 9:00~17:30/定休日:土曜・日曜・祭日【月最終土曜営業】
免許番号: 新潟県知事(14)第1137号
所属団体名: 新潟県宅地建物取引業協会 長岡支部
取引態様: 仲介
ホームページ: http://sakae-f.com/