新潟県長岡市堤町5―27 アパート 1K 3.3万円の物件情報

バス停近く!雨や雪の日も安心☆

物件名
所在地
面積
間取り
所在階
築年数
方位
賃料
管理費等
共益費
敷金
保証金
礼金
種別
構造
堤町バス停徒歩1分!アペックス・イン堤 103
103号室
新潟県長岡市堤町5―27
26.49㎡
(8.01坪)
1K
1階
28年
指定なし
3.3万円
なし
なし
1ヶ月
なし
なし
アパート・マンション・一戸建て
木造
  • 堤町バス停徒歩1分!アペックス・イン堤 103
    株式会社 新日本地所
  • この物件を問い合わせる/無料
  • TEL: 0258-33-8166 0258-33-8166

物件画像

外観
間取り
物件画像
※画像クリックで拡大表示
外観
物件画像
※画像クリックで拡大表示
平面図
詳細画像
物件画像
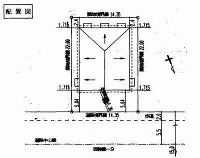
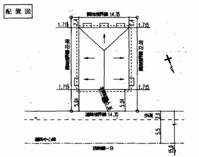
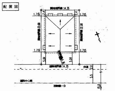
配置図
物件画像
部屋
物件画像
部屋
物件画像
キッチン
物件画像
バス
物件画像
トイレ」
物件画像
セーブオン(向かい側


物件概要

学生様おすすめです☆
物件コード 00012-100097
物件名 堤町バス停徒歩1分!アペックス・イン堤 103
交通 駅:信越線 北長岡駅から徒歩44分、バス:堤町から徒歩1分
所在地 新潟県長岡市堤町5―27
物件種別 アパート・マンション・一戸建て
総戸数 -
構造 木造 階建 地上1階建
所在階/階数 1階/1階 号室 103号室
面積 26.49㎡ /8.01坪 方位 指定なし
間取り 1K (洋室:8)
賃料 3.3万円/月
管理費 -
礼金 -
敷金 1ヶ月
ほか初期費用 - その他諸費用 -
更新料 - 火災(家財)保険 15,000円
15,000円/2年
共益費 - 町内費 350円
350円/月
駐車場 - バイク料金 -
鍵交換費 - 清掃料 -
継続保証料(口座振替手数料、事故補償含む) 950円
契約時の初回保証料の他に、毎月賃料と合わせて口座引落。
更新事務手数料 -
保証区分 保証会社+緊急連絡先
保証会社 区分:加入要
保証会社名:ジェイリース
法人契約の場合でも、保証会社との保証契約をお願いする場合がございます。 個人契約の場合(個人事業主含む)、保証会社との保証契約の際に、連帯保証人もお願いする場合がございます。
家賃保証金 20,000円
連帯保証人 区分:不要
-
仲介手数料 36,300円
築年月 1998年3月(築28年)
利用制限 二人入居:不可、シニア(60歳以上)入居:相談、子供:不可、ペット:不可、楽器:不可
学校区 上川西小学校(691m)・江陽中学校(581m)
設備 バス停近く、バストイレ別、エアコン、オール電化、バルコニー、即入居可、礼金不要、学生向け、一人暮らし・学生向け、保証会社要加入、長岡造形大学生におすすめ
入居時期 即入居可
取引態様 代理
備考 内部写真は、当部屋の現況と相違する場合があります。部屋は必ず現地確認の程お願いします。
手数料負担割合/配分割合 貸主:-%   借主:-% / 元付:-%   客付:-%  
取り扱い会社

株式会社 新日本地所

新潟県長岡市殿町1-3-3

情報登録日 2025/07/22 次回更新予定日 2026/04/06
  • 堤町バス停徒歩1分!アペックス・イン堤 103
    株式会社 新日本地所
  • この物件を問い合わせる/無料
  • TEL: 0258-33-8166 0258-33-8166

この物件の地図・周辺情報・行政情報

この物件の周辺情報・行政情報を詳しく見る
【周辺情報】
物件の近くにあるコンビニや銀行・学校など、アイコン付のマップで詳しく表示できます!
【行政情報】
水道料や下水道料・ガス料金など、暮らしに関係のある情報を表示しています。

担当取扱い店舗情報

取扱い店舗画像
株式会社 新日本地所
TEL: 0258-33-8166
所在地: 新潟県長岡市殿町1-3-3
交通: 長岡駅より350m
営業時間: 9:00~17:00/定休日:土曜・日曜・祭日 但し3月は土曜営業
免許番号: 新潟県知事(14)第1068号
所属団体名: 新潟県宅地建物取引業協会 長岡支部
取引態様: 代理