長岡市四郎丸3-1-1 店舗 14.5万円の物件情報

店舗併用住宅です。悠久山通りに面した好立地

物件名
所在地
面積
間取り
所在階
築年数
方位
賃料
管理費等
共益費
敷金
保証金
礼金
種別
構造
四郎丸3丁目 『四郎丸3丁目ビル』
長岡市四郎丸3-1-1
118.65㎡
(35.89坪)
-
-
40年
-
14.5万円
なし
なし
2ヶ月
なし
なし
店舗
鉄骨
  • 四郎丸3丁目 『四郎丸3丁目ビル』
    ㈱スタッフサイトウ不動産部
  • この物件を問い合わせる/無料
  • TEL: 0258-24-0623 0258-24-0623

物件画像

外観
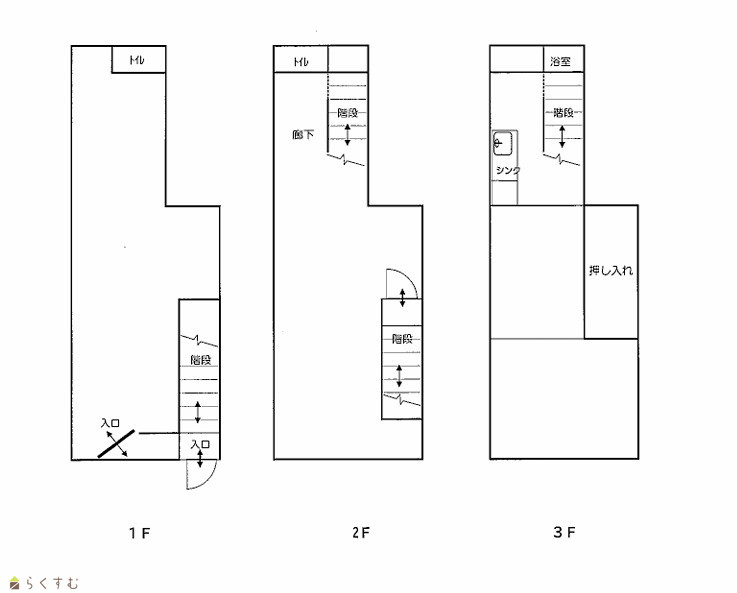
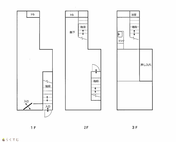
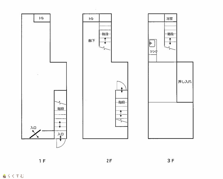
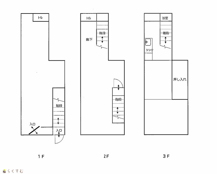
間取り
物件画像
※画像クリックで拡大表示
外観
物件画像
※画像クリックで拡大表示
間取り
詳細画像
物件画像
1F
物件画像
1Fトイレ
物件画像
2Fへの階段
物件画像
2F
物件画像
2F廊下
物件画像
2Fトイレ
物件画像
3F和室
物件画像
3Fエアコン
物件画像
3F
物件画像
押入
物件画像
3Fキッチン
物件画像
3F浴室
物件画像
屋上階段
物件画像
屋上
物件画像
地図画像


物件概要

屋上より長岡花火が見れます
物件コード 00011-100529
物件名 四郎丸3丁目 『四郎丸3丁目ビル』
交通 駅:信越線 長岡駅から徒歩12分、バス:学校町1丁目から徒歩2分
所在地 長岡市四郎丸3-1-1
物件種別 店舗
総戸数 -
構造 鉄骨 階建 地上3階建
所在階/階数 - 号室 -
面積 118.65㎡ /35.89坪 方位 -
間取り -
賃料 14.5万円/月
管理費 -
礼金 - 敷金 2ヶ月
ほか初期費用 - その他諸費用 -
更新料 - 火災(家財)保険 -
共益費 - 町内費 -
駐車場 - バイク料金 -
鍵交換費 - 清掃料 -
更新事務手数料 -
保証区分 保証会社+緊急連絡先
保証会社 区分:加入要
保証会社名:その他 (Jリース)
-
連帯保証人 区分:不要
-
仲介手数料 159,500円
築年月 1985年3月(築40年)
利用制限 ペット:不可、楽器:不可
学校区 四郎丸小学校(276m)・南中学校(963m)
設備 2階以上、エアコン、給湯
入居時期 即入居可
取引態様 仲介
備考 全館内装工事済です。
手数料負担割合/配分割合 貸主:-%   借主:100% / 元付:50%   客付:50%  
取り扱い会社

㈱スタッフサイトウ不動産部

新潟県長岡市蔵王2丁目4番17号

情報登録日 2025/07/30 次回更新予定日 2025/11/09
  • 四郎丸3丁目 『四郎丸3丁目ビル』
    ㈱スタッフサイトウ不動産部
  • この物件を問い合わせる/無料
  • TEL: 0258-24-0623 0258-24-0623

この物件の地図・周辺情報・行政情報

この物件の周辺情報・行政情報を詳しく見る
【周辺情報】
物件の近くにあるコンビニや銀行・学校など、アイコン付のマップで詳しく表示できます!
【行政情報】
水道料や下水道料・ガス料金など、暮らしに関係のある情報を表示しています。
マルイ 長岡学校町店(スーパー)まで410m
セブン銀行ATM(銀行)まで690m
長岡四郎丸郵便局(郵便局)まで100m

※カメラのアイコンがある場合は、マウスをポイントするとその施設の画像がご覧いただけます。


担当取扱い店舗情報

取扱い店舗画像
㈱スタッフサイトウ不動産部
TEL: 0258-24-0623
所在地: 新潟県長岡市蔵王2丁目4番17号
交通: JR北長岡駅
営業時間: 8:30~17:30/定休日:第2・4土曜・日曜・祭日
免許番号: 新潟県知事(2)第5364号
所属団体名: 新潟県宅地建物取引業協会 長岡支部
取引態様: 仲介
ホームページ: http://hokuetsu-fudousan.com