新潟県長岡市三ツ郷屋2丁目7-15 アパート 1K 5万円の物件情報

三ツ郷屋にある単身用1Kアパート。

物件名
所在地
面積
間取り
所在階
築年数
方位
賃料
管理費等
共益費
敷金
保証金
礼金
種別
構造
リバーウエスト
103号室
新潟県長岡市三ツ郷屋2丁目7-15
23.68㎡
(7.16坪)
1K
1階
28年
指定なし
5万円
なし
なし
なし
なし
なし
アパート・マンション・一戸建て
木造
  • リバーウエスト
    有限会社 五十嵐商事
  • この物件を問い合わせる/無料
  • TEL: 0258-28-1414 0258-28-1414

物件画像

外観
間取り
物件画像
※画像クリックで拡大表示
外観
物件画像
※画像クリックで拡大表示
平面図
詳細画像
物件画像
内観
物件画像
内観
物件画像
内観
物件画像
内観
物件画像
内観
物件画像
内観
物件画像
内観
物件画像
内観
物件画像
内観
物件画像
内観
物件画像
内観
物件画像
地図画像


物件概要

物件コード 00004-100924
物件名 リバーウエスト
交通 駅:上越新幹線 長岡駅から徒歩50分、バス:西長岡案内所前から徒歩2分
所在地 新潟県長岡市三ツ郷屋2丁目7-15
物件種別 アパート・マンション・一戸建て
総戸数 -
構造 木造 階建 地上2階建
所在階/階数 1階/2階 号室 103号室
面積 23.68㎡ /7.16坪 方位 指定なし
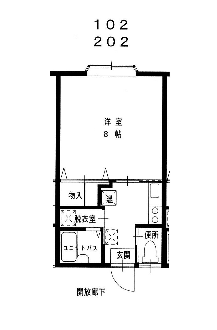
間取り 1K (洋室:8)
賃料 5万円/月
管理費 -
礼金 -
敷金 -
ほか初期費用 - その他諸費用 -
更新料 - 火災(家財)保険 要加入
共益費 - 町内費 500円
駐車場
付無料
バイク料金 -
鍵交換費 17,600円
清掃料 -
更新事務手数料 -
保証区分 保証会社+緊急連絡先
保証会社 区分:加入要
保証会社名:ジェイリース
①Jフラット 初回保証料 月額の総賃料70%、継続保証料 月額1,200円 ②学生プラン 初回保証料 一律 2万円、継続保証料 月額1,000円 ③留学生 連帯保証人 学校、敷金 1月分
家賃保証金 35,350円
連帯保証人 区分:不要
-
仲介手数料 55,000円
築年月 1998年2月(築28年)
利用制限 二人入居:不可、ペット:不可、楽器:不可
学校区 大島小学校(583m)・大島中学校(284m)
設備 閑静な住宅街、バス停近く、駐車場1台無料、角住居、IHクッキングヒーター、バストイレ別、エアコン、オール電化、全居室フローリング、洗濯機置場 室内、クロゼット、各居室照明、即入居可、敷金・礼金不要、学生向け、一人暮らし・学生向け、保証会社要加入
入居時期 即入居可
取引態様 仲介
備考 異なる間取りの画像です。画像と現況が異なる場合現況を優先します。
手数料負担割合/配分割合 貸主:0%   借主:100% / 元付:50%   客付:50%  
取り扱い会社

有限会社 五十嵐商事

新潟県長岡市三ツ郷屋2丁目5-23

情報登録日 2025/11/17 次回更新予定日 2026/04/07
  • リバーウエスト
    有限会社 五十嵐商事
  • この物件を問い合わせる/無料
  • TEL: 0258-28-1414 0258-28-1414

この物件の地図・周辺情報・行政情報

この物件の周辺情報・行政情報を詳しく見る
【周辺情報】
物件の近くにあるコンビニや銀行・学校など、アイコン付のマップで詳しく表示できます!
【行政情報】
水道料や下水道料・ガス料金など、暮らしに関係のある情報を表示しています。
セブン-イレブン 長岡喜多町店(コンビニ)まで420m
原信 古正寺店(スーパー)まで690m
ウエルシア長岡西津町店 (調剤薬局)(ドラッグストア)まで440m
長岡西病院(病院)まで260m
第四北越銀行 長岡西支店(銀行)まで530m
長岡大島郵便局(郵便局)まで720m

※カメラのアイコンがある場合は、マウスをポイントするとその施設の画像がご覧いただけます。


担当取扱い店舗情報

取扱い店舗画像
有限会社 五十嵐商事
TEL: 0258-28-1414
所在地: 新潟県長岡市三ツ郷屋2丁目5-23
交通: 西長岡案内所バス停徒歩2分
営業時間: 平日9時~18時・土曜日10時~15時(3月休みなし)/定休日:日曜、祝祭日、年末年始(12/27~1/4)
免許番号: 新潟県知事(14)1645号
所属団体名: 新潟県宅地建物取引業協会 長岡支部
取引態様: 仲介
ホームページ: https://ikarashi-shouji.com/