新潟県長岡市大島本町5丁目109-31 アパート 1DK 5.2万円の物件情報

外部収納有りの物件です♪和室を洋室にしました!

物件名
所在地
面積
間取り
所在階
築年数
方位
賃料
管理費等
共益費
敷金
保証金
礼金
種別
構造
ハイツIM 205号室
205号室
新潟県長岡市大島本町5丁目109-31
36.63㎡
(11.08坪)
1DK
2階
33年
指定なし
5.2万円
なし
なし
なし
なし
なし
アパート・マンション・一戸建て
木造
  • ハイツIM 205号室
    有限会社 五十嵐商事
  • この物件を問い合わせる/無料
  • TEL: 0258-28-1414 0258-28-1414

物件画像

外観
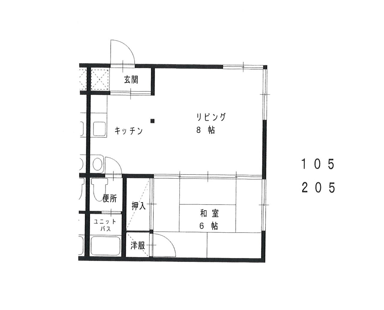
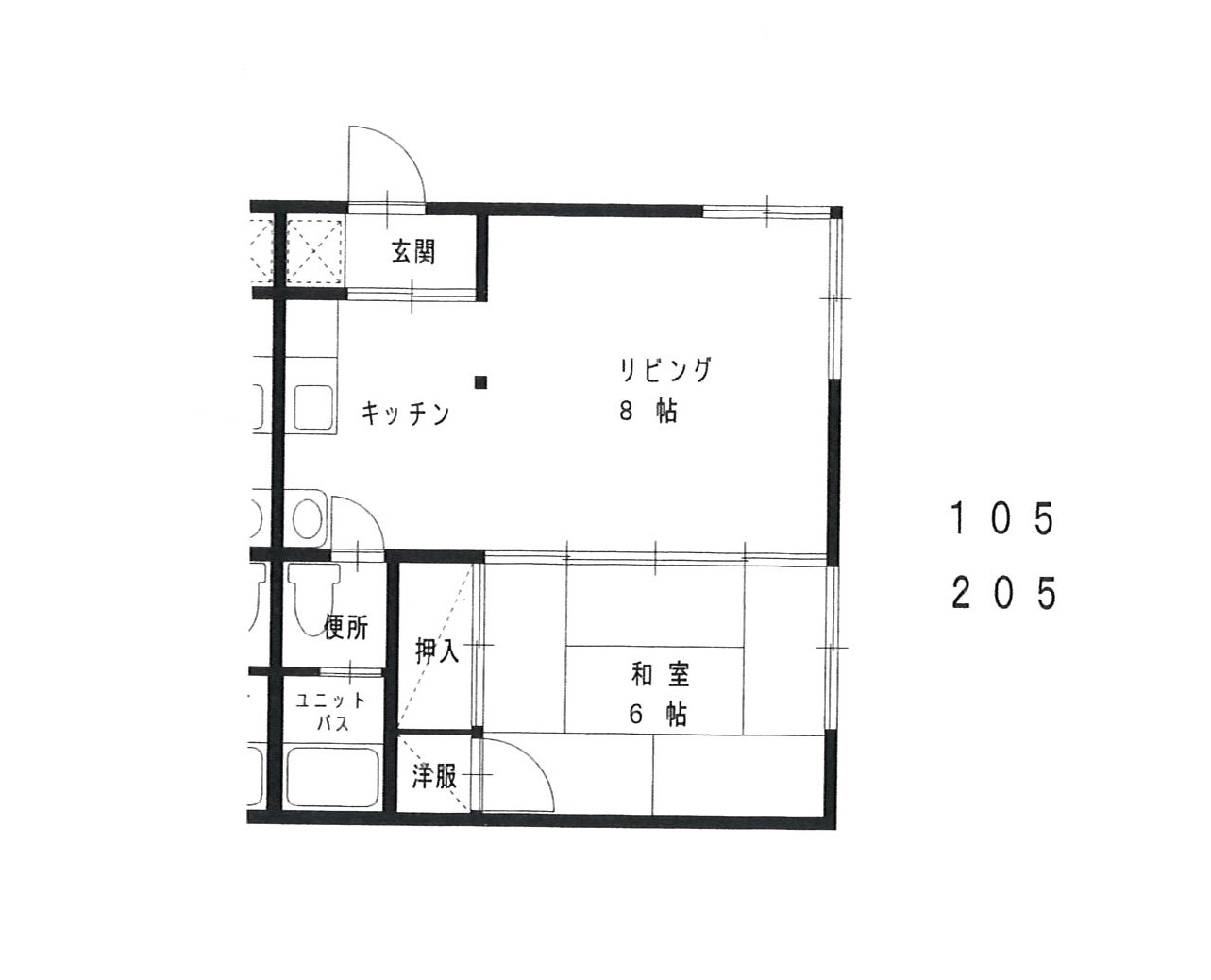
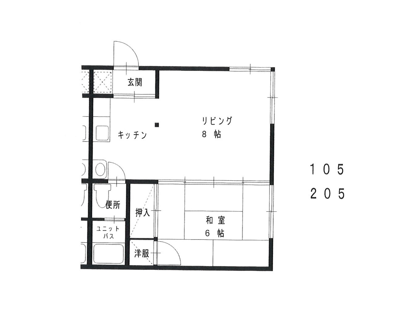
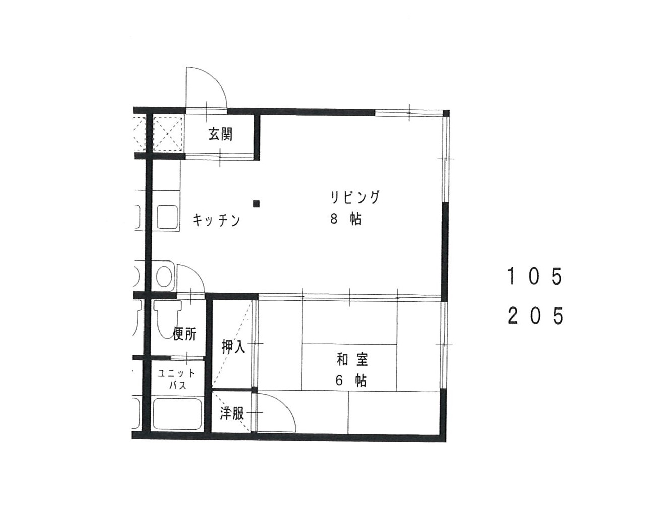
間取り
物件画像
※画像クリックで拡大表示
外観
物件画像
※画像クリックで拡大表示
平面図(和→洋)
詳細画像
物件画像
内観
物件画像
内観
物件画像
内観
物件画像
内観
物件画像
内観
物件画像
内観
物件画像
内観
物件画像
内観
物件画像
内観
物件画像
内観
物件画像
内観
物件画像
内観
物件画像
内観
物件画像
内観
物件画像
地図画像


物件概要

物件コード 00004-100668
物件名 ハイツIM 205号室
交通 駅:信越線 長岡駅から徒歩45分、バス:大島4丁目から徒歩4分
所在地 新潟県長岡市大島本町5丁目109-31
物件種別 アパート・マンション・一戸建て
総戸数 -
構造 木造 階建 地上2階建
所在階/階数 2階/2階 号室 205号室
面積 36.63㎡ /11.08坪 方位 指定なし
間取り 1DK (洋室:6)
8DK
賃料 5.2万円/月
管理費 -
礼金 -
敷金 -
ほか初期費用 - その他諸費用 -
更新料 - 火災(家財)保険 要加入
共益費 - 町内費 500円
駐車場
付無料
バイク料金 -
鍵交換費 17,600円
清掃料 -
更新事務手数料 -
保証区分 保証会社+緊急連絡先
保証会社 区分:加入要
保証会社名:ジェイリース
①Jフラット  初回保証料 月額の総賃料70%、継続保証料 月額440円 ②学生プラン 初回保証料 一律 1万円、継続保証料 月額600円 ③留学生 連帯保証人 学校、敷金賃料1月分、保証会社無し
家賃保証金 36,750円
連帯保証人 区分:不要
-
仲介手数料 57,200円
築年月 1992年4月(築33年)
利用制限 ペット:不可、楽器:不可
学校区 大島小学校(351m)・大島中学校(633m)
設備 閑静な住宅街、外部専用物置、駐車場1台無料、角住居、バストイレ別、洗面所独立、エアコン、都市ガス、洗濯機置場 室内、クロゼット、押入、各居室照明、即入居可、敷金・礼金不要、一人暮らし・学生向け、保証会社要加入
入居時期 即入居可
取引態様 仲介
備考 間取り図は和室になっていますが、現況は洋室です。画像と現況が異なる場合現況を優先します。
手数料負担割合/配分割合 貸主:0%   借主:100% / 元付:50%   客付:50%  
取り扱い会社

有限会社 五十嵐商事

新潟県長岡市三ツ郷屋2丁目5-23

情報登録日 2025/04/15 次回更新予定日 2025/11/17
  • ハイツIM 205号室
    有限会社 五十嵐商事
  • この物件を問い合わせる/無料
  • TEL: 0258-28-1414 0258-28-1414

この物件の地図・周辺情報・行政情報

この物件の周辺情報・行政情報を詳しく見る
【周辺情報】
物件の近くにあるコンビニや銀行・学校など、アイコン付のマップで詳しく表示できます!
【行政情報】
水道料や下水道料・ガス料金など、暮らしに関係のある情報を表示しています。
ファミリーマート 長岡大島本町店(コンビニ)まで130m
ウオロク 北山店(スーパー)まで890m
クスリのアオキ 大島店(ドラッグストア)まで690m
長岡西病院(病院)まで680m
長岡信用金庫 大島支店(銀行)まで400m
長岡大島郵便局(郵便局)まで540m

※カメラのアイコンがある場合は、マウスをポイントするとその施設の画像がご覧いただけます。


担当取扱い店舗情報

取扱い店舗画像
有限会社 五十嵐商事
TEL: 0258-28-1414
所在地: 新潟県長岡市三ツ郷屋2丁目5-23
交通: 西長岡案内所バス停徒歩2分
営業時間: 平日9時~18時・土曜日10時~15時(3月のみ日曜、祝祭日10時~15時)/定休日:日曜、祝祭日、年末年始(12/28~1/5)
免許番号: 新潟県知事(14)1645号
所属団体名: 新潟県宅地建物取引業協会 長岡支部
取引態様: 仲介
ホームページ: https://ikarashi-shouji.com/