物件掲載企業数:301|賃貸物件:3,182件|売買物件:3,223件|今週の登録物件:132
閲覧中のブラウザ(インターネットエクスプローラー)は非推奨ブラウザです。
物件が正しく表示されなかったり、正しく検索されない場合があります。最新のブラウザ(Google Chrome・Edgeなど)にてご利用お願いいたします。
  

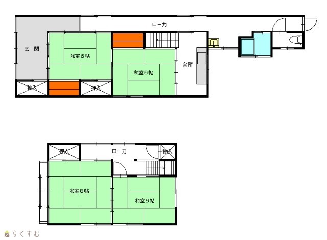
新潟県上越市大和3丁目14-6 一戸建て 4K 4.5万円の物件情報

レトロな町家風の建物です

物件名
所在地
面積
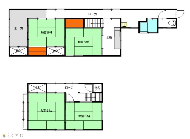
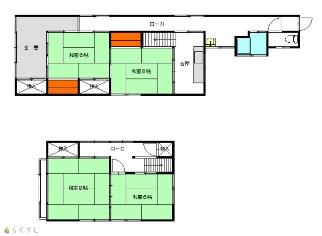
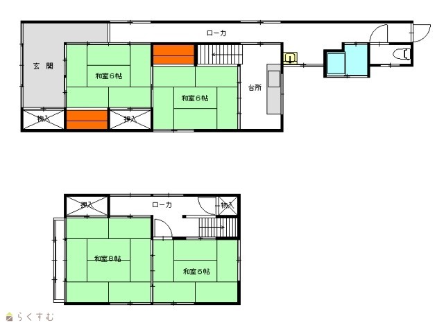
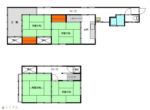
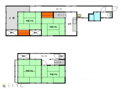
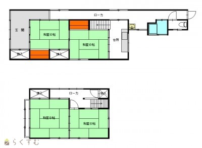
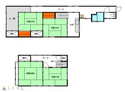
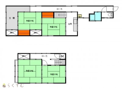
間取り
所在階
築年数
方位
賃料
管理費等
共益費
敷金
保証金
礼金
種別
構造
大和3丁目貸家
新潟県上越市大和3丁目14-6
93.36㎡
(28.24坪)
4K
-
65年
指定なし
4.5万円
なし
なし
4.5万円
なし
なし
アパート・マンション・一戸建て
木造
  • 大和3丁目貸家
    有限会社水野酒店不動産部
  • この物件を問い合わせる/無料
  • TEL: 025-523-0033

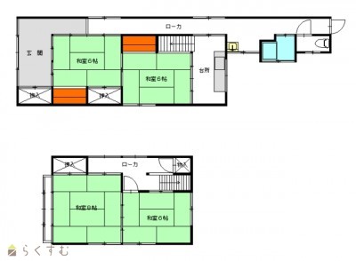
物件画像

外観 間取り
物件画像
※画像クリックで拡大表示
外観①
物件画像
※画像クリックで拡大表示
詳細画像


物件概要

物件コード 00254-100039
物件名 大和3丁目貸家
交通 駅:妙高はねうまライン 南高田駅から徒歩15分、バス:南本町一丁目から徒歩3分
所在地 新潟県上越市大和3丁目14-6
物件種別 アパート・マンション・一戸建て
総戸数 -
構造 木造 階建 地上2階建
所在階/階数 - 号室 -
面積 93.36㎡ /28.24坪 方位 指定なし
間取り 4K
賃料 4.5万円/月
管理費 -
礼金 -
敷金 4.5万円
ほか初期費用 - その他諸費用 町内会費別途
更新料 - 火災(家財)保険 -
共益費 - 町内費 借主負担
駐車場 駐車場(2台分)縦列 バイク料金 -
鍵交換費 - 清掃料 -
更新事務手数料 -
保証区分 連帯保証人のみ
保証会社 区分:指定なし
-
連帯保証人 区分:要
-
仲介手数料 49,500円
築年月 1961年3月(築65年)
利用制限 ペット:相談、楽器:不可、事務所利用:相談、ルームシェア:相談
学校区 大和小学校(690m)・城西中学校(887m)
設備 バストイレ別
入居時期 即入居可
取引態様 仲介
備考 トイレはリフォーム済み
手数料負担割合/配分割合 貸主:-%   借主:-% / 元付:-%   客付:-%  
取り扱い会社

有限会社水野酒店不動産部

新潟県上越市南高田町2番3号

情報登録日 2024/04/01 次回更新予定日 2026/05/21
  • 大和3丁目貸家
    有限会社水野酒店不動産部
  • この物件を問い合わせる/無料
  • TEL: 025-523-0033

この物件の地図・周辺情報・行政情報

この物件の周辺情報・行政情報を詳しく見る
【周辺情報】
物件の近くにあるコンビニや銀行・学校など、アイコン付のマップで詳しく表示できます!
【行政情報】
水道料や下水道料・ガス料金など、暮らしに関係のある情報を表示しています。

担当取扱い店舗情報

取扱い店舗画像
有限会社水野酒店不動産部
TEL: 025-523-0033
所在地: 新潟県上越市南高田町2番3号
交通:
営業時間: 7:30~18:30/定休日:日曜日
免許番号: 新潟県知事(10)第2838号 この会社の情報を詳しく見る
所属団体名: 公社 新潟県宅地建物取引協会 上越支部
取引態様: 仲介