物件掲載企業数:299|賃貸物件:2,911件|売買物件:3,228件|今週の登録物件:348
閲覧中のブラウザ(インターネットエクスプローラー)は非推奨ブラウザです。
物件が正しく表示されなかったり、正しく検索されない場合があります。最新のブラウザ(Google Chrome・Edgeなど)にてご利用お願いいたします。
  

新潟県柏崎市諏訪町1-20 事務所 15万円の物件情報

会社事務所、倉庫、寄宿舎、社員寮として利用可能。

物件名
所在地
面積
間取り
所在階
築年数
方位
賃料
管理費等
共益費
敷金
保証金
礼金
種別
構造
諏訪町3階建
新潟県柏崎市諏訪町1-20
444.24㎡
(134.38坪)
-
-
55年
-
15万円
なし
なし
6ヶ月
なし
なし
事務所
鉄骨
  • 諏訪町3階建
    リメイク株式会社
  • この物件を問い合わせる/無料
  • TEL: 0257-41-6381

物件画像

外観 間取り
物件画像
※画像クリックで拡大表示
外観
物件画像
※画像クリックで拡大表示
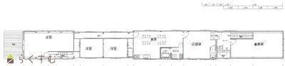
1階平面図
詳細画像


物件概要

居住用としても利用可能。(店舗併用住宅など)
物件コード 00227-100001
物件名 諏訪町3階建
交通 駅:越後線 東柏崎駅から徒歩9分、バス:諏訪町1丁目から徒歩2分
所在地 新潟県柏崎市諏訪町1-20
物件種別 事務所
総戸数 -
構造 鉄骨 階建 地上3階建
所在階/階数 - 号室 -
面積 444.24㎡ /134.38坪 方位 -
間取り -
賃料 15万円/月
管理費 -
礼金 - 敷金 6ヶ月
ほか初期費用 - その他諸費用 -
更新料 - 火災(家財)保険 別途加入必要
共益費 - 町内費 別途
駐車場 敷地内込み バイク料金 -
鍵交換費 - 清掃料 -
更新事務手数料 -
保証区分 保証会社+緊急連絡先
保証会社 区分:加入要
保証会社名:その他 (利用用途に応じて相談とします。)
-
連帯保証人 区分:不要
-
仲介手数料 165,000円
築年月 1970年4月(築55年)
利用制限 -
学校区 柏崎小学校(600m)・第一中学校(644m)
設備 エアコン、即引き渡し可、給湯、駐車場あり
入居時期 即入居可
取引態様 仲介
備考 会社事務所、倉庫、寄宿舎、社員寮として利用可能。
居住用としても利用可能。(店舗併用住宅など)
市内中心部に近く、幅広い利用用途に対応できます。
平成30年内部、水廻り等リフォーム済み。
手数料負担割合/配分割合 貸主:-%   借主:100% / 元付:-%   客付:-%  
取り扱い会社

リメイク株式会社

新潟県柏崎市土合615番地

情報登録日 2024/08/27 次回更新予定日 2026/04/05
  • 諏訪町3階建
    リメイク株式会社
  • この物件を問い合わせる/無料
  • TEL: 0257-41-6381

この物件の地図・周辺情報・行政情報

この物件の周辺情報・行政情報を詳しく見る
【周辺情報】
物件の近くにあるコンビニや銀行・学校など、アイコン付のマップで詳しく表示できます!
【行政情報】
水道料や下水道料・ガス料金など、暮らしに関係のある情報を表示しています。
ローソン 柏崎学校町店(コンビニ)まで330m
セブン-イレブン 柏崎錦町店(コンビニ)まで400m
セブン-イレブン 柏崎新花町店(コンビニ)まで560m
ウエルシア柏崎錦町店 (調剤薬局)(ドラッグストア)まで470m
のざわ内科医院(病院)まで440m
まえかわ歯科クリニック(病院)まで500m
川田胃腸クリニック(病院)まで560m
医療法人社団 本田医院(病院)まで580m
むなかた眼科医院(病院)まで650m
柏崎信用金庫 諏訪町支店(銀行)まで290m
第四北越銀行 柏崎東本町支店(銀行)まで410m
新潟県労働金庫 柏崎支店(銀行)まで730m

※カメラのアイコンがある場合は、マウスをポイントするとその施設の画像がご覧いただけます。


担当取扱い店舗情報

取扱い店舗画像
リメイク株式会社
TEL: 0257-41-6381
所在地: 新潟県柏崎市土合615番地
交通:
営業時間: 8:30~17:30/定休日:土日年末年始・夏季など
免許番号: 新潟県知事(2)第5472号 この会社の情報を詳しく見る
所属団体名: 公社新潟県宅地建物取引業協会 柏崎支部
取引態様: 仲介
ホームページ: https://remake-kabu.com/