物件掲載企業数:299|賃貸物件:2,912件|売買物件:3,226件|今週の登録物件:352
閲覧中のブラウザ(インターネットエクスプローラー)は非推奨ブラウザです。
物件が正しく表示されなかったり、正しく検索されない場合があります。最新のブラウザ(Google Chrome・Edgeなど)にてご利用お願いいたします。
  

新潟県上越市藤巻8-59山吉ビル1階 店舗 68.2万円の物件情報

幹線道路(上越大通り)沿い、周辺には多くの商業施設や事業所が立ち並んでいます。

物件名
所在地
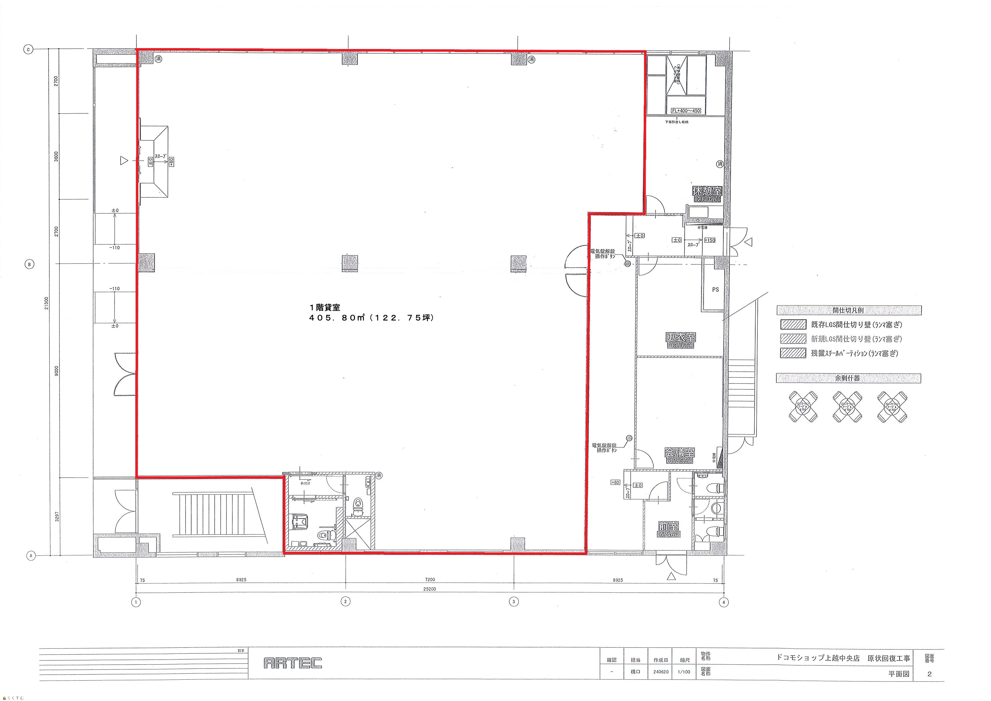
面積
間取り
所在階
築年数
方位
賃料
管理費等
共益費
敷金
保証金
礼金
種別
構造
山吉ビル1階
新潟県上越市藤巻8-59山吉ビル1階
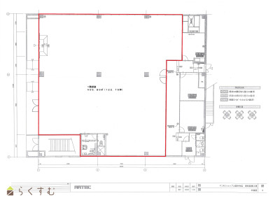
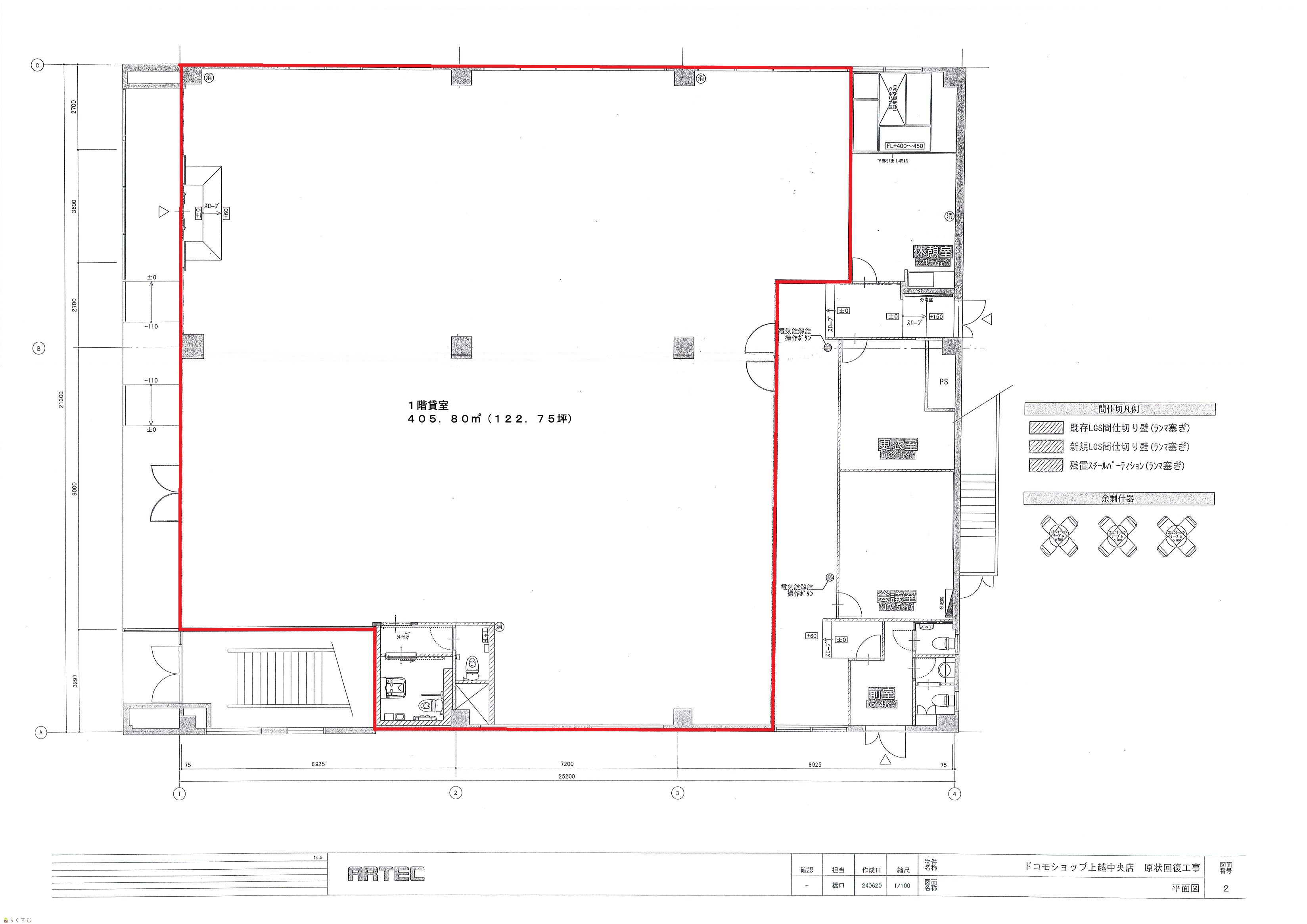
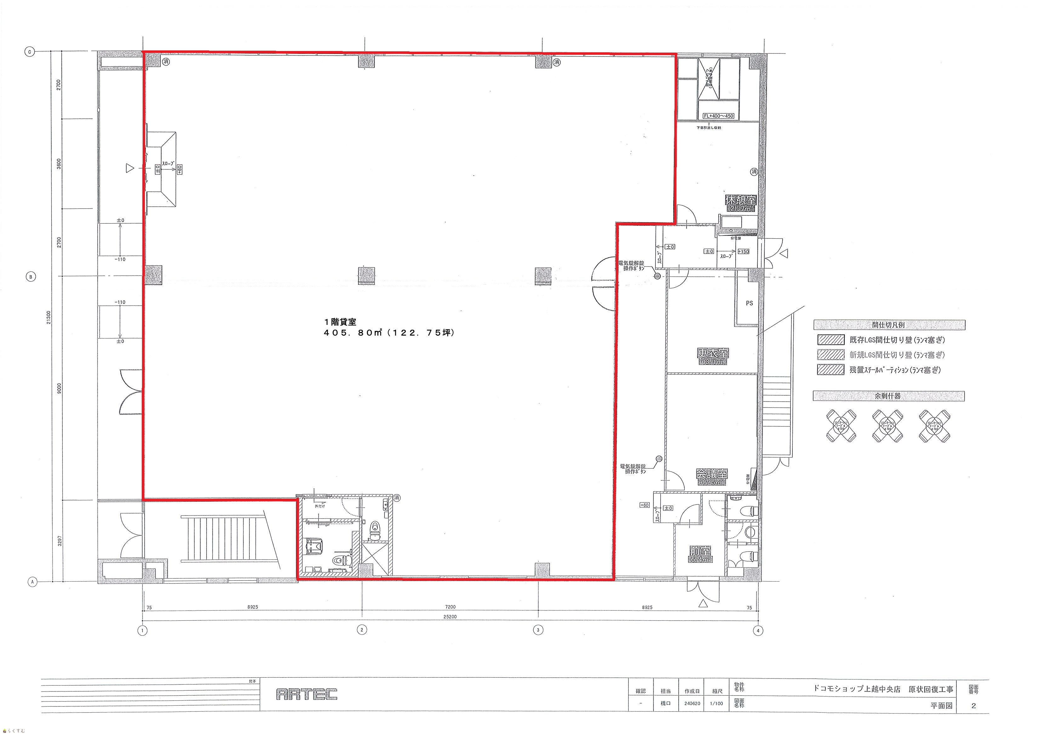
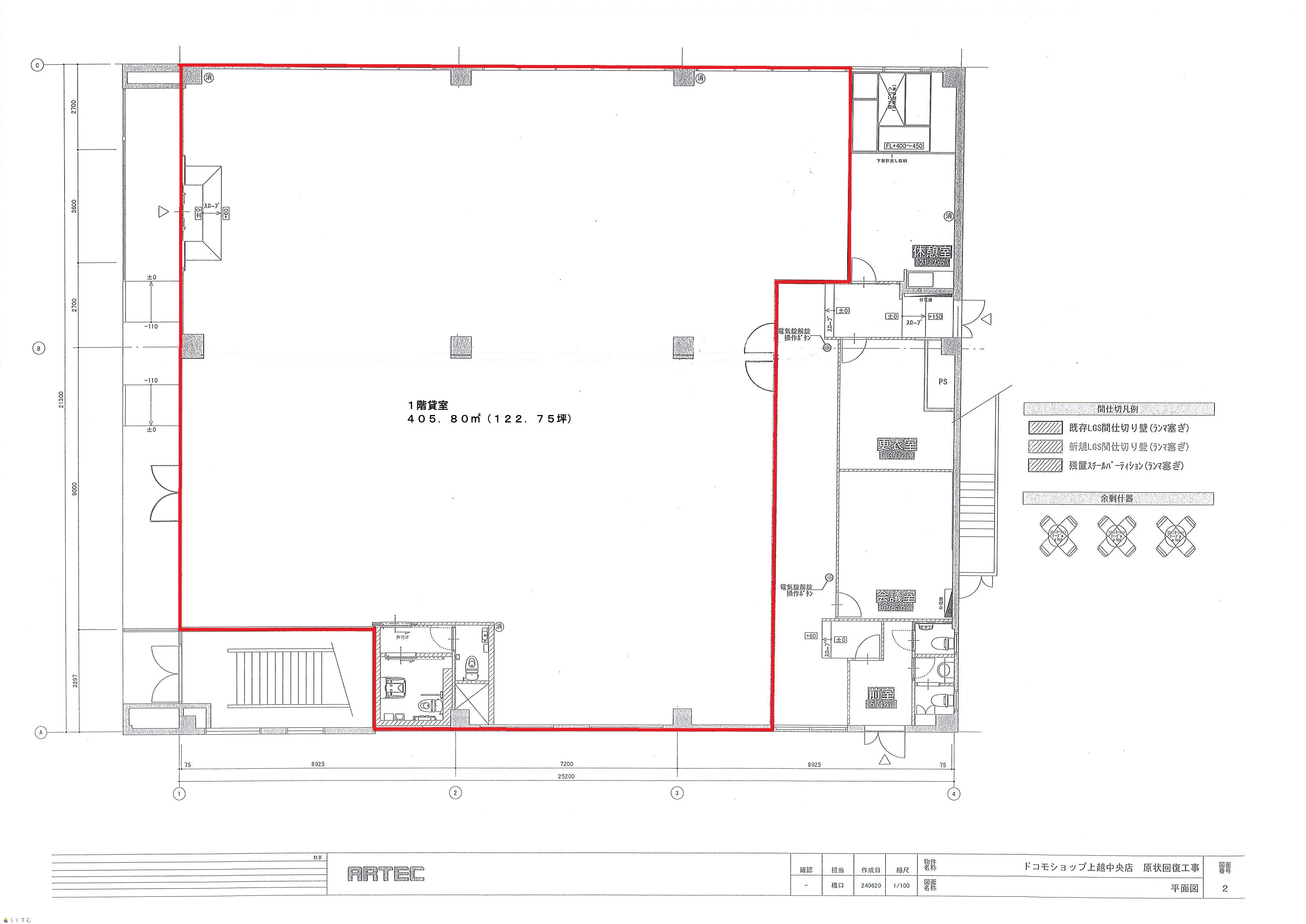
405.8㎡
(122.75坪)
-
1階
37年
-
68.2万円
なし
なし
4ヶ月
なし
なし
店舗
鉄骨
  • 山吉ビル1階
    株式会社マルケー不動産
  • この物件を問い合わせる/無料
  • TEL: 025-544-2724

物件画像

外観 間取り
物件画像
※画像クリックで拡大表示
外観
物件画像
※画像クリックで拡大表示
区画予定図
詳細画像


物件概要

賃料には共益費・駐車料(19台分)が含まれています。使用面積にご希望ありましたらご相談ください。
物件コード 00209-100141
物件名 山吉ビル1階
交通 駅:妙高はねうまライン 春日山駅から徒歩25分
所在地 新潟県上越市藤巻8-59山吉ビル1階
物件種別 店舗
総戸数 -
構造 鉄骨 階建 地上2階建
所在階/階数 1階/2階 号室 -
面積 405.8㎡ /122.75坪 方位 -
間取り -
賃料 68.2万円/月
共益費、駐車料(19台分)込み
管理費 -
礼金 - 敷金 4ヶ月
ほか初期費用 - その他諸費用 -
更新料 - 火災(家財)保険 -
共益費 - 町内費 実費負担
駐車場 - バイク料金 -
鍵交換費 - 清掃料 -
更新事務手数料 -
保証区分 保証会社のみ
保証会社 区分:加入要
保証会社名:その他 (CIZ)
-
家賃保証金 613,800円
別途事務手数料
連帯保証人 区分:不要
-
仲介手数料 423,500円
築年月 1988年6月(築37年)
利用制限 -
学校区 高志小学校(805m)・春日中学校(1,988m)
設備 1階、融雪設備あり、エアコン、男女トイレ別、駐車場あり
入居時期 相談
取引態様 仲介
備考 共用部(休憩室、更衣室、会議室)の使用は要相談
間仕切壁設置工事後の引渡し(業種により要相談)
冬期間除雪費の負担あり
物件敷地内に別途駐車場あり(応相談)
手数料負担割合/配分割合 貸主:-%   借主:-% / 元付:-%   客付:-%  
取り扱い会社

株式会社マルケー不動産

新潟県上越市西本町2-3-21

情報登録日 2026/02/17 次回更新予定日 2026/04/05
  • 山吉ビル1階
    株式会社マルケー不動産
  • この物件を問い合わせる/無料
  • TEL: 025-544-2724

この物件の地図・周辺情報・行政情報

この物件の周辺情報・行政情報を詳しく見る
【周辺情報】
物件の近くにあるコンビニや銀行・学校など、アイコン付のマップで詳しく表示できます!
【行政情報】
水道料や下水道料・ガス料金など、暮らしに関係のある情報を表示しています。
セブン-イレブン 上越土橋店(コンビニ)まで260m
クスリのアオキ 藤巻店(ドラッグストア)まで500m
上越信用金庫 はれまち支店(銀行)まで640m
ウオロク上越店(スーパー)まで600m

※カメラのアイコンがある場合は、マウスをポイントするとその施設の画像がご覧いただけます。


担当取扱い店舗情報

取扱い店舗画像
株式会社マルケー不動産
TEL: 025-544-2724
所在地: 新潟県上越市西本町2-3-21
交通: 直江津駅
営業時間: 8:30~17:00/定休日:第2.4土・日・祝
免許番号: 新潟県知事(10)第2765号 この会社の情報を詳しく見る
所属団体名: 公社新潟県宅地建物取引協会 上越支部
取引態様: 仲介
ホームページ: https://www.mkfudo3.jp/