物件掲載企業数:299|賃貸物件:2,912件|売買物件:3,226件|今週の登録物件:353
閲覧中のブラウザ(インターネットエクスプローラー)は非推奨ブラウザです。
物件が正しく表示されなかったり、正しく検索されない場合があります。最新のブラウザ(Google Chrome・Edgeなど)にてご利用お願いいたします。
  

新潟県燕市吉田西太田785番地18 事務所 8万円の物件情報

南吉田駅、116号線、Next Generation Townにほど近い開発が進んでいるエリアに建つ事務所です。賃料は8万円(税込み)です。5月1日より内覧も可能ですのでお気軽にご連絡ください。

物件名
所在地
面積
間取り
所在階
築年数
方位
賃料
管理費等
共益費
敷金
保証金
礼金
種別
構造
燕市吉田貸事務所
新潟県燕市吉田西太田785番地18
238.38㎡
(72.1坪)
-
-
29年
-
8万円
なし
なし
3ヶ月
なし
なし
事務所
鉄骨
  • 燕市吉田貸事務所
    株式会社 長陵エステート 長岡営業所
  • この物件を問い合わせる/無料
  • TEL: 0258-86-5133

物件画像

外観 間取り
物件画像
※画像クリックで拡大表示
外観
物件画像
※画像クリックで拡大表示
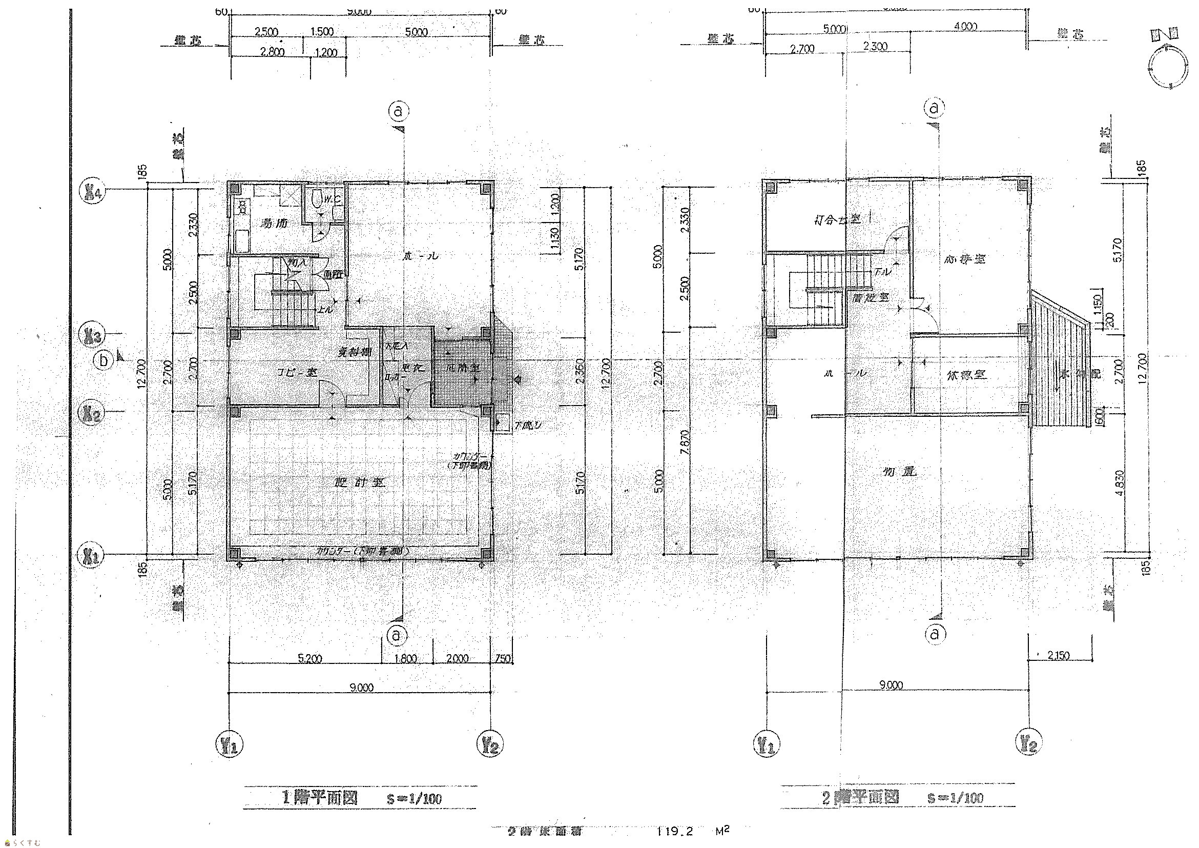
間取り図
詳細画像


物件概要

残置物は要相談となります。
物件コード 00196-100107
物件名 燕市吉田貸事務所
交通 駅:越後線 南吉田駅から徒歩7分、バス:南吉田駅から徒歩7分
所在地 新潟県燕市吉田西太田785番地18
物件種別 事務所
総戸数 -
構造 鉄骨 階建 地上2階建
所在階/階数 - 号室 -
面積 238.38㎡ /72.1坪 方位 -
間取り -
賃料 8万円/月
管理費 -
礼金 - 敷金 3ヶ月
ほか初期費用 - その他諸費用 -
更新料 - 火災(家財)保険 加入の事
共益費 - 町内費 別途町内会へ支払い
駐車場
賃料に込み
バイク料金 -
鍵交換費 - 清掃料 -
更新事務手数料 -
保証区分 保証会社のみ
保証会社 区分:加入要
保証会社名:ジェイリース
-
家賃保証金 80,000円
更新時に賃料の10%
連帯保証人 区分:不要
-
仲介手数料 80,000円
築年月 1996年12月(築29年)
利用制限 事務所利用:可
学校区 吉田南小学校(633m)・吉田中学校(3,106m)
設備 融雪設備あり、エアコン、居抜き、スケルトン、駐車場あり
入居時期 2025年5月1日
取引態様 仲介
備考 賃貸部分は1階左側の部屋のみですが、その他の部分については相談可能です
右側の部屋は他のテナントが利用中です。トイレ給湯等の水回りは共有スペースとなります
手数料負担割合/配分割合 貸主:-%   借主:-% / 元付:-%   客付:-%  
取り扱い会社

株式会社 長陵エステート 長岡営業所

新潟県長岡市宮原2丁目13番23号長陵社ビル3階

情報登録日 2025/04/10 次回更新予定日 2026/04/05
  • 燕市吉田貸事務所
    株式会社 長陵エステート 長岡営業所
  • この物件を問い合わせる/無料
  • TEL: 0258-86-5133

この物件の地図・周辺情報・行政情報

この物件の周辺情報・行政情報を詳しく見る
【周辺情報】
物件の近くにあるコンビニや銀行・学校など、アイコン付のマップで詳しく表示できます!
【行政情報】
水道料や下水道料・ガス料金など、暮らしに関係のある情報を表示しています。

担当取扱い店舗情報

取扱い店舗画像
株式会社 長陵エステート 長岡営業所
TEL: 0258-86-5133
所在地: 新潟県長岡市宮原2丁目13番23号長陵社ビル3階
交通:
営業時間: 8:40~17:00/定休日:土曜日曜祭日
免許番号: 新潟県知事(15)第868号 この会社の情報を詳しく見る
所属団体名: 公社 新潟県宅地建物取引業協会 新潟支部
取引態様: 仲介
ホームページ: https://www.choryo-est.co.jp/