物件掲載企業数:299|賃貸物件:2,912件|売買物件:3,228件|今週の登録物件:350
閲覧中のブラウザ(インターネットエクスプローラー)は非推奨ブラウザです。
物件が正しく表示されなかったり、正しく検索されない場合があります。最新のブラウザ(Google Chrome・Edgeなど)にてご利用お願いいたします。
  

新潟県長岡市福住2-4-44 事務所 16.5万円の物件情報

駅近くで利便性の良い立地♪駐車場5台付きで事務所や倉庫など多様な使い方ができます。

物件名
所在地
面積
間取り
所在階
築年数
方位
賃料
管理費等
共益費
敷金
保証金
礼金
種別
構造
ADI福住ビル
101号室
新潟県長岡市福住2-4-44
150㎡
(45.37坪)
-
1階
54年
-
16.5万円
3,300円/月
なし
2ヶ月
なし
1ヶ月
事務所
鉄筋
  • ADI福住ビル
    フェニックス不動産 株式会社
  • この物件を問い合わせる/無料
  • TEL: 0258-38-6077

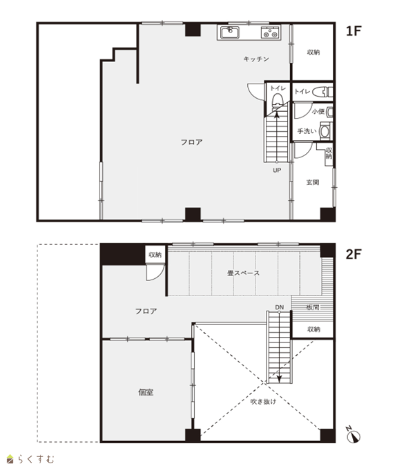
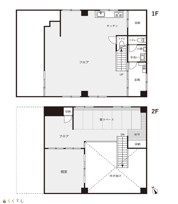
物件画像

外観 間取り
物件画像
※画像クリックで拡大表示
外観
物件画像
※画像クリックで拡大表示
間取り
詳細画像


物件概要

駅近くで事務所・テナントをお探しのかたのオススメです。
物件コード 00181-100601
物件名 ADI福住ビル
交通 駅:信越線 長岡駅から徒歩7分、バス:城内町から徒歩5分
所在地 新潟県長岡市福住2-4-44
物件種別 事務所
総戸数 -
構造 鉄筋 階建 地上6階建
所在階/階数 1階/6階 号室 101号室
面積 150㎡ /45.37坪 方位 -
間取り -
賃料 16.5万円/月
管理費 3,300円/月
礼金 1ヶ月
敷金 2ヶ月
ほか初期費用 別途鍵交換料 実費 その他諸費用 -
更新料 - 火災(家財)保険 31,100円
31100円/2年
共益費 - 町内費 -
駐車場
3台駐車場付 無料
バイク料金 -
鍵交換費 - 清掃料 -
更新事務手数料 -
保証区分 連帯保証人のみ
保証会社 区分:指定なし
-
連帯保証人 区分:要
-
仲介手数料 181,500円
築年月 1971年6月(築54年)
利用制限 法人:可、ペット:不可、楽器:不可、事務所利用:可
学校区 川崎小学校(535m)・東北中学校(1,281m)
設備 1階、エアコン、男女トイレ別、即引き渡し可、給湯、駐車場あり
入居時期 即入居可
取引態様 仲介
備考 -
手数料負担割合/配分割合 貸主:-%   借主:100% / 元付:50%   客付:50%  
取り扱い会社

フェニックス不動産 株式会社

新潟県長岡市神田町1-2-33

情報登録日 2025/12/19 次回更新予定日 2026/04/05
  • ADI福住ビル
    フェニックス不動産 株式会社
  • この物件を問い合わせる/無料
  • TEL: 0258-38-6077

この物件の地図・周辺情報・行政情報

この物件の周辺情報・行政情報を詳しく見る
【周辺情報】
物件の近くにあるコンビニや銀行・学校など、アイコン付のマップで詳しく表示できます!
【行政情報】
水道料や下水道料・ガス料金など、暮らしに関係のある情報を表示しています。
セブン-イレブン 長岡福住店(コンビニ)まで120m
原信 今朝白店(スーパー)までm
大光銀行 本店営業部 長岡駅出張所(銀行)までm
長岡信用金庫 川崎支店(銀行)までm
ゆうちょ銀行 長岡店(銀行)までm
第四北越銀行 川崎支店(銀行)までm

※カメラのアイコンがある場合は、マウスをポイントするとその施設の画像がご覧いただけます。


担当取扱い店舗情報

取扱い店舗画像
フェニックス不動産 株式会社
TEL: 0258-38-6077
所在地: 新潟県長岡市神田町1-2-33
交通: 長岡駅
営業時間: 9:30~18:00/定休日:水・日・祝(事前予約をいただければ営業いたします)
免許番号: 新潟県知事(2)第5376号 この会社の情報を詳しく見る
所属団体名: 公社 全日本不動産協会 新潟県本部
取引態様: 仲介
ホームページ: http://www.phoenix-fudousan.com/