物件掲載企業数:299|賃貸物件:2,911件|売買物件:3,226件|今週の登録物件:353
閲覧中のブラウザ(インターネットエクスプローラー)は非推奨ブラウザです。
物件が正しく表示されなかったり、正しく検索されない場合があります。最新のブラウザ(Google Chrome・Edgeなど)にてご利用お願いいたします。
  

新潟県長岡市大山2丁目10-13レジェーロ 203号室 アパート 2DK 3.5万円の物件情報

書斎利用に適す環境

物件名
所在地
面積
間取り
所在階
築年数
方位
賃料
管理費等
共益費
敷金
保証金
礼金
種別
構造
レジェーロ203学生
203号室
新潟県長岡市大山2丁目10-13レジェーロ 203号室
35.64㎡
(10.78坪)
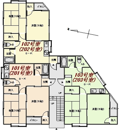
2DK
2階
29年
指定なし
3.5万円
なし
あり
1ヶ月
なし
1ヶ月
アパート・マンション・一戸建て
木造
  • レジェーロ203学生
    株式会社 新興建設
  • この物件を問い合わせる/無料
  • TEL: 0258-27-6811

物件画像

外観 間取り
物件画像
※画像クリックで拡大表示
外観
物件画像
※画像クリックで拡大表示
平面図
詳細画像


物件概要

※書斎がほしい学生さん応援します! 全世帯角住居
物件コード 00110-100178
物件名 レジェーロ203学生
交通 駅:上越新幹線 長岡駅から徒歩46分、バス:西中入口から徒歩3分
所在地 新潟県長岡市大山2丁目10-13レジェーロ 203号室
物件種別 アパート・マンション・一戸建て
総戸数 6戸
構造 木造 階建 地上2階建
所在階/階数 2階/2階 号室 203号室
面積 35.64㎡ /10.78坪 方位 指定なし
間取り 2DK (洋室:6、6)
洋室2室 2重サッシ タイヤ置場鍵付専用物置1.24㎡あり※駐車場空き状況要確認
賃料 3.5万円/月
管理費 -
礼金 1ヶ月
敷金 1ヶ月
ほか初期費用 駐車場空き状況確認してください その他諸費用 -
更新料 ※学生免除 火災(家財)保険 18,000円
2年18000円
共益費 2,000円
町内費 -
駐車場 1台に付き4000円※空き状況確認 バイク料金 -
鍵交換費 - 清掃料 -
更新事務手数料 -
保証区分 連帯保証人+緊急連絡先
保証会社 区分:指定なし
-
連帯保証人 区分:要
※親族様
仲介手数料 38,500円
築年月 1996年4月(築29年)
利用制限 法人:不可、学生:可、単身者:不可、二人入居:不可、シニア(60歳以上)入居:不可、子供:不可、ペット:不可、楽器:不可、事務所利用:不可、ルームシェア:不可
学校区 希望が丘小学校(604m)・西中学校(584m)
設備 バス停近く、日当り良好、最上階、タイヤ置き場、角住居、ダブルロックキー、バストイレ別、ユニットバス、温水洗浄便座、エアコン、都市ガス、バルコニー、全居室フローリング、複層サッシ、玄関収納、全室収納、TVモニター付きインターホン、各居室照明、即入居可、一人暮らし・学生向け、長岡技術科学大学生におすすめ
入居時期 相談
取引態様 仲介
備考 ※学生割引
※号室により仕様異なります ご確認ください 
手数料負担割合/配分割合 貸主:-%   借主:100% / 元付:-%   客付:100%  
取り扱い会社

株式会社 新興建設

新潟県長岡市蓮潟4-10-23      

情報登録日 2026/03/08 次回更新予定日 2026/04/05
  • レジェーロ203学生
    株式会社 新興建設
  • この物件を問い合わせる/無料
  • TEL: 0258-27-6811

この物件の地図・周辺情報・行政情報

この物件の周辺情報・行政情報を詳しく見る
【周辺情報】
物件の近くにあるコンビニや銀行・学校など、アイコン付のマップで詳しく表示できます!
【行政情報】
水道料や下水道料・ガス料金など、暮らしに関係のある情報を表示しています。
ファミリーマート 長岡大島本町店(コンビニ)まで450m
ウオロク 北山店(スーパー)まで540m
(株)大光銀行 希望が丘支店(銀行)まで280m
長岡信用金庫 大島支店(銀行)まで450m
第四北越銀行 大島支店(銀行)まで520m
長岡大島郵便局(郵便局)まで620m

※カメラのアイコンがある場合は、マウスをポイントするとその施設の画像がご覧いただけます。


担当取扱い店舗情報

取扱い店舗画像
株式会社 新興建設
TEL: 0258-27-6811
所在地: 新潟県長岡市蓮潟4-10-23      
交通:
営業時間: 9:00~17:00/定休日:土曜.日曜.祭日(事前の℡予約により対応可)
免許番号: 新潟県知事(13)第1890号 この会社の情報を詳しく見る
所属団体名: 新潟県宅地建物取引協会 長岡支部
取引態様: 仲介