物件掲載企業数:297|賃貸物件:3,616件|売買物件:3,322件|今週の登録物件:244
閲覧中のブラウザ(インターネットエクスプローラー)は非推奨ブラウザです。
物件が正しく表示されなかったり、正しく検索されない場合があります。最新のブラウザ(Google Chrome・Edgeなど)にてご利用お願いいたします。
  

新潟県柏崎市小倉町10-6コーポ・ラルゴ201 アパート 2DK 5.2万円の物件情報

駐車場1台込み☆ エアコン2台&モニター付きインターホン&ウォシュレット付

物件名
所在地
面積
間取り
所在階
築年数
方位
賃料
管理費等
共益費
敷金
保証金
礼金
種別
構造
コーポ・ラルゴ
201号室
新潟県柏崎市小倉町10-6コーポ・ラルゴ201
52.89㎡
(15.99坪)
2DK
2階
25年
指定なし
5.2万円
なし
300円
6万円
なし
なし
アパート・マンション・一戸建て
木造
  • コーポ・ラルゴ
    株式会社セイワ不動産
  • この物件を問い合わせる/無料
  • TEL: 0120-779-375

物件画像

外観 間取り
物件画像
※画像クリックで拡大表示
外観
物件画像
※画像クリックで拡大表示
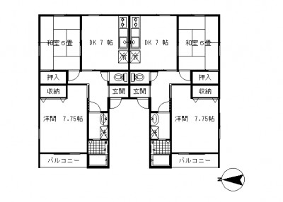
間取り
詳細画像


物件概要

物件コード 00091-100141
物件名 コーポ・ラルゴ
交通 駅:信越線東柏崎駅から徒歩7分、バス:諏訪町2丁目から徒歩2分
所在地 新潟県柏崎市小倉町10-6コーポ・ラルゴ201
物件種別 アパート・マンション・一戸建て
総戸数 -
構造 木造 階建 地上2階建
所在階/階数 2階/2階 号室 201号室
面積 52.89㎡ /15.99坪 方位 指定なし
間取り 2DK (和室:6畳) (洋室:7.5)
Dk7
賃料 5.2万円/月
管理費 -
礼金 -
敷金 6万円
ほか初期費用 - その他諸費用 -
更新料 - 火災(家財)保険 18,000円
18000円
共益費 300円
300円
町内費 1,000円
1,000円
駐車場 1台込み バイク料金 -
鍵交換費 - 清掃料 -
更新事務手数料 11,000円
保証区分 保証会社のみ
保証会社 区分:加入要
保証会社名:ジェイリース
-
家賃保証金 42,640円
連帯保証人 区分:不要
-
仲介手数料 57,200円
築年月 2000年1月(築25年)
利用制限 法人:可、学生:可、単身者:可、二人入居:可、シニア(60歳以上)入居:可、ペット:不可、楽器:不可
学校区 比角小学校(814m)・第二中学校(692m)
設備 閑静な住宅街、最上階、タイヤ置き場、駐車場1台無料、角住居、バストイレ別、洗面所独立、都市ガス、バルコニー、洗濯機置場 室内、脱衣所、玄関収納、ウォークインクロゼット、トランクルーム、BS端子・アンテナ、TVモニター付きインターホン、各居室照明、礼金不要、フリーレント(詳細は備考欄)
入居時期 相談
取引態様 仲介
備考 駐車場1台込み
手数料負担割合/配分割合 貸主:-%   借主:100% / 元付:50%   客付:50%  
取り扱い会社

株式会社セイワ不動産

新潟県柏崎市東長浜町7-10ウエルメイド柏崎1F102

情報登録日 2025/09/22 次回更新予定日 2026/01/04
  • コーポ・ラルゴ
    株式会社セイワ不動産
  • この物件を問い合わせる/無料
  • TEL: 0120-779-375

この物件の地図・周辺情報・行政情報

この物件の周辺情報・行政情報を詳しく見る
【周辺情報】
物件の近くにあるコンビニや銀行・学校など、アイコン付のマップで詳しく表示できます!
【行政情報】
水道料や下水道料・ガス料金など、暮らしに関係のある情報を表示しています。

担当取扱い店舗情報

取扱い店舗画像
株式会社セイワ不動産
TEL: 0120-779-375
所在地: 新潟県柏崎市東長浜町7-10ウエルメイド柏崎1F102
交通: 柏崎駅
営業時間: ①9:00~13:00②14:00~17:30/定休日:水曜日・日曜
免許番号: 新潟県知事免許(12)第2332 号 この会社の情報を詳しく見る
所属団体名: 新潟県宅地建物取引業協会 柏崎支部
取引態様: 仲介
ホームページ: http://www.a-oheya.co.jp/